Form preview

Get the free 10z - Mo. DNR

Get Form
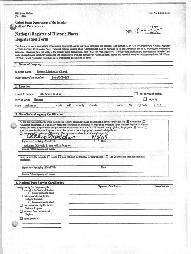
NPS Fond 10900 (Oct. 1990)OMB No. 100240018United States Department of the Interior national Park Service. ., '1C,., . National Register of Historic Places Registration Form10siao1This phone is for
We are not affiliated with any brand or entity on this form

Get, Create, Make and Sign 10z - mo dnr

Edit
Edit your 10z - mo dnr form online
Type text, complete fillable fields, insert images, highlight or blackout data for discretion, add comments, and more.
Add
Add your legally-binding signature
Draw or type your signature, upload a signature image, or capture it with your digital camera.
Share
Share your form instantly
Email, fax, or share your 10z - mo dnr form via URL. You can also download, print, or export forms to your preferred cloud storage service.

Editing 10z - mo dnr online

9.5
Ease of Setup
pdfFiller User Ratings on G2
9.0
Ease of Use
pdfFiller User Ratings on G2
To use our professional PDF editor, follow these steps:
1
Create an account. Begin by choosing Start Free Trial and, if you are a new user, establish a profile.
2
Prepare a file. Use the Add New button. Then upload your file to the system from your device, importing it from internal mail, the cloud, or by adding its URL.
3
Edit 10z - mo dnr. Rearrange and rotate pages, add new and changed texts, add new objects, and use other useful tools. When you're done, click Done. You can use the Documents tab to merge, split, lock, or unlock your files.
4
Save your file. Select it from your list of records. Then, move your cursor to the right toolbar and choose one of the exporting options. You can save it in multiple formats, download it as a PDF, send it by email, or store it in the cloud, among other things.
The use of pdfFiller makes dealing with documents straightforward. Try it right now!

Uncompromising security for your PDF editing and eSignature needs

Your private information is safe with pdfFiller. We employ end-to-end encryption, secure cloud storage, and advanced access control to protect your documents and maintain regulatory compliance.
GDPR
AICPA SOC 2
PCI
HIPAA
CCPA
FDA

How to fill out 10z - mo dnr

Illustration

How to fill out 10z - mo dnr

01
To fill out 10z - mo dnr, follow these steps:
02
Obtain a copy of the 10z - mo dnr form from the relevant authority or website.
03
Read the instructions carefully to understand the purpose and requirements of the form.
04
Fill in your personal details such as name, address, date of birth, and contact information.
05
Provide relevant information related to the reason for filling out the form, such as medical conditions or circumstances.
06
Follow any additional instructions or sections specified in the form, such as witnesses or signatures.
07
Review the completed form for any errors or missing information.
08
Sign and date the form as required.
09
Make copies of the filled-out form for your records, if necessary.
10
Submit the completed form to the appropriate authority or organization as instructed.
11
Wait for any further instructions or communication regarding your submission.

Who needs 10z - mo dnr?

01
10z - mo dnr is typically needed by individuals who want to express their medical treatment preferences in the event they are unable to communicate their desires. This form is commonly used for Advance Healthcare Directives, allowing individuals to document their choices regarding life-sustaining treatments, end-of-life care, and organ donation.
02
It is especially relevant for individuals with chronic illnesses, the elderly, and those facing terminal conditions. The form provides a legal means to ensure that their wishes are respected and followed by healthcare providers and loved ones.
Fill form : Try Risk Free
Users Most Likely To Recommend - Summer 2025
Grid Leader in Small-Business - Summer 2025
High Performer - Summer 2025
Regional Leader - Summer 2025
Easiest To Do Business With - Summer 2025
Best Meets Requirements- Summer 2025
Rate the form
4.8
Satisfied
53 Votes

For pdfFiller’s FAQs

Below is a list of the most common customer questions. If you can’t find an answer to your question, please don’t hesitate to reach out to us.

With pdfFiller, the editing process is straightforward. Open your 10z - mo dnr in the editor, which is highly intuitive and easy to use. There, you’ll be able to blackout, redact, type, and erase text, add images, draw arrows and lines, place sticky notes and text boxes, and much more.
Create your eSignature using pdfFiller and then eSign your 10z - mo dnr immediately from your email with pdfFiller's Gmail add-on. To keep your signatures and signed papers, you must create an account.
You certainly can. You can quickly edit, distribute, and sign 10z - mo dnr on your iOS device with the pdfFiller mobile app. Purchase it from the Apple Store and install it in seconds. The program is free, but in order to purchase a subscription or activate a free trial, you must first establish an account.
The 10z - mo dnr is a tax form used in Missouri for reporting certain income and deductions for individual taxpayers.
Individuals who have income from sources in Missouri and meet certain filing requirements are required to file the 10z - mo dnr.
To fill out the 10z - mo dnr, gather all required financial documentation, complete the form with accurate income and deduction information, and ensure all fields are filled correctly before submission.
The purpose of the 10z - mo dnr is to report individual income tax for residents and non-residents earning income in Missouri.
The 10z - mo dnr must report personal identifying information, total income, various deductions, and tax liability.
Fill out your 10z - mo dnr online with pdfFiller!

pdfFiller is an end-to-end solution for managing, creating, and editing documents and forms in the cloud. Save time and hassle by preparing your tax forms online.

Get started now
Form preview
If you believe that this page should be taken down, please follow our DMCA take down process here .
This form may include fields for payment information. Data entered in these fields is not covered by PCI DSS compliance.