
Get the free Three Owls Federation 2019 Spring Event Registration Form
Show details
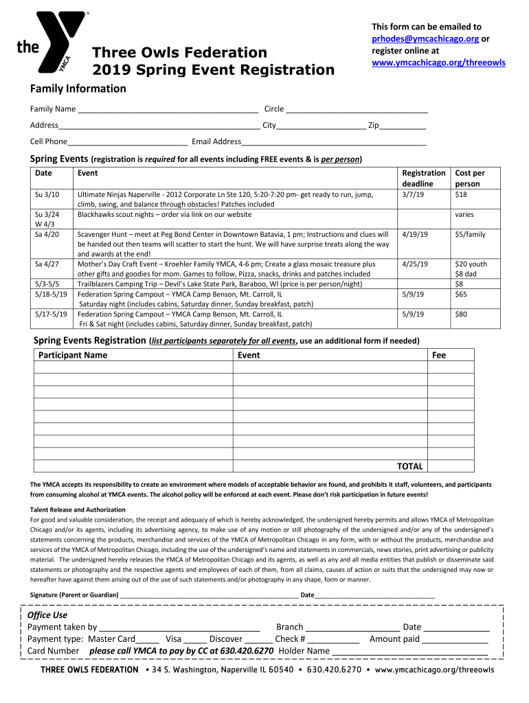
Three Owls Federation 2019 Spring Event Registration Form Family InformationThis form can be emailed to Rhodes ymcachicago.org or register online at www.ymcachicago.org/threeowlsFamily Name Circle
We are not affiliated with any brand or entity on this form
Get, Create, Make and Sign three owls federation 2019

Edit your three owls federation 2019 form online
Type text, complete fillable fields, insert images, highlight or blackout data for discretion, add comments, and more.

Add your legally-binding signature
Draw or type your signature, upload a signature image, or capture it with your digital camera.

Share your form instantly
Email, fax, or share your three owls federation 2019 form via URL. You can also download, print, or export forms to your preferred cloud storage service.
Editing three owls federation 2019 online
Use the instructions below to start using our professional PDF editor:
1
Log in to your account. Start Free Trial and register a profile if you don't have one.
2
Upload a document. Select Add New on your Dashboard and transfer a file into the system in one of the following ways: by uploading it from your device or importing from the cloud, web, or internal mail. Then, click Start editing.
3
Edit three owls federation 2019. Add and replace text, insert new objects, rearrange pages, add watermarks and page numbers, and more. Click Done when you are finished editing and go to the Documents tab to merge, split, lock or unlock the file.
4
Save your file. Select it from your records list. Then, click the right toolbar and select one of the various exporting options: save in numerous formats, download as PDF, email, or cloud.
Uncompromising security for your PDF editing and eSignature needs
Your private information is safe with pdfFiller. We employ end-to-end encryption, secure cloud storage, and advanced access control to protect your documents and maintain regulatory compliance.
How to fill out three owls federation 2019

How to fill out three owls federation 2019
01
Start by gathering all the necessary information and documents required to fill out the three owls federation 2019 form.
02
Carefully read the instructions and guidelines provided with the form to ensure you understand the requirements.
03
Begin filling out the form by providing your personal details such as name, address, contact information, etc.
04
Proceed to fill in the specific information requested in the form pertaining to the three owls federation 2019.
05
Double-check all the entries made to ensure accuracy and completeness.
06
Attach any supporting documents or additional information required as per the instructions.
07
Review the completed form and make any necessary edits or corrections.
08
Sign and date the form as required.
09
Submit the filled-out form to the designated authority or organization as per the given instructions.
10
Keep a copy of the filled-out form for your records.
Who needs three owls federation 2019?
01
The three owls federation 2019 is needed by individuals or organizations who are interested in becoming a part of the three owls federation. This could include people or groups involved in owl conservation, research, education, or related activities. It is also required by those individuals or organizations who wish to avail the benefits, resources, or opportunities provided by the three owls federation.
Fill
form
: Try Risk Free
For pdfFiller’s FAQs
Below is a list of the most common customer questions. If you can’t find an answer to your question, please don’t hesitate to reach out to us.
How can I modify three owls federation 2019 without leaving Google Drive?
By combining pdfFiller with Google Docs, you can generate fillable forms directly in Google Drive. No need to leave Google Drive to make edits or sign documents, including three owls federation 2019. Use pdfFiller's features in Google Drive to handle documents on any internet-connected device.
How do I complete three owls federation 2019 online?
With pdfFiller, you may easily complete and sign three owls federation 2019 online. It lets you modify original PDF material, highlight, blackout, erase, and write text anywhere on a page, legally eSign your document, and do a lot more. Create a free account to handle professional papers online.
How do I make changes in three owls federation 2019?
The editing procedure is simple with pdfFiller. Open your three owls federation 2019 in the editor, which is quite user-friendly. You may use it to blackout, redact, write, and erase text, add photos, draw arrows and lines, set sticky notes and text boxes, and much more.
What is three owls federation spring?
Three Owls Federation Spring is a form that organizations must file with the government to report their financial information.
Who is required to file three owls federation spring?
Non-profit organizations, charities, and certain other entities are required to file Three Owls Federation Spring.
How to fill out three owls federation spring?
Three Owls Federation Spring can be filled out online or by submitting a paper form with the required financial information.
What is the purpose of three owls federation spring?
The purpose of Three Owls Federation Spring is to provide transparency and accountability regarding the finances of organizations.
What information must be reported on three owls federation spring?
Three Owls Federation Spring typically requires organizations to report their revenue, expenses, assets, and liabilities.
Fill out your three owls federation 2019 online with pdfFiller!
pdfFiller is an end-to-end solution for managing, creating, and editing documents and forms in the cloud. Save time and hassle by preparing your tax forms online.

Three Owls Federation 2019 is not the form you're looking for?Search for another form here.
Relevant keywords
Related Forms
If you believe that this page should be taken down, please follow our DMCA take down process
here
.
This form may include fields for payment information. Data entered in these fields is not covered by PCI DSS compliance.