Get the free baltimore county rental inspection checklist
Show details
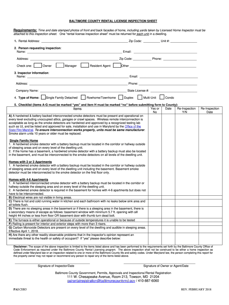
BALTIMORE COUNTY RENTAL LICENSE INSPECTION SHEETRequirements: Time and date stamped photos of front and back facades of home, including yards taken by Licensed Home Inspector must be attached to this
We are not affiliated with any brand or entity on this form
Get, Create, Make and Sign baltimore city rental inspection form
Edit your baltimore county rental inspection form form online
Type text, complete fillable fields, insert images, highlight or blackout data for discretion, add comments, and more.
Add your legally-binding signature
Draw or type your signature, upload a signature image, or capture it with your digital camera.
Share your form instantly
Email, fax, or share your baltimore county rental inspection form via URL. You can also download, print, or export forms to your preferred cloud storage service.
How to edit baltimore city rental inspection checklist online
To use the professional PDF editor, follow these steps:
1
Log in. Click Start Free Trial and create a profile if necessary.
2
Prepare a file. Use the Add New button. Then upload your file to the system from your device, importing it from internal mail, the cloud, or by adding its URL.
3
Edit baltimore county rental inspection. Rearrange and rotate pages, add new and changed texts, add new objects, and use other useful tools. When you're done, click Done. You can use the Documents tab to merge, split, lock, or unlock your files.
4
Save your file. Select it from your list of records. Then, move your cursor to the right toolbar and choose one of the exporting options. You can save it in multiple formats, download it as a PDF, send it by email, or store it in the cloud, among other things.
pdfFiller makes working with documents easier than you could ever imagine. Create an account to find out for yourself how it works!
Uncompromising security for your PDF editing and eSignature needs
Your private information is safe with pdfFiller. We employ end-to-end encryption, secure cloud storage, and advanced access control to protect your documents and maintain regulatory compliance.
How to fill out baltimore county rental inspection
How to fill out baltimore county rental license
01
Determine the type of rental license you need: there are different types of rental licenses in Baltimore County, such as single-family dwelling, multiple-family dwelling, etc.
02
Gather the necessary documents: you will need to provide proof of ownership, proof of residency, and other relevant documents depending on the type of rental license you are applying for.
03
Complete the application form: fill out the Baltimore County rental license application form accurately and completely.
04
Pay the required fees: there are fees associated with obtaining a rental license in Baltimore County, make sure to pay the amount specified.
05
Schedule an inspection: once your application is submitted, you will need to schedule an inspection by the Baltimore County Department of Permits, Approvals, and Inspections.
06
Pass the inspection: ensure that your property meets all the necessary safety and code requirements to successfully obtain the rental license.
07
Receive your rental license: if your application and property pass all the requirements, you will receive your Baltimore County rental license.
Who needs baltimore county rental license?
01
Anyone who owns or operates a rental property in Baltimore County needs a rental license.
02
This includes landlords of single-family homes, apartment buildings, duplexes, townhouses, and any other residential properties that are rented out to tenants.
Fill
form
: Try Risk Free
For pdfFiller’s FAQs
Below is a list of the most common customer questions. If you can’t find an answer to your question, please don’t hesitate to reach out to us.
How do I edit baltimore county rental inspection in Chrome?
Install the pdfFiller Google Chrome Extension to edit baltimore county rental inspection and other documents straight from Google search results. When reading documents in Chrome, you may edit them. Create fillable PDFs and update existing PDFs using pdfFiller.
How do I edit baltimore county rental inspection straight from my smartphone?
The easiest way to edit documents on a mobile device is using pdfFiller’s mobile-native apps for iOS and Android. You can download those from the Apple Store and Google Play, respectively. You can learn more about the apps here. Install and log in to the application to start editing baltimore county rental inspection.
How do I complete baltimore county rental inspection on an iOS device?
pdfFiller has an iOS app that lets you fill out documents on your phone. A subscription to the service means you can make an account or log in to one you already have. As soon as the registration process is done, upload your baltimore county rental inspection. You can now use pdfFiller's more advanced features, like adding fillable fields and eSigning documents, as well as accessing them from any device, no matter where you are in the world.
What is baltimore county rental license?
A Baltimore County rental license is a required permit for landlords to legally rent out residential properties in Baltimore County.
Who is required to file baltimore county rental license?
All landlords who rent out residential properties in Baltimore County are required to file for a rental license.
How to fill out baltimore county rental license?
To fill out a Baltimore County rental license, landlords must provide information about the property and pay the required fee.
What is the purpose of baltimore county rental license?
The purpose of a Baltimore County rental license is to ensure that rental properties meet minimum safety and health standards.
What information must be reported on baltimore county rental license?
Information such as the property address, owner's contact information, and proof of lead paint inspection must be reported on a Baltimore County rental license.
Fill out your baltimore county rental inspection online with pdfFiller!
pdfFiller is an end-to-end solution for managing, creating, and editing documents and forms in the cloud. Save time and hassle by preparing your tax forms online.
Baltimore County Rental Inspection is not the form you're looking for?Search for another form here.
Relevant keywords
Related Forms
If you believe that this page should be taken down, please follow our DMCA take down process
here
.
This form may include fields for payment information. Data entered in these fields is not covered by PCI DSS compliance.