
Get the free NIT236.doc
Show details
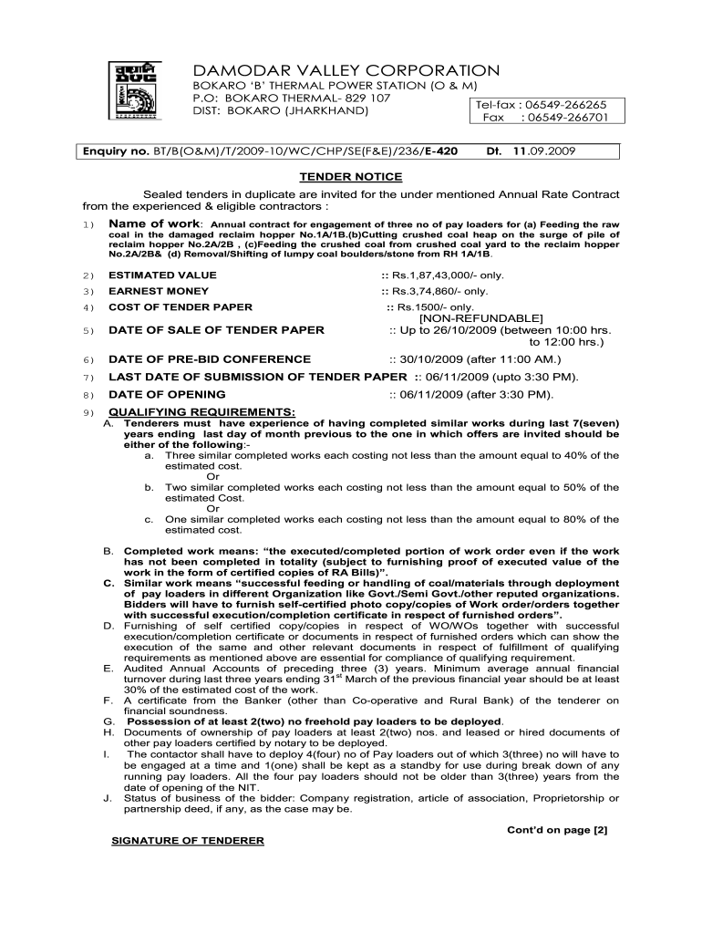
SAMOVAR VALLEY CORPORATION BOARD B THERMAL POWER STATION (O & M) P. O: BOARD THERMAL 829 107 Tel faxes : 06549266265 DIST: BOARD (JHARKHAND) Fax : 06549266701 Inquiry noes. BT/B(O&M)/T/200910/WC/CHP/SE(F&E)/236/E420Dt.
We are not affiliated with any brand or entity on this form
Get, Create, Make and Sign nit236doc

Edit your nit236doc form online
Type text, complete fillable fields, insert images, highlight or blackout data for discretion, add comments, and more.

Add your legally-binding signature
Draw or type your signature, upload a signature image, or capture it with your digital camera.

Share your form instantly
Email, fax, or share your nit236doc form via URL. You can also download, print, or export forms to your preferred cloud storage service.
Editing nit236doc online
Follow the guidelines below to take advantage of the professional PDF editor:
1
Sign into your account. If you don't have a profile yet, click Start Free Trial and sign up for one.
2
Prepare a file. Use the Add New button to start a new project. Then, using your device, upload your file to the system by importing it from internal mail, the cloud, or adding its URL.
3
Edit nit236doc. Add and change text, add new objects, move pages, add watermarks and page numbers, and more. Then click Done when you're done editing and go to the Documents tab to merge or split the file. If you want to lock or unlock the file, click the lock or unlock button.
4
Get your file. Select your file from the documents list and pick your export method. You may save it as a PDF, email it, or upload it to the cloud.
With pdfFiller, it's always easy to work with documents. Try it!
Uncompromising security for your PDF editing and eSignature needs
Your private information is safe with pdfFiller. We employ end-to-end encryption, secure cloud storage, and advanced access control to protect your documents and maintain regulatory compliance.
How to fill out nit236doc

How to fill out nit236doc
01
To fill out nit236doc, follow these steps:
02
Open the nit236doc file in a compatible document editor.
03
Review the instructions provided in the document to understand the required information.
04
Begin filling out the document by entering the relevant details in the designated fields.
05
Double-check the entered information for accuracy and completeness.
06
Save the filled-out nit236doc file.
07
If required, print the document for submission or share it electronically as requested.
Who needs nit236doc?
01
nit236doc is needed by individuals or organizations that require a document to capture specific information. It can be used in various contexts such as job applications, legal proceedings, business transactions, and more. The specific purpose and requirements for using nit236doc may vary based on the situation.
Fill
form
: Try Risk Free
For pdfFiller’s FAQs
Below is a list of the most common customer questions. If you can’t find an answer to your question, please don’t hesitate to reach out to us.
How can I manage my nit236doc directly from Gmail?
pdfFiller’s add-on for Gmail enables you to create, edit, fill out and eSign your nit236doc and any other documents you receive right in your inbox. Visit Google Workspace Marketplace and install pdfFiller for Gmail. Get rid of time-consuming steps and manage your documents and eSignatures effortlessly.
How do I edit nit236doc straight from my smartphone?
The easiest way to edit documents on a mobile device is using pdfFiller’s mobile-native apps for iOS and Android. You can download those from the Apple Store and Google Play, respectively. You can learn more about the apps here. Install and log in to the application to start editing nit236doc.
How do I fill out the nit236doc form on my smartphone?
Use the pdfFiller mobile app to complete and sign nit236doc on your mobile device. Visit our web page (https://edit-pdf-ios-android.pdffiller.com/) to learn more about our mobile applications, the capabilities you’ll have access to, and the steps to take to get up and running.
What is nit236doc?
Nit236doc is a specific tax document required for reporting certain financial information to tax authorities.
Who is required to file nit236doc?
Individuals or entities that meet specific financial thresholds during the tax year are required to file nit236doc.
How to fill out nit236doc?
To fill out nit236doc, one must gather the necessary financial information and complete each section of the form according to the guidelines provided by the tax authority.
What is the purpose of nit236doc?
The purpose of nit236doc is to ensure accurate reporting of financial data for tax assessment and compliance purposes.
What information must be reported on nit236doc?
Information that must be reported on nit236doc includes income, deductions, credits, and any other relevant financial data.
Fill out your nit236doc online with pdfFiller!
pdfFiller is an end-to-end solution for managing, creating, and editing documents and forms in the cloud. Save time and hassle by preparing your tax forms online.

nit236doc is not the form you're looking for?Search for another form here.
Relevant keywords
Related Forms
If you believe that this page should be taken down, please follow our DMCA take down process
here
.
This form may include fields for payment information. Data entered in these fields is not covered by PCI DSS compliance.