
Get the free NCA Contracting Service
Show details
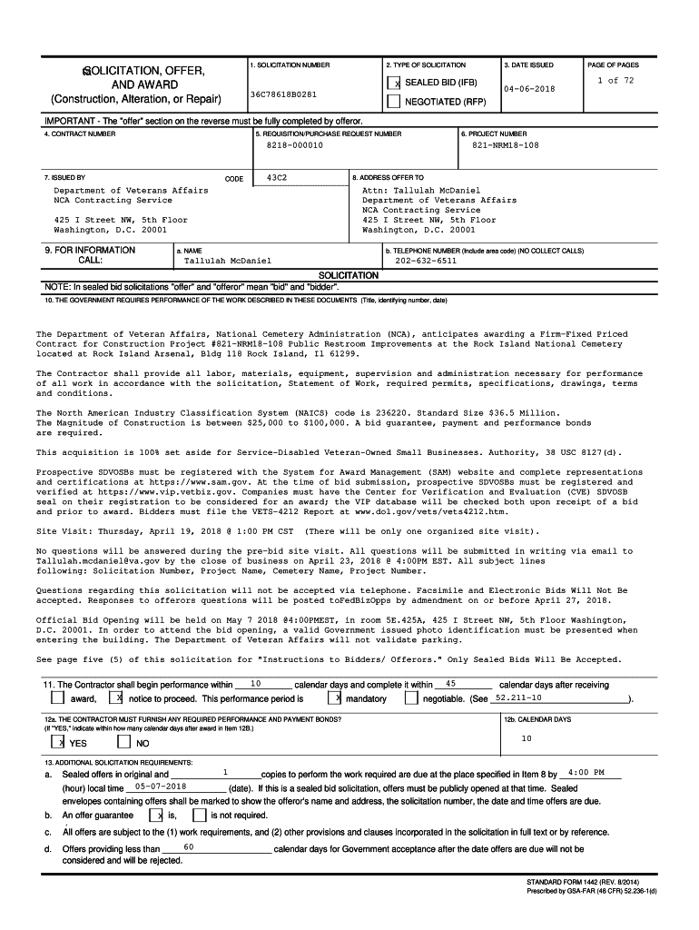
1. SOLICITATION NUMBERSOLICITATION, OFFER, ta2. TYPE OF SOLICITATION3. DATE ISSUED SEALED BID (IF)AND AWARD (Construction, Alteration, or Repair)36C78618B0281PAGE OF PAGES040620181 of 72NEGOTIATED
We are not affiliated with any brand or entity on this form
Get, Create, Make and Sign nca contracting service

Edit your nca contracting service form online
Type text, complete fillable fields, insert images, highlight or blackout data for discretion, add comments, and more.

Add your legally-binding signature
Draw or type your signature, upload a signature image, or capture it with your digital camera.

Share your form instantly
Email, fax, or share your nca contracting service form via URL. You can also download, print, or export forms to your preferred cloud storage service.
How to edit nca contracting service online
Use the instructions below to start using our professional PDF editor:
1
Register the account. Begin by clicking Start Free Trial and create a profile if you are a new user.
2
Prepare a file. Use the Add New button to start a new project. Then, using your device, upload your file to the system by importing it from internal mail, the cloud, or adding its URL.
3
Edit nca contracting service. Replace text, adding objects, rearranging pages, and more. Then select the Documents tab to combine, divide, lock or unlock the file.
4
Get your file. When you find your file in the docs list, click on its name and choose how you want to save it. To get the PDF, you can save it, send an email with it, or move it to the cloud.
Uncompromising security for your PDF editing and eSignature needs
Your private information is safe with pdfFiller. We employ end-to-end encryption, secure cloud storage, and advanced access control to protect your documents and maintain regulatory compliance.
How to fill out nca contracting service

How to fill out nca contracting service
01
Gather all the necessary information and documents required for filling out the NCA contracting service form.
02
Start by providing your basic contact information like your name, address, email address, and phone number.
03
Next, provide details about your business or organization such as its legal name, address, and contact information.
04
Specify the type of goods or services your business offers and the industry it operates in.
05
Provide information about your past contracting experience if applicable.
06
Indicate your preferred method of payment and billing information.
07
Carefully review all the information you have entered for accuracy.
08
Sign and date the form to certify the accuracy of the information provided.
09
Submit the completed NCA contracting service form to the appropriate authority or organization.
Who needs nca contracting service?
01
Any business or organization that wishes to engage in government contracting or work with the National Contracting Authority (NCA) may require NCA contracting services.
02
This may include businesses looking to bid on government contracts, subcontractors working on government projects, or organizations seeking to become registered vendors with the NCA.
03
Individuals or entities who want to navigate the complexities of government procurement and ensure compliance with applicable regulations may also benefit from NCA contracting services.
Fill
form
: Try Risk Free
For pdfFiller’s FAQs
Below is a list of the most common customer questions. If you can’t find an answer to your question, please don’t hesitate to reach out to us.
How do I complete nca contracting service on an iOS device?
Install the pdfFiller iOS app. Log in or create an account to access the solution's editing features. Open your nca contracting service by uploading it from your device or online storage. After filling in all relevant fields and eSigning if required, you may save or distribute the document.
How do I edit nca contracting service on an Android device?
Yes, you can. With the pdfFiller mobile app for Android, you can edit, sign, and share nca contracting service on your mobile device from any location; only an internet connection is needed. Get the app and start to streamline your document workflow from anywhere.
How do I fill out nca contracting service on an Android device?
Use the pdfFiller mobile app to complete your nca contracting service on an Android device. The application makes it possible to perform all needed document management manipulations, like adding, editing, and removing text, signing, annotating, and more. All you need is your smartphone and an internet connection.
What is nca contracting service?
NCA contracting service refers to the process of contract management and execution overseen by the National Contract Agency. It involves ensuring that service providers meet their contractual obligations and standards.
Who is required to file nca contracting service?
Entities engaging in contracts that fall under the jurisdiction of the National Contract Agency are required to file for NCA contracting service.
How to fill out nca contracting service?
To fill out the NCA contracting service, one must complete the designated forms provided by the National Contract Agency and provide all required documentation accurately.
What is the purpose of nca contracting service?
The purpose of NCA contracting service is to regulate and manage contracts effectively, ensuring compliance and performance standards are met.
What information must be reported on nca contracting service?
The information reported must include contract details, participant information, compliance status, and any amendments or updates relevant to the contract.
Fill out your nca contracting service online with pdfFiller!
pdfFiller is an end-to-end solution for managing, creating, and editing documents and forms in the cloud. Save time and hassle by preparing your tax forms online.

Nca Contracting Service is not the form you're looking for?Search for another form here.
Relevant keywords
Related Forms
If you believe that this page should be taken down, please follow our DMCA take down process
here
.
This form may include fields for payment information. Data entered in these fields is not covered by PCI DSS compliance.