
Get the free Planning - Advertising - Community Consultation Form New - 22 60 Smith Street HIGHGATE
Show details
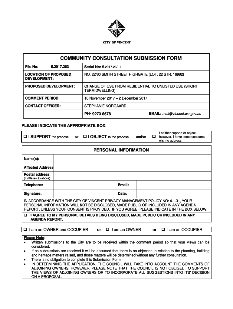
COMMUNITY CONSULTATION SUBMISSION FORM File No:5.2017.263Serial No: 5.2017.263.1LOCATION OF PROPOSED DEVELOPMENT:NO. 22/60 SMITH STREET HIGHEST (LOT: 22 STR: 16992)PROPOSED DEVELOPMENT:CHANGE OF USE
We are not affiliated with any brand or entity on this form
Get, Create, Make and Sign planning - advertising

Edit your planning - advertising form online
Type text, complete fillable fields, insert images, highlight or blackout data for discretion, add comments, and more.

Add your legally-binding signature
Draw or type your signature, upload a signature image, or capture it with your digital camera.

Share your form instantly
Email, fax, or share your planning - advertising form via URL. You can also download, print, or export forms to your preferred cloud storage service.
Editing planning - advertising online
Use the instructions below to start using our professional PDF editor:
1
Log in to your account. Start Free Trial and register a profile if you don't have one.
2
Prepare a file. Use the Add New button. Then upload your file to the system from your device, importing it from internal mail, the cloud, or by adding its URL.
3
Edit planning - advertising. Rearrange and rotate pages, insert new and alter existing texts, add new objects, and take advantage of other helpful tools. Click Done to apply changes and return to your Dashboard. Go to the Documents tab to access merging, splitting, locking, or unlocking functions.
4
Get your file. When you find your file in the docs list, click on its name and choose how you want to save it. To get the PDF, you can save it, send an email with it, or move it to the cloud.
It's easier to work with documents with pdfFiller than you could have believed. Sign up for a free account to view.
Uncompromising security for your PDF editing and eSignature needs
Your private information is safe with pdfFiller. We employ end-to-end encryption, secure cloud storage, and advanced access control to protect your documents and maintain regulatory compliance.
How to fill out planning - advertising

How to fill out planning - advertising
01
Identify your target audience and define your advertising goals.
02
Research and analyze your target market to understand their needs, interests, and behaviors.
03
Develop a comprehensive advertising strategy that aligns with your goals and target audience.
04
Determine the appropriate advertising channels and platforms to reach your target audience.
05
Create compelling and engaging advertising messages and visuals that resonate with your target audience.
06
Set a budget for your advertising campaign and allocate funds to different advertising channels.
07
Implement your advertising campaign by scheduling and placing advertisements on chosen channels.
08
Monitor the performance of your advertising campaign using key metrics and make adjustments as needed.
09
Analyze the results of your advertising campaign to evaluate its effectiveness and ROI.
10
Continuously optimize and refine your advertising strategy based on insights and feedback.
Who needs planning - advertising?
01
Businesses and organizations of all sizes that want to promote their products, services, or brand.
02
Startups looking to create awareness and gain market share.
03
Entrepreneurs and marketers who want to reach a specific target audience.
04
Companies launching new products or entering new markets.
05
Non-profit organizations aiming to raise awareness and generate support for their cause.
06
Any entity that wants to communicate and engage with their target audience effectively through advertising.
Fill
form
: Try Risk Free
For pdfFiller’s FAQs
Below is a list of the most common customer questions. If you can’t find an answer to your question, please don’t hesitate to reach out to us.
How can I send planning - advertising for eSignature?
To distribute your planning - advertising, simply send it to others and receive the eSigned document back instantly. Post or email a PDF that you've notarized online. Doing so requires never leaving your account.
How do I edit planning - advertising in Chrome?
Install the pdfFiller Google Chrome Extension to edit planning - advertising and other documents straight from Google search results. When reading documents in Chrome, you may edit them. Create fillable PDFs and update existing PDFs using pdfFiller.
Can I edit planning - advertising on an iOS device?
You can. Using the pdfFiller iOS app, you can edit, distribute, and sign planning - advertising. Install it in seconds at the Apple Store. The app is free, but you must register to buy a subscription or start a free trial.
What is planning - advertising?
Planning - advertising refers to the process of strategizing and organizing advertising efforts to effectively reach and engage the target audience through various media channels.
Who is required to file planning - advertising?
Businesses and individuals who engage in advertising activities and meet certain regulatory thresholds are typically required to file planning - advertising.
How to fill out planning - advertising?
To fill out planning - advertising, one must complete a prescribed form that includes details about the advertising campaign, target audience, and methods of delivery.
What is the purpose of planning - advertising?
The purpose of planning - advertising is to ensure that advertising efforts are conducted in an organized manner that maximizes effectiveness and compliance with regulations.
What information must be reported on planning - advertising?
Planning - advertising must report information such as the campaign's objectives, target demographics, budget, media channels, and expected outcomes.
Fill out your planning - advertising online with pdfFiller!
pdfFiller is an end-to-end solution for managing, creating, and editing documents and forms in the cloud. Save time and hassle by preparing your tax forms online.

Planning - Advertising is not the form you're looking for?Search for another form here.
Relevant keywords
Related Forms
If you believe that this page should be taken down, please follow our DMCA take down process
here
.
This form may include fields for payment information. Data entered in these fields is not covered by PCI DSS compliance.