Get the free buyers agent info buyer - Bright MLS
Show details
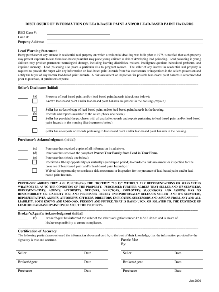
OFFER COVER SHEET PROPERTY ADDRESS: BUYERS AGENT INFO FIRST AND LAST NAME: BROKERAGE: STREET ADDRESS: CITY/STATE/ZIP: OFFICE PHONE: OFFICE FAX: AGENT CELL PHONE: AGENT EMAIL: BUYER INFO BUYER 1 FIRST
We are not affiliated with any brand or entity on this form
Get, Create, Make and Sign buyers agent info buyer
Edit your buyers agent info buyer form online
Type text, complete fillable fields, insert images, highlight or blackout data for discretion, add comments, and more.
Add your legally-binding signature
Draw or type your signature, upload a signature image, or capture it with your digital camera.
Share your form instantly
Email, fax, or share your buyers agent info buyer form via URL. You can also download, print, or export forms to your preferred cloud storage service.
Editing buyers agent info buyer online
Follow the guidelines below to benefit from the PDF editor's expertise:
1
Log in to account. Click on Start Free Trial and sign up a profile if you don't have one.
2
Upload a file. Select Add New on your Dashboard and upload a file from your device or import it from the cloud, online, or internal mail. Then click Edit.
3
Edit buyers agent info buyer. Add and replace text, insert new objects, rearrange pages, add watermarks and page numbers, and more. Click Done when you are finished editing and go to the Documents tab to merge, split, lock or unlock the file.
4
Get your file. When you find your file in the docs list, click on its name and choose how you want to save it. To get the PDF, you can save it, send an email with it, or move it to the cloud.
It's easier to work with documents with pdfFiller than you could have ever thought. You may try it out for yourself by signing up for an account.
Uncompromising security for your PDF editing and eSignature needs
Your private information is safe with pdfFiller. We employ end-to-end encryption, secure cloud storage, and advanced access control to protect your documents and maintain regulatory compliance.
How to fill out buyers agent info buyer
How to fill out buyers agent info buyer
01
Start by gathering all the necessary information about the buyer, including their full name, contact details, and any additional relevant information.
02
Fill out the buyer's agent info section on the form by entering the details of the buyer's real estate agent or broker. This typically includes their name, contact information, and brokerage firm.
03
Double-check the accuracy of the information provided before submitting the form. Ensure that all the fields are properly filled out and there are no mistakes.
04
If you have any doubts or questions about filling out the buyer's agent info, consult the guidelines or instructions provided along with the form or contact the appropriate authority or agency for further assistance.
05
Once you have completed filling out the buyer's agent info, sign and date the form as required. Follow any additional instructions or procedures specified by the form or the relevant entities involved.
06
Retain a copy of the completed form for your records and submit the original form to the designated recipient or organization as instructed.
Who needs buyers agent info buyer?
01
Buyers who are working with a real estate agent or broker and wish to provide the agent's information to the relevant parties typically need to fill out the buyer's agent info section. This information is often required in various real estate transactions, such as purchasing a property or entering into a lease agreement. Providing the buyer's agent info helps establish contact between the buyer's representative and other involved parties, facilitating smooth communication and coordination throughout the transaction process.
Fill
form
: Try Risk Free
For pdfFiller’s FAQs
Below is a list of the most common customer questions. If you can’t find an answer to your question, please don’t hesitate to reach out to us.
How do I make edits in buyers agent info buyer without leaving Chrome?
Install the pdfFiller Chrome Extension to modify, fill out, and eSign your buyers agent info buyer, which you can access right from a Google search page. Fillable documents without leaving Chrome on any internet-connected device.
How do I fill out buyers agent info buyer using my mobile device?
The pdfFiller mobile app makes it simple to design and fill out legal paperwork. Complete and sign buyers agent info buyer and other papers using the app. Visit pdfFiller's website to learn more about the PDF editor's features.
How do I complete buyers agent info buyer on an iOS device?
Make sure you get and install the pdfFiller iOS app. Next, open the app and log in or set up an account to use all of the solution's editing tools. If you want to open your buyers agent info buyer, you can upload it from your device or cloud storage, or you can type the document's URL into the box on the right. After you fill in all of the required fields in the document and eSign it, if that is required, you can save or share it with other people.
What is buyers agent info buyer?
Buyers agent info buyer refers to the documentation or information submitted by a buyer's agent, detailing the representation of a buyer in a real estate transaction.
Who is required to file buyers agent info buyer?
Typically, the buyer's agent is required to file the buyers agent info buyer on behalf of their client, the buyer.
How to fill out buyers agent info buyer?
To fill out buyers agent info buyer, complete all relevant fields with accurate information related to the buyer, the property, and the buyer's agent, ensuring everything is correct before submission.
What is the purpose of buyers agent info buyer?
The purpose of buyers agent info buyer is to officially document the buyer's representation and to facilitate communication and legal obligations between the involved parties.
What information must be reported on buyers agent info buyer?
The information that must be reported includes the names and contact details of the buyer and the buyer's agent, property details, and any other relevant transaction information.
Fill out your buyers agent info buyer online with pdfFiller!
pdfFiller is an end-to-end solution for managing, creating, and editing documents and forms in the cloud. Save time and hassle by preparing your tax forms online.
Buyers Agent Info Buyer is not the form you're looking for?Search for another form here.
Relevant keywords
Related Forms
If you believe that this page should be taken down, please follow our DMCA take down process
here
.
This form may include fields for payment information. Data entered in these fields is not covered by PCI DSS compliance.