
Get the free Ecology Inspector(s): Elizabeth Fint, Stephanie Barney
Show details
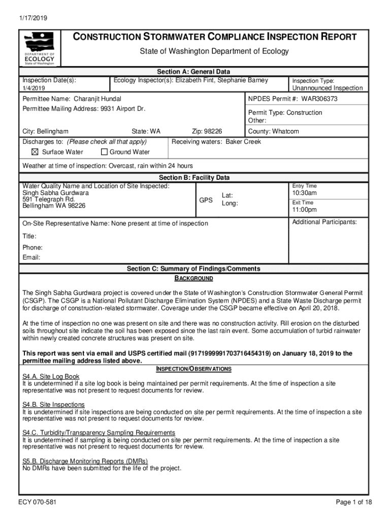
1/17/2019CONSTRUCTION STORMWATER COMPLIANCE INSPECTION REPORT
State of Washington Department of EcologyInspection Date(s):Section A: General Data
Ecology Inspector(s): Elizabeth Fine, Stephanie BarneyPermittee
We are not affiliated with any brand or entity on this form
Get, Create, Make and Sign ecology inspectors elizabeth fint

Edit your ecology inspectors elizabeth fint form online
Type text, complete fillable fields, insert images, highlight or blackout data for discretion, add comments, and more.

Add your legally-binding signature
Draw or type your signature, upload a signature image, or capture it with your digital camera.

Share your form instantly
Email, fax, or share your ecology inspectors elizabeth fint form via URL. You can also download, print, or export forms to your preferred cloud storage service.
How to edit ecology inspectors elizabeth fint online
To use the services of a skilled PDF editor, follow these steps:
1
Set up an account. If you are a new user, click Start Free Trial and establish a profile.
2
Simply add a document. Select Add New from your Dashboard and import a file into the system by uploading it from your device or importing it via the cloud, online, or internal mail. Then click Begin editing.
3
Edit ecology inspectors elizabeth fint. Replace text, adding objects, rearranging pages, and more. Then select the Documents tab to combine, divide, lock or unlock the file.
4
Save your file. Select it from your list of records. Then, move your cursor to the right toolbar and choose one of the exporting options. You can save it in multiple formats, download it as a PDF, send it by email, or store it in the cloud, among other things.
It's easier to work with documents with pdfFiller than you could have believed. You may try it out for yourself by signing up for an account.
Uncompromising security for your PDF editing and eSignature needs
Your private information is safe with pdfFiller. We employ end-to-end encryption, secure cloud storage, and advanced access control to protect your documents and maintain regulatory compliance.
How to fill out ecology inspectors elizabeth fint

How to fill out ecology inspectors elizabeth fint
01
To fill out the ecology inspectors Elizabeth Fint form, follow these steps:
02
Access the official website of Elizabeth Fint.
03
Locate and click on the 'Ecology Inspectors Form' or similar option.
04
Read the instructions and guidelines provided on the form.
05
Begin filling out the form by entering your personal information, such as name, address, and contact details.
06
Provide accurate details about the ecological inspection required, including the location, scope, and purpose.
07
Ensure that any supporting documents or evidence are uploaded as per the instructions.
08
Review the completed form for any errors or missing information.
09
Once satisfied, submit the form online or follow the designated submission process.
10
Keep a copy of the submitted form for your records.
11
Await confirmation or further communication from Elizabeth Fint regarding your ecological inspection request.
Who needs ecology inspectors elizabeth fint?
01
Various individuals or entities may require the services of ecology inspectors Elizabeth Fint. These include:
02
- Property owners or tenants who suspect and want to assess potential environmental issues on their premises.
03
- Companies involved in environmentally-sensitive industries, such as waste management, chemical manufacturing, or construction.
04
- Government agencies responsible for monitoring and regulating environmental compliance.
05
- Non-profit organizations focused on conservation or environmental advocacy.
06
- Environmental consultants or experts who require additional insights or verification in the field of ecology.
07
- Academic institutions or researchers studying environmental impact and preservation.
08
- Any individual or organization with a specific interest in ecological assessment or protection.
Fill
form
: Try Risk Free
For pdfFiller’s FAQs
Below is a list of the most common customer questions. If you can’t find an answer to your question, please don’t hesitate to reach out to us.
How can I manage my ecology inspectors elizabeth fint directly from Gmail?
You may use pdfFiller's Gmail add-on to change, fill out, and eSign your ecology inspectors elizabeth fint as well as other documents directly in your inbox by using the pdfFiller add-on for Gmail. pdfFiller for Gmail may be found on the Google Workspace Marketplace. Use the time you would have spent dealing with your papers and eSignatures for more vital tasks instead.
How do I execute ecology inspectors elizabeth fint online?
Filling out and eSigning ecology inspectors elizabeth fint is now simple. The solution allows you to change and reorganize PDF text, add fillable fields, and eSign the document. Start a free trial of pdfFiller, the best document editing solution.
How do I fill out ecology inspectors elizabeth fint on an Android device?
On an Android device, use the pdfFiller mobile app to finish your ecology inspectors elizabeth fint. The program allows you to execute all necessary document management operations, such as adding, editing, and removing text, signing, annotating, and more. You only need a smartphone and an internet connection.
What is ecology inspectors elizabeth fint?
Ecology inspectors Elizabeth FINT refers to a specific form or report that needs to be filled out by ecology inspectors regarding environmental assessments or inspections.
Who is required to file ecology inspectors elizabeth fint?
Ecology inspectors, environmental professionals, or organizations involved in specific ecological assessments are required to file the ecology inspectors Elizabeth FINT.
How to fill out ecology inspectors elizabeth fint?
To fill out ecology inspectors Elizabeth FINT, individuals must provide accurate information as required in the form, including details about the ecological assessment conducted, findings, and any relevant data.
What is the purpose of ecology inspectors elizabeth fint?
The purpose of ecology inspectors Elizabeth FINT is to ensure that environmental regulations are followed and to provide a record of ecological inspections and assessments conducted.
What information must be reported on ecology inspectors elizabeth fint?
The information that must be reported on ecology inspectors Elizabeth FINT generally includes details about the site inspected, the conditions observed, actions taken, and compliance status with environmental standards.
Fill out your ecology inspectors elizabeth fint online with pdfFiller!
pdfFiller is an end-to-end solution for managing, creating, and editing documents and forms in the cloud. Save time and hassle by preparing your tax forms online.

Ecology Inspectors Elizabeth Fint is not the form you're looking for?Search for another form here.
Relevant keywords
Related Forms
If you believe that this page should be taken down, please follow our DMCA take down process
here
.
This form may include fields for payment information. Data entered in these fields is not covered by PCI DSS compliance.