
Get the free PART I - THE SCHEDULE 1 of SECTION A - SOLICITATION ...
Show details
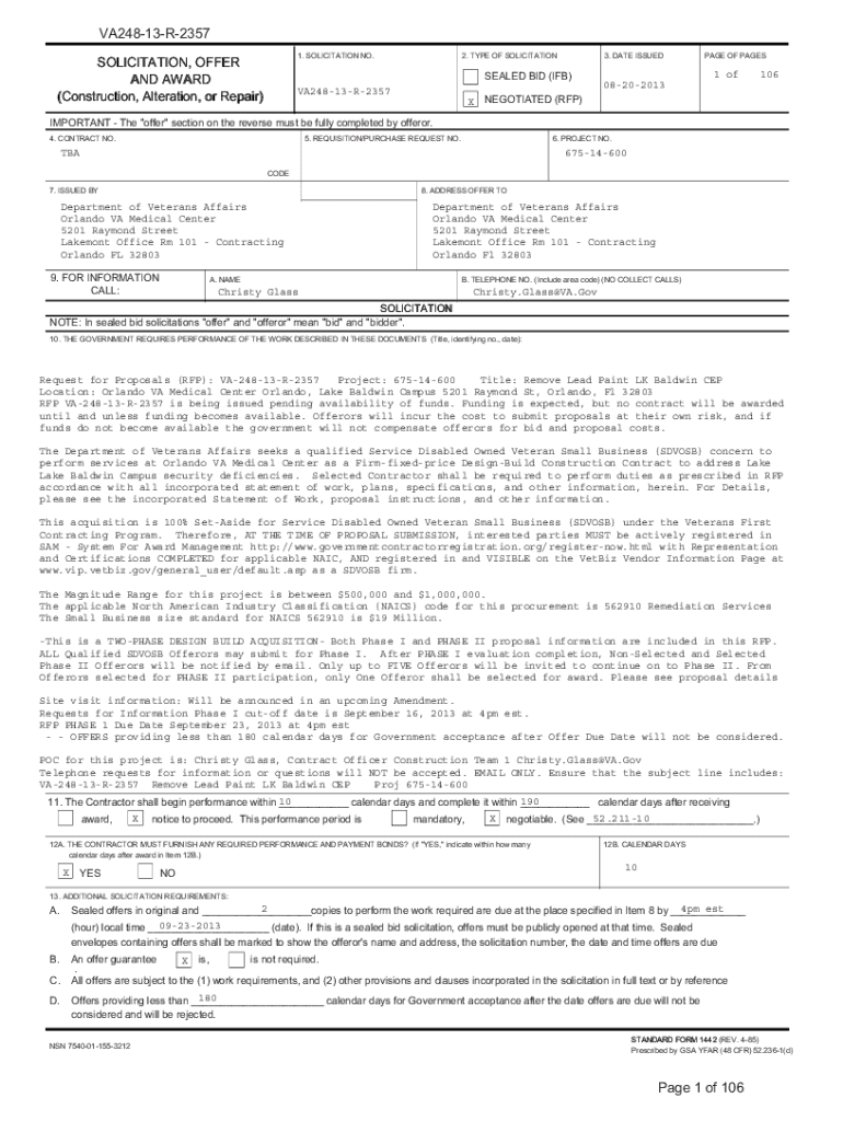
VA24813R2357 1. SOLICITATION NO.2. TYPE OF SOLICITATIONSOLICITATION, OFFER AND AWARD PART I THE SCHEDULE 1 of VA24813R2357 (Construction, Alteration, or Repair)3. DATE ISSUEDSEALED BID (IF)PAGE OF
We are not affiliated with any brand or entity on this form
Get, Create, Make and Sign part i - form

Edit your part i - form form online
Type text, complete fillable fields, insert images, highlight or blackout data for discretion, add comments, and more.

Add your legally-binding signature
Draw or type your signature, upload a signature image, or capture it with your digital camera.

Share your form instantly
Email, fax, or share your part i - form form via URL. You can also download, print, or export forms to your preferred cloud storage service.
Editing part i - form online
To use our professional PDF editor, follow these steps:
1
Sign into your account. If you don't have a profile yet, click Start Free Trial and sign up for one.
2
Prepare a file. Use the Add New button to start a new project. Then, using your device, upload your file to the system by importing it from internal mail, the cloud, or adding its URL.
3
Edit part i - form. Rearrange and rotate pages, add and edit text, and use additional tools. To save changes and return to your Dashboard, click Done. The Documents tab allows you to merge, divide, lock, or unlock files.
4
Save your file. Select it in the list of your records. Then, move the cursor to the right toolbar and choose one of the available exporting methods: save it in multiple formats, download it as a PDF, send it by email, or store it in the cloud.
Dealing with documents is always simple with pdfFiller. Try it right now
Uncompromising security for your PDF editing and eSignature needs
Your private information is safe with pdfFiller. We employ end-to-end encryption, secure cloud storage, and advanced access control to protect your documents and maintain regulatory compliance.
How to fill out part i - form

How to fill out part i - form
01
To fill out Part I - Form, follow these steps:
02
Start by reading the instructions provided with the form.
03
Gather all the necessary information and documents required to complete the form.
04
Begin by providing your personal details, such as your name, address, and contact information.
05
Move on to filling out the sections that require specific information, such as your employment history, income, and assets.
06
Double-check all the information you have entered to ensure its accuracy and completeness.
07
Sign and date the form as required.
08
Make copies of the completed form for your records.
09
Submit the form to the designated recipient or address mentioned in the instructions.
10
Follow up to ensure that your form has been received and processed.
11
Keep a copy of the submitted form and any correspondences for future reference.
Who needs part i - form?
01
Part I - Form may be needed by individuals who are required to provide certain personal, employment, income, and asset details for various purposes.
02
These individuals may include:
03
- Job applicants
04
- Taxpayers
05
- Loan or mortgage applicants
06
- Immigration applicants
07
- Renters or tenants
08
- Individuals applying for public assistance
09
- Participants in government programs or services
10
- Insurance policy applicants
11
The specific requirements for completing and submitting this form may vary depending on the purpose and the organization requesting it. It is essential to review the instructions and guidelines provided with the form to ensure compliance.
Fill
form
: Try Risk Free
For pdfFiller’s FAQs
Below is a list of the most common customer questions. If you can’t find an answer to your question, please don’t hesitate to reach out to us.
Can I create an eSignature for the part i - form in Gmail?
You can easily create your eSignature with pdfFiller and then eSign your part i - form directly from your inbox with the help of pdfFiller’s add-on for Gmail. Please note that you must register for an account in order to save your signatures and signed documents.
How do I fill out part i - form using my mobile device?
You can easily create and fill out legal forms with the help of the pdfFiller mobile app. Complete and sign part i - form and other documents on your mobile device using the application. Visit pdfFiller’s webpage to learn more about the functionalities of the PDF editor.
How can I fill out part i - form on an iOS device?
In order to fill out documents on your iOS device, install the pdfFiller app. Create an account or log in to an existing one if you have a subscription to the service. Once the registration process is complete, upload your part i - form. You now can take advantage of pdfFiller's advanced functionalities: adding fillable fields and eSigning documents, and accessing them from any device, wherever you are.
What is part i - form?
Part I of a form typically refers to a specific section of a larger form required for reporting financial or tax-related information.
Who is required to file part i - form?
Generally, individuals or entities that meet certain income, tax, or reporting criteria as established by tax regulations are required to file Part I of the form.
How to fill out part i - form?
To fill out Part I of a form, gather all necessary documentation, enter accurate information in the designated fields, and ensure that the data aligns with the instructions provided for the form.
What is the purpose of part i - form?
The purpose of Part I of a form is to collect specific information necessary for compliance with tax laws or regulatory requirements.
What information must be reported on part i - form?
Information that typically must be reported includes identification details, financial data, and relevant transaction history as required by the tax regulations.
Fill out your part i - form online with pdfFiller!
pdfFiller is an end-to-end solution for managing, creating, and editing documents and forms in the cloud. Save time and hassle by preparing your tax forms online.

Part I - Form is not the form you're looking for?Search for another form here.
Relevant keywords
Related Forms
If you believe that this page should be taken down, please follow our DMCA take down process
here
.
This form may include fields for payment information. Data entered in these fields is not covered by PCI DSS compliance.