Get the free HISTORIC RESOURCE SURVEY FORM - Oregon Archaeological Services
Show details
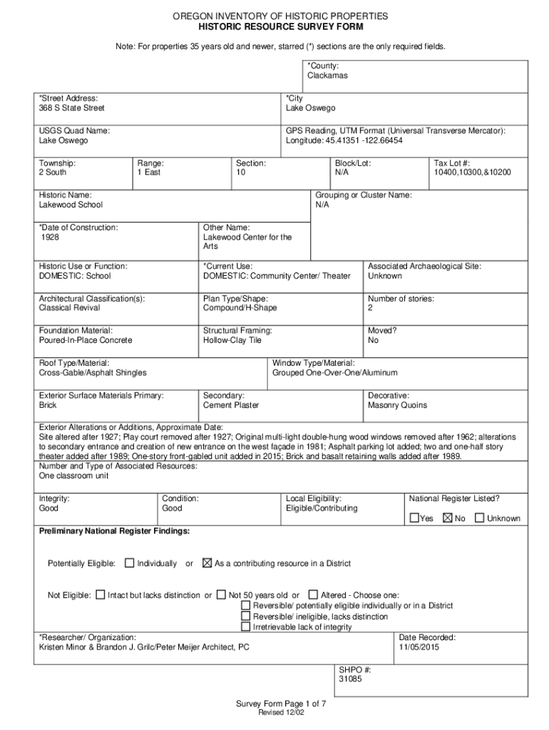
OREGON INVENTORY OF HISTORIC PROPERTIES HISTORIC RESOURCE SURVEY FORM Note: For properties 35 years old and newer, starred (*) sections are the only required fields. *County: Clacks *Street Address:
We are not affiliated with any brand or entity on this form
Get, Create, Make and Sign historic resource survey form
Edit your historic resource survey form form online
Type text, complete fillable fields, insert images, highlight or blackout data for discretion, add comments, and more.
Add your legally-binding signature
Draw or type your signature, upload a signature image, or capture it with your digital camera.
Share your form instantly
Email, fax, or share your historic resource survey form form via URL. You can also download, print, or export forms to your preferred cloud storage service.
How to edit historic resource survey form online
To use our professional PDF editor, follow these steps:
1
Register the account. Begin by clicking Start Free Trial and create a profile if you are a new user.
2
Prepare a file. Use the Add New button. Then upload your file to the system from your device, importing it from internal mail, the cloud, or by adding its URL.
3
Edit historic resource survey form. Add and replace text, insert new objects, rearrange pages, add watermarks and page numbers, and more. Click Done when you are finished editing and go to the Documents tab to merge, split, lock or unlock the file.
4
Save your file. Choose it from the list of records. Then, shift the pointer to the right toolbar and select one of the several exporting methods: save it in multiple formats, download it as a PDF, email it, or save it to the cloud.
With pdfFiller, it's always easy to deal with documents. Try it right now
Uncompromising security for your PDF editing and eSignature needs
Your private information is safe with pdfFiller. We employ end-to-end encryption, secure cloud storage, and advanced access control to protect your documents and maintain regulatory compliance.
How to fill out historic resource survey form
How to fill out historic resource survey form
01
Start by gathering all the necessary information about the historic resource you want to survey. This may include information about the building's age, architectural style, historical significance, and any previous renovations or alterations.
02
Obtain a copy of the historic resource survey form from the relevant authorities or organizations responsible for historic preservation in your area.
03
Fill out the basic details section of the form, which usually includes the name of the historic resource, its address, and contact information.
04
Provide a detailed description of the historic resource, including its architectural features, materials used, and any unique characteristics that contribute to its historical significance.
05
Answer any specific questions or prompts on the form regarding the historic resource's history, previous uses, or notable residents.
06
Include any supporting documentation or photographs that can help illustrate the historic resource's importance and condition.
07
Verify the accuracy of the information provided and make sure all sections of the form are properly completed.
08
Submit the filled-out historic resource survey form as per the instructions provided by the authorities or organizations responsible for collecting it.
09
If required, follow up with additional information or respond to any follow-up queries from the authorities or organizations.
Who needs historic resource survey form?
01
Historic resource survey forms are typically needed by individuals, organizations, or government agencies involved in the preservation and management of historical resources.
02
Architects, historians, researchers, and property owners may require historic resource survey forms to document and assess the historical significance of buildings or sites.
03
Local planning departments, heritage committees, and historic preservation societies often use these forms to evaluate and protect historic resources in their respective areas.
04
By conducting surveys using these forms, valuable historical information can be collected and used for heritage conservation, planning decisions, and educational purposes.
Fill
form
: Try Risk Free
For pdfFiller’s FAQs
Below is a list of the most common customer questions. If you can’t find an answer to your question, please don’t hesitate to reach out to us.
Where do I find historic resource survey form?
It's simple with pdfFiller, a full online document management tool. Access our huge online form collection (over 25M fillable forms are accessible) and find the historic resource survey form in seconds. Open it immediately and begin modifying it with powerful editing options.
How do I complete historic resource survey form online?
pdfFiller makes it easy to finish and sign historic resource survey form online. It lets you make changes to original PDF content, highlight, black out, erase, and write text anywhere on a page, legally eSign your form, and more, all from one place. Create a free account and use the web to keep track of professional documents.
How do I edit historic resource survey form in Chrome?
Download and install the pdfFiller Google Chrome Extension to your browser to edit, fill out, and eSign your historic resource survey form, which you can open in the editor with a single click from a Google search page. Fillable documents may be executed from any internet-connected device without leaving Chrome.
What is historic resource survey form?
A historic resource survey form is a document used to collect detailed information about historic properties, structures, and sites for evaluation and preservation purposes.
Who is required to file historic resource survey form?
Individuals or organizations who own, manage, or wish to develop property that may contain historic resources are generally required to file the historic resource survey form.
How to fill out historic resource survey form?
To fill out the historic resource survey form, individuals must provide details such as property address, historical significance, physical characteristics, and condition of the resource, along with photographs and maps if applicable.
What is the purpose of historic resource survey form?
The purpose of the historic resource survey form is to document and assess the historical significance of a property, aiding in preservation efforts and informing planning decisions.
What information must be reported on historic resource survey form?
The form typically requires reporting information such as the property's name, location, age, architectural style, historical context, and current condition, along with ownership details.
Fill out your historic resource survey form online with pdfFiller!
pdfFiller is an end-to-end solution for managing, creating, and editing documents and forms in the cloud. Save time and hassle by preparing your tax forms online.
Historic Resource Survey Form is not the form you're looking for?Search for another form here.
Relevant keywords
Related Forms
If you believe that this page should be taken down, please follow our DMCA take down process
here
.
This form may include fields for payment information. Data entered in these fields is not covered by PCI DSS compliance.