Get the free Including suburb and 3/53 Bay Road Sandringham 3191
Show details
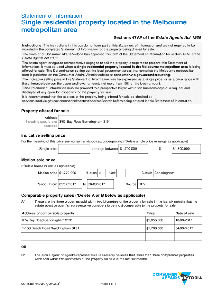
Statement of InformationSingle residential property located in the Melbourne
metropolitan area
Sections 47AF of the Estate Agents Act 1980
Instructions: The instructions in this box do not form part
We are not affiliated with any brand or entity on this form
Get, Create, Make and Sign including suburb and 353
Edit your including suburb and 353 form online
Type text, complete fillable fields, insert images, highlight or blackout data for discretion, add comments, and more.
Add your legally-binding signature
Draw or type your signature, upload a signature image, or capture it with your digital camera.
Share your form instantly
Email, fax, or share your including suburb and 353 form via URL. You can also download, print, or export forms to your preferred cloud storage service.
Editing including suburb and 353 online
Use the instructions below to start using our professional PDF editor:
1
Sign into your account. If you don't have a profile yet, click Start Free Trial and sign up for one.
2
Simply add a document. Select Add New from your Dashboard and import a file into the system by uploading it from your device or importing it via the cloud, online, or internal mail. Then click Begin editing.
3
Edit including suburb and 353. Rearrange and rotate pages, add new and changed texts, add new objects, and use other useful tools. When you're done, click Done. You can use the Documents tab to merge, split, lock, or unlock your files.
4
Save your file. Select it from your list of records. Then, move your cursor to the right toolbar and choose one of the exporting options. You can save it in multiple formats, download it as a PDF, send it by email, or store it in the cloud, among other things.
It's easier to work with documents with pdfFiller than you can have believed. You may try it out for yourself by signing up for an account.
Uncompromising security for your PDF editing and eSignature needs
Your private information is safe with pdfFiller. We employ end-to-end encryption, secure cloud storage, and advanced access control to protect your documents and maintain regulatory compliance.
How to fill out including suburb and 353
How to fill out including suburb and 353
01
To fill out the form, follow these steps:
02
- Start by entering your personal details such as name, address, and contact information.
03
- Next, locate the section for suburb and enter the name of your suburb.
04
- After that, find the field for 353 and enter the appropriate value.
05
- Make sure to review your entries for accuracy and completeness before submitting the form.
Who needs including suburb and 353?
01
Anyone who is required to provide their personal details, including suburb and 353, needs to fill out the form. This could include individuals applying for certain permits or licenses, completing official documents, or providing information for statistical or administrative purposes.
Fill
form
: Try Risk Free
For pdfFiller’s FAQs
Below is a list of the most common customer questions. If you can’t find an answer to your question, please don’t hesitate to reach out to us.
How can I send including suburb and 353 for eSignature?
When you're ready to share your including suburb and 353, you can send it to other people and get the eSigned document back just as quickly. Share your PDF by email, fax, text message, or USPS mail. You can also notarize your PDF on the web. You don't have to leave your account to do this.
Can I create an electronic signature for the including suburb and 353 in Chrome?
You certainly can. You get not just a feature-rich PDF editor and fillable form builder with pdfFiller, but also a robust e-signature solution that you can add right to your Chrome browser. You may use our addon to produce a legally enforceable eSignature by typing, sketching, or photographing your signature with your webcam. Choose your preferred method and eSign your including suburb and 353 in minutes.
Can I create an eSignature for the including suburb and 353 in Gmail?
When you use pdfFiller's add-on for Gmail, you can add or type a signature. You can also draw a signature. pdfFiller lets you eSign your including suburb and 353 and other documents right from your email. In order to keep signed documents and your own signatures, you need to sign up for an account.
What is including suburb and 353?
Including suburb and 353 refers to specific tax requirements or forms related to certain financial disclosures in a given jurisdiction.
Who is required to file including suburb and 353?
Typically, individuals or businesses that meet certain financial thresholds or are involved in specific activities related to the jurisdiction are required to file including suburb and 353.
How to fill out including suburb and 353?
To fill out including suburb and 353, one must gather required financial information, complete the designated forms accurately, and ensure that all necessary supporting documentation is attached.
What is the purpose of including suburb and 353?
The purpose of including suburb and 353 is to ensure compliance with local tax laws and regulations, allowing the government to assess taxes properly and monitor economic activities.
What information must be reported on including suburb and 353?
The information that must be reported typically includes income, expenses, deductions, and other financial details relevant to the filer’s economic activities.
Fill out your including suburb and 353 online with pdfFiller!
pdfFiller is an end-to-end solution for managing, creating, and editing documents and forms in the cloud. Save time and hassle by preparing your tax forms online.
Including Suburb And 353 is not the form you're looking for?Search for another form here.
Relevant keywords
Related Forms
If you believe that this page should be taken down, please follow our DMCA take down process
here
.
This form may include fields for payment information. Data entered in these fields is not covered by PCI DSS compliance.