Get the free New York-Tuxedo Agreement of Lease and License Agreement ...
Show details
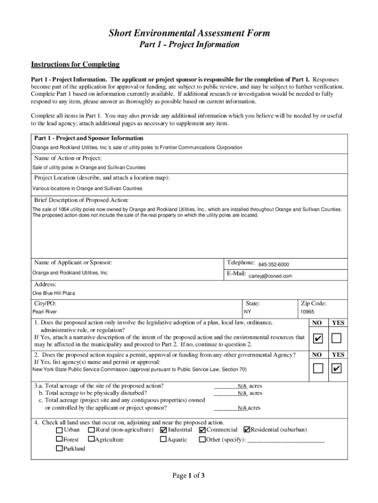
EXHIBIT 1Agreement, made as of November 1, 1978, between Orange and Rockland Utilities, Inc., a New York Corporation having its principal office at One Blue Hill Plaza, Pearl River, New York (hereinafter
We are not affiliated with any brand or entity on this form
Get, Create, Make and Sign new york-tuxedo agreement of
Edit your new york-tuxedo agreement of form online
Type text, complete fillable fields, insert images, highlight or blackout data for discretion, add comments, and more.
Add your legally-binding signature
Draw or type your signature, upload a signature image, or capture it with your digital camera.
Share your form instantly
Email, fax, or share your new york-tuxedo agreement of form via URL. You can also download, print, or export forms to your preferred cloud storage service.
How to edit new york-tuxedo agreement of online
Here are the steps you need to follow to get started with our professional PDF editor:
1
Register the account. Begin by clicking Start Free Trial and create a profile if you are a new user.
2
Prepare a file. Use the Add New button to start a new project. Then, using your device, upload your file to the system by importing it from internal mail, the cloud, or adding its URL.
3
Edit new york-tuxedo agreement of. Rearrange and rotate pages, add new and changed texts, add new objects, and use other useful tools. When you're done, click Done. You can use the Documents tab to merge, split, lock, or unlock your files.
4
Save your file. Select it from your records list. Then, click the right toolbar and select one of the various exporting options: save in numerous formats, download as PDF, email, or cloud.
Uncompromising security for your PDF editing and eSignature needs
Your private information is safe with pdfFiller. We employ end-to-end encryption, secure cloud storage, and advanced access control to protect your documents and maintain regulatory compliance.
How to fill out new york-tuxedo agreement of
How to fill out new york-tuxedo agreement of
01
Step 1: Obtain the New York-Tuxedo Agreement of form.
02
Step 2: Read through the form carefully and understand the terms and conditions.
03
Step 3: Fill in the necessary personal information such as your name, address, and contact details.
04
Step 4: Provide details about the property or assets being covered by the agreement.
05
Step 5: Include any additional terms or conditions that you wish to include in the agreement.
06
Step 6: Review the completed form to ensure all information is accurate and complete.
07
Step 7: Sign the form and have it notarized, if required.
08
Step 8: Make copies of the completed and signed agreement for all parties involved.
09
Step 9: File the agreement with the appropriate authorities or keep it in a safe place as per your requirement.
Who needs new york-tuxedo agreement of?
01
Anyone who wishes to establish legal agreements regarding property or assets in the New York-Tuxedo area may need the New York-Tuxedo Agreement of.
Fill
form
: Try Risk Free
For pdfFiller’s FAQs
Below is a list of the most common customer questions. If you can’t find an answer to your question, please don’t hesitate to reach out to us.
How do I edit new york-tuxedo agreement of online?
The editing procedure is simple with pdfFiller. Open your new york-tuxedo agreement of in the editor, which is quite user-friendly. You may use it to blackout, redact, write, and erase text, add photos, draw arrows and lines, set sticky notes and text boxes, and much more.
Can I create an electronic signature for the new york-tuxedo agreement of in Chrome?
Yes. By adding the solution to your Chrome browser, you may use pdfFiller to eSign documents while also enjoying all of the PDF editor's capabilities in one spot. Create a legally enforceable eSignature by sketching, typing, or uploading a photo of your handwritten signature using the extension. Whatever option you select, you'll be able to eSign your new york-tuxedo agreement of in seconds.
How do I edit new york-tuxedo agreement of on an iOS device?
You certainly can. You can quickly edit, distribute, and sign new york-tuxedo agreement of on your iOS device with the pdfFiller mobile app. Purchase it from the Apple Store and install it in seconds. The program is free, but in order to purchase a subscription or activate a free trial, you must first establish an account.
What is new york-tuxedo agreement of?
The New York Tuxedo Agreement is a legal document used in New York that outlines an agreement between parties regarding specific conditions or arrangements, often related to business or real estate.
Who is required to file new york-tuxedo agreement of?
Entities or individuals engaged in certain transactions or agreements that fall under the jurisdiction or regulatory framework of New York may be required to file the New York Tuxedo Agreement.
How to fill out new york-tuxedo agreement of?
To fill out the New York Tuxedo Agreement, one must provide necessary details such as the parties involved, the terms of the agreement, and any specific conditions that apply, ensuring that all required fields are accurately completed.
What is the purpose of new york-tuxedo agreement of?
The purpose of the New York Tuxedo Agreement is to formalize and clarify the terms of an agreement between parties, ensuring mutual understanding and legal compliance regarding the specifics of the arrangement.
What information must be reported on new york-tuxedo agreement of?
The New York Tuxedo Agreement must report information including the names of the parties involved, the specific terms of the agreement, any monetary figures, relevant dates, and any signatures required to validate the agreement.
Fill out your new york-tuxedo agreement of online with pdfFiller!
pdfFiller is an end-to-end solution for managing, creating, and editing documents and forms in the cloud. Save time and hassle by preparing your tax forms online.
New York-Tuxedo Agreement Of is not the form you're looking for?Search for another form here.
Relevant keywords
Related Forms
If you believe that this page should be taken down, please follow our DMCA take down process
here
.
This form may include fields for payment information. Data entered in these fields is not covered by PCI DSS compliance.