Get the free NRCC-LTO-E (Created 9/17)
Show details
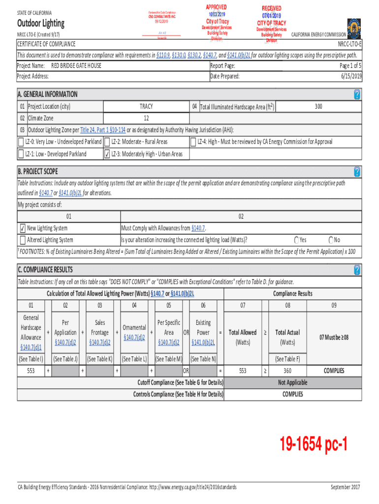
STATE OF CALIFORNIAOutdoor Lighting
NRCCLTOE (Created 9/17)APPROVED
Reviewed for Code Compliance CSG CONSULTANTS INC.09/12/2019
SM MB
Reviewed By10/03/2019City of Tracy
Development Services
Building
We are not affiliated with any brand or entity on this form
Get, Create, Make and Sign nrcc-lto-e created 917
Edit your nrcc-lto-e created 917 form online
Type text, complete fillable fields, insert images, highlight or blackout data for discretion, add comments, and more.
Add your legally-binding signature
Draw or type your signature, upload a signature image, or capture it with your digital camera.
Share your form instantly
Email, fax, or share your nrcc-lto-e created 917 form via URL. You can also download, print, or export forms to your preferred cloud storage service.
How to edit nrcc-lto-e created 917 online
To use our professional PDF editor, follow these steps:
1
Create an account. Begin by choosing Start Free Trial and, if you are a new user, establish a profile.
2
Upload a file. Select Add New on your Dashboard and upload a file from your device or import it from the cloud, online, or internal mail. Then click Edit.
3
Edit nrcc-lto-e created 917. Rearrange and rotate pages, add and edit text, and use additional tools. To save changes and return to your Dashboard, click Done. The Documents tab allows you to merge, divide, lock, or unlock files.
4
Save your file. Choose it from the list of records. Then, shift the pointer to the right toolbar and select one of the several exporting methods: save it in multiple formats, download it as a PDF, email it, or save it to the cloud.
The use of pdfFiller makes dealing with documents straightforward.
Uncompromising security for your PDF editing and eSignature needs
Your private information is safe with pdfFiller. We employ end-to-end encryption, secure cloud storage, and advanced access control to protect your documents and maintain regulatory compliance.
How to fill out nrcc-lto-e created 917
How to fill out nrcc-lto-e created 917
01
To fill out nrcc-lto-e created 917, follow these steps:
02
Gather all the necessary information and documentation that is required to complete the form.
03
Start by entering the basic details such as name, address, contact information, and other identifying information.
04
Proceed to fill in the specific details regarding the purpose of creating nrcc-lto-e 917, including the nature of the project or activity.
05
Provide any additional information or attachments that may be necessary to support the application.
06
Double-check all the information filled in to ensure accuracy and completeness.
07
Once you have filled in all the required fields, review the form one final time to ensure everything is accurate.
08
Sign and date the form to certify the accuracy of the information provided.
09
Submit the completed nrcc-lto-e created 917 form to the designated authority or department.
Who needs nrcc-lto-e created 917?
01
Nrcc-lto-e created 917 is needed by individuals, organizations, or companies who are involved in projects or activities that require regulatory compliance and approval from the designated authority.
02
It is typically required by those who wish to undertake activities that have potential environmental impact and must adhere to certain regulations and guidelines enforced by the local government or regulatory bodies.
Fill
form
: Try Risk Free
For pdfFiller’s FAQs
Below is a list of the most common customer questions. If you can’t find an answer to your question, please don’t hesitate to reach out to us.
How do I edit nrcc-lto-e created 917 online?
pdfFiller not only allows you to edit the content of your files but fully rearrange them by changing the number and sequence of pages. Upload your nrcc-lto-e created 917 to the editor and make any required adjustments in a couple of clicks. The editor enables you to blackout, type, and erase text in PDFs, add images, sticky notes and text boxes, and much more.
How do I make edits in nrcc-lto-e created 917 without leaving Chrome?
Install the pdfFiller Google Chrome Extension in your web browser to begin editing nrcc-lto-e created 917 and other documents right from a Google search page. When you examine your documents in Chrome, you may make changes to them. With pdfFiller, you can create fillable documents and update existing PDFs from any internet-connected device.
Can I sign the nrcc-lto-e created 917 electronically in Chrome?
Yes. By adding the solution to your Chrome browser, you can use pdfFiller to eSign documents and enjoy all of the features of the PDF editor in one place. Use the extension to create a legally-binding eSignature by drawing it, typing it, or uploading a picture of your handwritten signature. Whatever you choose, you will be able to eSign your nrcc-lto-e created 917 in seconds.
What is nrcc-lto-e created 917?
nrcc-lto-e created 917 is a form used for reporting specific tax information to the relevant tax authority.
Who is required to file nrcc-lto-e created 917?
Individuals and entities involved in specified transactions or activities as outlined by the tax authority are required to file nrcc-lto-e created 917.
How to fill out nrcc-lto-e created 917?
To fill out nrcc-lto-e created 917, one must provide accurate information regarding income, deductions, and other pertinent data as specified in the form's instructions.
What is the purpose of nrcc-lto-e created 917?
The purpose of nrcc-lto-e created 917 is to ensure compliance with tax regulations by reporting specific financial activities.
What information must be reported on nrcc-lto-e created 917?
Information that must be reported includes income details, applicable deductions, and other relevant financial data required by the tax authority.
Fill out your nrcc-lto-e created 917 online with pdfFiller!
pdfFiller is an end-to-end solution for managing, creating, and editing documents and forms in the cloud. Save time and hassle by preparing your tax forms online.
Nrcc-Lto-E Created 917 is not the form you're looking for?Search for another form here.
Relevant keywords
Related Forms
If you believe that this page should be taken down, please follow our DMCA take down process
here
.
This form may include fields for payment information. Data entered in these fields is not covered by PCI DSS compliance.