
Get the free Including suburb and 12-14 Trentham Street, Sandringham VIC 3191
Show details
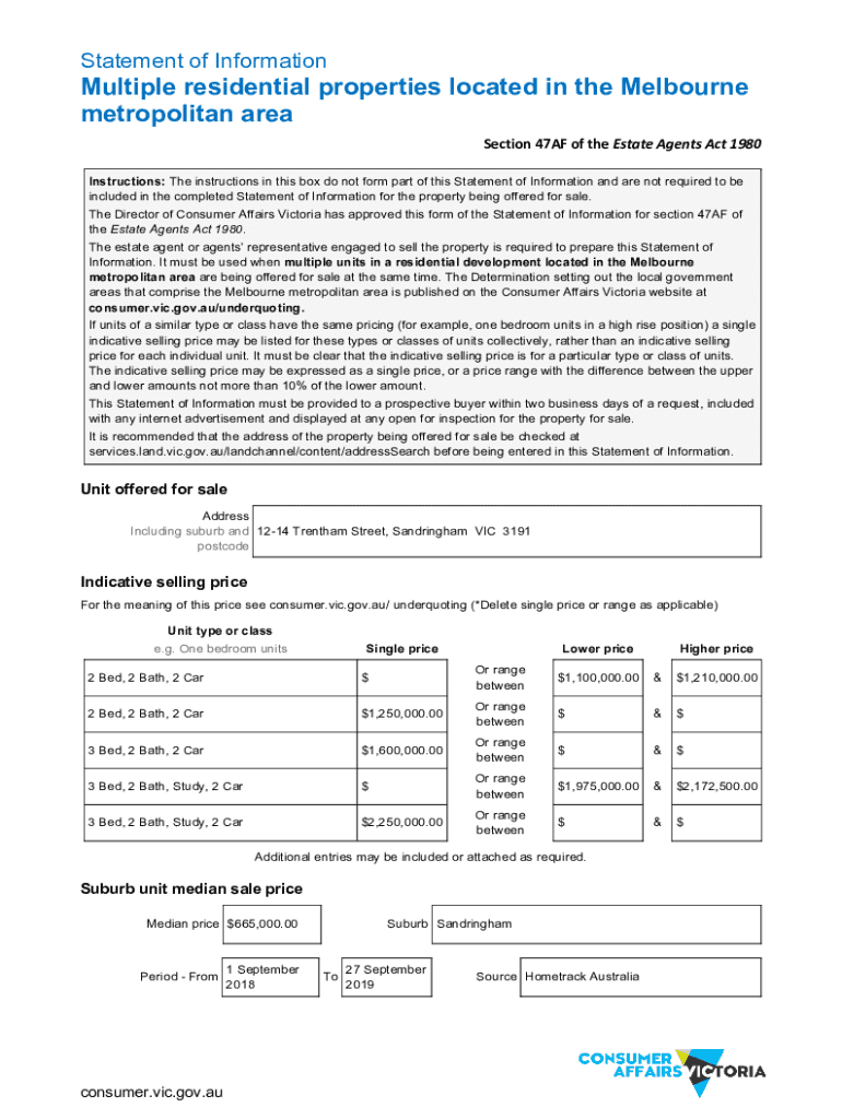
Statement of InformationMultiple residential properties located in the Melbourne
metropolitan area
Section 47AF of the Estate Agents Act 1980
Instructions: The instructions in this box do not form
We are not affiliated with any brand or entity on this form
Get, Create, Make and Sign including suburb and 12-14

Edit your including suburb and 12-14 form online
Type text, complete fillable fields, insert images, highlight or blackout data for discretion, add comments, and more.

Add your legally-binding signature
Draw or type your signature, upload a signature image, or capture it with your digital camera.

Share your form instantly
Email, fax, or share your including suburb and 12-14 form via URL. You can also download, print, or export forms to your preferred cloud storage service.
Editing including suburb and 12-14 online
Follow the steps below to benefit from the PDF editor's expertise:
1
Sign into your account. It's time to start your free trial.
2
Upload a file. Select Add New on your Dashboard and upload a file from your device or import it from the cloud, online, or internal mail. Then click Edit.
3
Edit including suburb and 12-14. Rearrange and rotate pages, add new and changed texts, add new objects, and use other useful tools. When you're done, click Done. You can use the Documents tab to merge, split, lock, or unlock your files.
4
Save your file. Select it in the list of your records. Then, move the cursor to the right toolbar and choose one of the available exporting methods: save it in multiple formats, download it as a PDF, send it by email, or store it in the cloud.
With pdfFiller, it's always easy to deal with documents.
Uncompromising security for your PDF editing and eSignature needs
Your private information is safe with pdfFiller. We employ end-to-end encryption, secure cloud storage, and advanced access control to protect your documents and maintain regulatory compliance.
How to fill out including suburb and 12-14

How to fill out including suburb and 12-14
01
To fill out the form including suburb and 12-14, follow these steps:
02
Start by entering your personal details in the designated fields, such as name, address, and contact information.
03
Locate the section on the form requesting the suburb details. Fill in the name of the suburb where you reside.
04
Look for the section asking for the age range and locate the 12-14 option. Check the corresponding checkbox or select it from a dropdown list.
05
Continue completing the rest of the form with the required information and any additional details as requested.
06
Carefully review all the filled information to ensure accuracy and completeness.
07
Once you have reviewed the form, sign and date it, if necessary, and submit it as per the instructions provided.
Who needs including suburb and 12-14?
01
Individuals residing in a specific suburb and falling within the age group of 12-14 are the ones who need to fill out the form including suburb and 12-14.
02
This form may be required for various purposes such as school enrollment, community programs, or specific surveys and research related to that age group in the mentioned suburb.
Fill
form
: Try Risk Free
For pdfFiller’s FAQs
Below is a list of the most common customer questions. If you can’t find an answer to your question, please don’t hesitate to reach out to us.
How do I modify my including suburb and 12-14 in Gmail?
In your inbox, you may use pdfFiller's add-on for Gmail to generate, modify, fill out, and eSign your including suburb and 12-14 and any other papers you receive, all without leaving the program. Install pdfFiller for Gmail from the Google Workspace Marketplace by visiting this link. Take away the need for time-consuming procedures and handle your papers and eSignatures with ease.
How do I make edits in including suburb and 12-14 without leaving Chrome?
Install the pdfFiller Chrome Extension to modify, fill out, and eSign your including suburb and 12-14, which you can access right from a Google search page. Fillable documents without leaving Chrome on any internet-connected device.
Can I create an eSignature for the including suburb and 12-14 in Gmail?
Upload, type, or draw a signature in Gmail with the help of pdfFiller’s add-on. pdfFiller enables you to eSign your including suburb and 12-14 and other documents right in your inbox. Register your account in order to save signed documents and your personal signatures.
What is including suburb and 12-14?
Including suburb and 12-14 refers to specific forms or schedules related to tax filings that require detailed information regarding certain geographical areas and income types.
Who is required to file including suburb and 12-14?
Individuals or entities that meet specific income thresholds and have income or business activities reported within the suburbs specified must file including suburb and 12-14.
How to fill out including suburb and 12-14?
To fill out including suburb and 12-14, gather required documentation, accurately report income, and ensure all fields related to geographical locations are completed correctly based on IRS guidelines.
What is the purpose of including suburb and 12-14?
The purpose of including suburb and 12-14 is to collect detailed information regarding income and geographic distribution for better tax regulation and analysis.
What information must be reported on including suburb and 12-14?
Information that must be reported includes total income, deductions, the specific suburb, any applicable credits, and other relevant financial details.
Fill out your including suburb and 12-14 online with pdfFiller!
pdfFiller is an end-to-end solution for managing, creating, and editing documents and forms in the cloud. Save time and hassle by preparing your tax forms online.

Including Suburb And 12-14 is not the form you're looking for?Search for another form here.
Relevant keywords
Related Forms
If you believe that this page should be taken down, please follow our DMCA take down process
here
.
This form may include fields for payment information. Data entered in these fields is not covered by PCI DSS compliance.