
Get the free Fire Protection Systems Permit Application and Intake Checklist
Show details
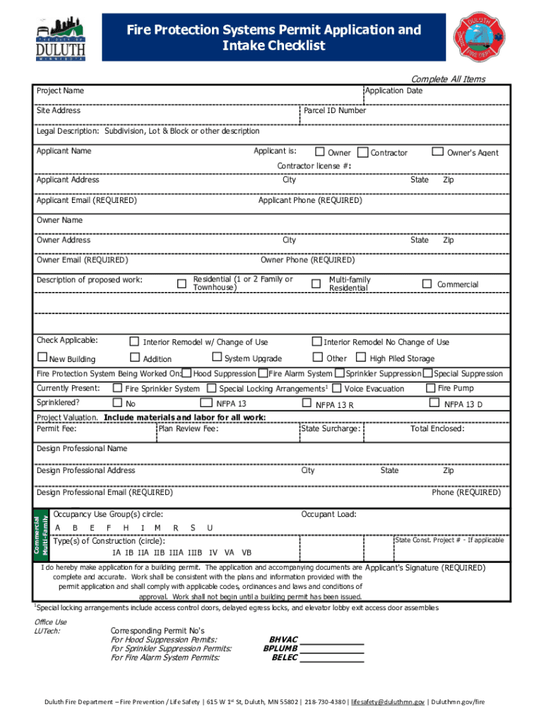
Fire Protection Systems Permit Application and Intake Checklist Complete All Items Project Reapplication Date Site AddressParcel ID Numberless Description: Subdivision, Lot & Block or other description
We are not affiliated with any brand or entity on this form
Get, Create, Make and Sign fire protection systems permit

Edit your fire protection systems permit form online
Type text, complete fillable fields, insert images, highlight or blackout data for discretion, add comments, and more.

Add your legally-binding signature
Draw or type your signature, upload a signature image, or capture it with your digital camera.

Share your form instantly
Email, fax, or share your fire protection systems permit form via URL. You can also download, print, or export forms to your preferred cloud storage service.
Editing fire protection systems permit online
Follow the guidelines below to benefit from the PDF editor's expertise:
1
Log into your account. In case you're new, it's time to start your free trial.
2
Simply add a document. Select Add New from your Dashboard and import a file into the system by uploading it from your device or importing it via the cloud, online, or internal mail. Then click Begin editing.
3
Edit fire protection systems permit. Rearrange and rotate pages, add new and changed texts, add new objects, and use other useful tools. When you're done, click Done. You can use the Documents tab to merge, split, lock, or unlock your files.
4
Save your file. Select it from your list of records. Then, move your cursor to the right toolbar and choose one of the exporting options. You can save it in multiple formats, download it as a PDF, send it by email, or store it in the cloud, among other things.
pdfFiller makes dealing with documents a breeze. Create an account to find out!
Uncompromising security for your PDF editing and eSignature needs
Your private information is safe with pdfFiller. We employ end-to-end encryption, secure cloud storage, and advanced access control to protect your documents and maintain regulatory compliance.
How to fill out fire protection systems permit

How to fill out fire protection systems permit
01
Gather all required documents: This typically includes building plans, fire protection system design documents, and any relevant permits or approvals from local authorities.
02
Review the building plans: Carefully examine the layout and specifications of the fire protection system, ensuring that it complies with all applicable codes and standards.
03
Prepare the necessary forms: Fill out the fire protection systems permit application form, providing accurate and complete information about the project and the system being installed or modified.
04
Submit the application: Submit the completed application form along with all required documents to the relevant authority or department responsible for issuing fire protection systems permits.
05
Pay the fees: Pay any applicable fees or charges related to the permit application. The amount and payment method may vary depending on local regulations.
06
Schedule inspections: Work with the local fire department or building inspector to schedule inspections at different stages of the installation or modification process.
07
Complete the installation or modification: Ensure that the fire protection system is installed or modified according to the approved plans and specifications.
08
Obtain the final approval: Once all inspections have been successfully completed and any necessary corrections or adjustments have been made, obtain the final approval for the fire protection system.
09
Maintain records: Keep copies of all permit-related documents, inspection reports, and approvals for future reference and compliance purposes.
Who needs fire protection systems permit?
01
Fire protection systems permits are typically required for individuals or entities involved in the installation, modification, or maintenance of fire protection systems in buildings or facilities. This includes contractors, engineers, architects, and building owners or operators.
Fill
form
: Try Risk Free
For pdfFiller’s FAQs
Below is a list of the most common customer questions. If you can’t find an answer to your question, please don’t hesitate to reach out to us.
How do I execute fire protection systems permit online?
pdfFiller makes it easy to finish and sign fire protection systems permit online. It lets you make changes to original PDF content, highlight, black out, erase, and write text anywhere on a page, legally eSign your form, and more, all from one place. Create a free account and use the web to keep track of professional documents.
Can I create an eSignature for the fire protection systems permit in Gmail?
It's easy to make your eSignature with pdfFiller, and then you can sign your fire protection systems permit right from your Gmail inbox with the help of pdfFiller's add-on for Gmail. This is a very important point: You must sign up for an account so that you can save your signatures and signed documents.
How do I fill out fire protection systems permit on an Android device?
Use the pdfFiller Android app to finish your fire protection systems permit and other documents on your Android phone. The app has all the features you need to manage your documents, like editing content, eSigning, annotating, sharing files, and more. At any time, as long as there is an internet connection.
What is fire protection systems permit?
A fire protection systems permit is a legal document required for the installation or modification of fire protection systems, ensuring compliance with local fire safety codes and regulations.
Who is required to file fire protection systems permit?
Typically, property owners, developers, or contractors who plan to install or modify fire protection systems are required to file for a fire protection systems permit.
How to fill out fire protection systems permit?
To fill out a fire protection systems permit, you must provide details such as the project location, type of fire protection system being installed, contractor information, and any relevant plans or specifications.
What is the purpose of fire protection systems permit?
The purpose of a fire protection systems permit is to ensure that fire protection systems are designed and installed according to safety standards, thereby protecting life and property from fire hazards.
What information must be reported on fire protection systems permit?
Information required on a fire protection systems permit typically includes project details, system type, installation plans, property owner and contractor's contact information, and compliance with safety codes.
Fill out your fire protection systems permit online with pdfFiller!
pdfFiller is an end-to-end solution for managing, creating, and editing documents and forms in the cloud. Save time and hassle by preparing your tax forms online.

Fire Protection Systems Permit is not the form you're looking for?Search for another form here.
Relevant keywords
Related Forms
If you believe that this page should be taken down, please follow our DMCA take down process
here
.
This form may include fields for payment information. Data entered in these fields is not covered by PCI DSS compliance.