Get the free Including suburb or 8 Trigg Street, Geelong West
Show details
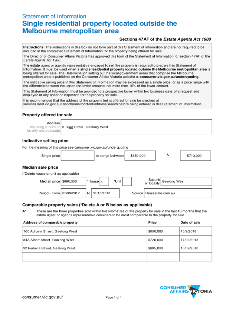
Statement of InformationSingle residential property located outside the
Melbourne metropolitan area
Sections 47AF of the Estate Agents Act 1980
Instructions: The instructions in this box do not form
We are not affiliated with any brand or entity on this form
Get, Create, Make and Sign including suburb or 8
Edit your including suburb or 8 form online
Type text, complete fillable fields, insert images, highlight or blackout data for discretion, add comments, and more.
Add your legally-binding signature
Draw or type your signature, upload a signature image, or capture it with your digital camera.
Share your form instantly
Email, fax, or share your including suburb or 8 form via URL. You can also download, print, or export forms to your preferred cloud storage service.
How to edit including suburb or 8 online
Follow the steps below to use a professional PDF editor:
1
Set up an account. If you are a new user, click Start Free Trial and establish a profile.
2
Simply add a document. Select Add New from your Dashboard and import a file into the system by uploading it from your device or importing it via the cloud, online, or internal mail. Then click Begin editing.
3
Edit including suburb or 8. Add and change text, add new objects, move pages, add watermarks and page numbers, and more. Then click Done when you're done editing and go to the Documents tab to merge or split the file. If you want to lock or unlock the file, click the lock or unlock button.
4
Get your file. Select the name of your file in the docs list and choose your preferred exporting method. You can download it as a PDF, save it in another format, send it by email, or transfer it to the cloud.
pdfFiller makes working with documents easier than you could ever imagine. Register for an account and see for yourself!
Uncompromising security for your PDF editing and eSignature needs
Your private information is safe with pdfFiller. We employ end-to-end encryption, secure cloud storage, and advanced access control to protect your documents and maintain regulatory compliance.
How to fill out including suburb or 8
How to fill out including suburb or 8
01
To fill out including suburb or 8, follow these steps:
02
Write the full address, including the suburb or 8, on the designated address line of the form.
03
Ensure that you provide accurate and complete information for the suburb or 8.
04
Make sure to double-check the spelling and formatting of the suburb or 8 entry.
05
If you are unsure about the correct suburb or 8, consult a reliable source such as an official address database or the local authorities.
06
Once you have entered the suburb or 8 correctly, proceed to fill out the rest of the form as required.
07
Submit the form according to the specified instructions or submission method.
Who needs including suburb or 8?
01
Anyone who is required to provide their address and specifically needs to include the suburb or 8 should fill out including suburb or 8.
02
This can include individuals applying for official documents, filling out legal forms, or providing their address for any other purpose that requires the inclusion of the suburb or 8.
03
Additionally, organizations or businesses that need to collect accurate address information, including the suburb or 8, from their customers or clients may also require this information.
Fill
form
: Try Risk Free
For pdfFiller’s FAQs
Below is a list of the most common customer questions. If you can’t find an answer to your question, please don’t hesitate to reach out to us.
Can I sign the including suburb or 8 electronically in Chrome?
Yes. By adding the solution to your Chrome browser, you may use pdfFiller to eSign documents while also enjoying all of the PDF editor's capabilities in one spot. Create a legally enforceable eSignature by sketching, typing, or uploading a photo of your handwritten signature using the extension. Whatever option you select, you'll be able to eSign your including suburb or 8 in seconds.
How do I fill out including suburb or 8 using my mobile device?
Use the pdfFiller mobile app to fill out and sign including suburb or 8 on your phone or tablet. Visit our website to learn more about our mobile apps, how they work, and how to get started.
How do I fill out including suburb or 8 on an Android device?
Use the pdfFiller mobile app and complete your including suburb or 8 and other documents on your Android device. The app provides you with all essential document management features, such as editing content, eSigning, annotating, sharing files, etc. You will have access to your documents at any time, as long as there is an internet connection.
What is including suburb or 8?
Including suburb or 8 refers to specific forms or documents used for reporting certain financial information, typically related to tax or compliance requirements.
Who is required to file including suburb or 8?
Individuals and entities that meet specific criteria set by tax authorities are required to file including suburb or 8. This can include businesses, non-profits, and certain individuals with relevant income or deductions.
How to fill out including suburb or 8?
To fill out including suburb or 8, you must gather the necessary financial documents, follow the specific instructions provided for the form, and accurately complete all sections with the required information.
What is the purpose of including suburb or 8?
The purpose of including suburb or 8 is to ensure that tax authorities receive accurate and complete financial information, which helps in assessing tax liabilities and ensuring compliance with tax laws.
What information must be reported on including suburb or 8?
Typically, including suburb or 8 requires reporting information such as income, deductions, credits, and other relevant financial data as specified by the form's instructions.
Fill out your including suburb or 8 online with pdfFiller!
pdfFiller is an end-to-end solution for managing, creating, and editing documents and forms in the cloud. Save time and hassle by preparing your tax forms online.
Including Suburb Or 8 is not the form you're looking for?Search for another form here.
Relevant keywords
Related Forms
If you believe that this page should be taken down, please follow our DMCA take down process
here
.
This form may include fields for payment information. Data entered in these fields is not covered by PCI DSS compliance.