
Get the free Including suburb or 8 Rigo Street, Belmont
Show details
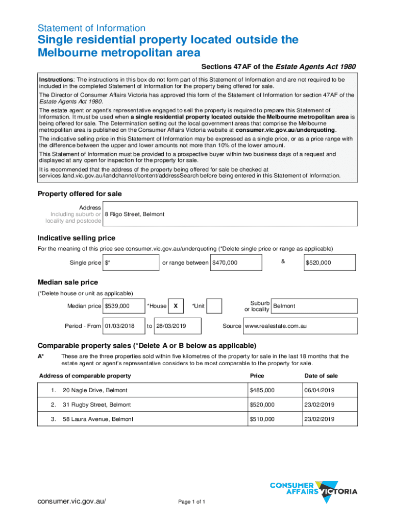
Statement of InformationSingle residential property located outside the
Melbourne metropolitan area
Sections 47AF of the Estate Agents Act 1980
Instructions: The instructions in this box do not form
We are not affiliated with any brand or entity on this form
Get, Create, Make and Sign including suburb or 8

Edit your including suburb or 8 form online
Type text, complete fillable fields, insert images, highlight or blackout data for discretion, add comments, and more.

Add your legally-binding signature
Draw or type your signature, upload a signature image, or capture it with your digital camera.

Share your form instantly
Email, fax, or share your including suburb or 8 form via URL. You can also download, print, or export forms to your preferred cloud storage service.
How to edit including suburb or 8 online
Here are the steps you need to follow to get started with our professional PDF editor:
1
Set up an account. If you are a new user, click Start Free Trial and establish a profile.
2
Upload a document. Select Add New on your Dashboard and transfer a file into the system in one of the following ways: by uploading it from your device or importing from the cloud, web, or internal mail. Then, click Start editing.
3
Edit including suburb or 8. Rearrange and rotate pages, add new and changed texts, add new objects, and use other useful tools. When you're done, click Done. You can use the Documents tab to merge, split, lock, or unlock your files.
4
Save your file. Select it from your list of records. Then, move your cursor to the right toolbar and choose one of the exporting options. You can save it in multiple formats, download it as a PDF, send it by email, or store it in the cloud, among other things.
With pdfFiller, it's always easy to deal with documents.
Uncompromising security for your PDF editing and eSignature needs
Your private information is safe with pdfFiller. We employ end-to-end encryption, secure cloud storage, and advanced access control to protect your documents and maintain regulatory compliance.
How to fill out including suburb or 8

How to fill out including suburb or 8
01
To fill out including suburb or 8, follow these steps:
02
Start by writing the street number and name.
03
Next, write the suburb name.
04
Then, write the postal code or ZIP code.
05
Finally, include the country name if necessary.
Who needs including suburb or 8?
01
Including suburb or 8 is important for anyone who needs to provide an accurate and detailed address.
02
This is especially useful for postal services, delivery companies, and individuals sending mail or packages.
03
Including the suburb or 8 helps ensure that the mail or package reaches the intended destination without any confusion or delays.
Fill
form
: Try Risk Free
For pdfFiller’s FAQs
Below is a list of the most common customer questions. If you can’t find an answer to your question, please don’t hesitate to reach out to us.
How do I edit including suburb or 8 online?
With pdfFiller, it's easy to make changes. Open your including suburb or 8 in the editor, which is very easy to use and understand. When you go there, you'll be able to black out and change text, write and erase, add images, draw lines, arrows, and more. You can also add sticky notes and text boxes.
Can I sign the including suburb or 8 electronically in Chrome?
As a PDF editor and form builder, pdfFiller has a lot of features. It also has a powerful e-signature tool that you can add to your Chrome browser. With our extension, you can type, draw, or take a picture of your signature with your webcam to make your legally-binding eSignature. Choose how you want to sign your including suburb or 8 and you'll be done in minutes.
How can I edit including suburb or 8 on a smartphone?
You may do so effortlessly with pdfFiller's iOS and Android apps, which are available in the Apple Store and Google Play Store, respectively. You may also obtain the program from our website: https://edit-pdf-ios-android.pdffiller.com/. Open the application, sign in, and begin editing including suburb or 8 right away.
What is including suburb or 8?
Including suburb or 8 refers to a specific tax form or regulatory document used in various jurisdictions for reporting income, expenses, or other financial information.
Who is required to file including suburb or 8?
Individuals or businesses that meet certain income thresholds or regulatory requirements are required to file including suburb or 8.
How to fill out including suburb or 8?
To fill out including suburb or 8, gather relevant financial information, complete the required sections of the form accurately, and ensure all figures are correctly calculated.
What is the purpose of including suburb or 8?
The purpose of including suburb or 8 is to provide tax authorities with necessary financial information for accurate tax assessment and compliance.
What information must be reported on including suburb or 8?
Information that must be reported includes income, deductions, credits, and any other relevant financial data as required by the specific form.
Fill out your including suburb or 8 online with pdfFiller!
pdfFiller is an end-to-end solution for managing, creating, and editing documents and forms in the cloud. Save time and hassle by preparing your tax forms online.

Including Suburb Or 8 is not the form you're looking for?Search for another form here.
Relevant keywords
Related Forms
If you believe that this page should be taken down, please follow our DMCA take down process
here
.
This form may include fields for payment information. Data entered in these fields is not covered by PCI DSS compliance.