
Get the free Including suburb and 29a Fletcher Street Moorabbin 3189
Show details
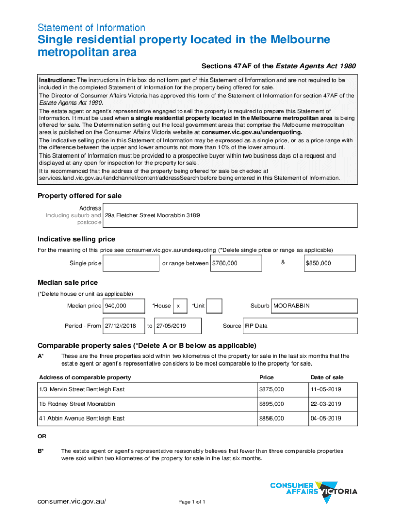
Statement of InformationSingle residential property located in the Melbourne
metropolitan area
Sections 47AF of the Estate Agents Act 1980
Instructions: The instructions in this box do not form part
We are not affiliated with any brand or entity on this form
Get, Create, Make and Sign including suburb and 29a

Edit your including suburb and 29a form online
Type text, complete fillable fields, insert images, highlight or blackout data for discretion, add comments, and more.

Add your legally-binding signature
Draw or type your signature, upload a signature image, or capture it with your digital camera.

Share your form instantly
Email, fax, or share your including suburb and 29a form via URL. You can also download, print, or export forms to your preferred cloud storage service.
How to edit including suburb and 29a online
To use our professional PDF editor, follow these steps:
1
Sign into your account. It's time to start your free trial.
2
Upload a file. Select Add New on your Dashboard and upload a file from your device or import it from the cloud, online, or internal mail. Then click Edit.
3
Edit including suburb and 29a. Rearrange and rotate pages, add and edit text, and use additional tools. To save changes and return to your Dashboard, click Done. The Documents tab allows you to merge, divide, lock, or unlock files.
4
Save your file. Select it from your list of records. Then, move your cursor to the right toolbar and choose one of the exporting options. You can save it in multiple formats, download it as a PDF, send it by email, or store it in the cloud, among other things.
It's easier to work with documents with pdfFiller than you can have believed. You may try it out for yourself by signing up for an account.
Uncompromising security for your PDF editing and eSignature needs
Your private information is safe with pdfFiller. We employ end-to-end encryption, secure cloud storage, and advanced access control to protect your documents and maintain regulatory compliance.
How to fill out including suburb and 29a

How to fill out including suburb and 29a
01
To fill out including suburb and 29a, follow these steps:
02
Start by entering your personal details such as your name, address, and contact information.
03
Next, provide the name of the suburb you live in. This is important for accurate record keeping.
04
In section 29a, you will need to provide specific details related to the purpose of the form. Fill out this section carefully and accurately.
05
Once you have filled out all the required information, review the form to ensure everything is correct and complete.
06
Finally, sign and date the form before submitting it.
07
By following these steps, you can successfully fill out including suburb and 29a.
Who needs including suburb and 29a?
01
Including suburb and 29a is required for individuals who:
02
- Are completing a government form that specifically requests this information.
03
- Live in a location that requires the inclusion of the suburb for proper identification.
04
- Want to provide detailed and accurate information for record keeping purposes.
05
Including this information ensures that the form is complete and meets the required criteria.
Fill
form
: Try Risk Free
For pdfFiller’s FAQs
Below is a list of the most common customer questions. If you can’t find an answer to your question, please don’t hesitate to reach out to us.
How can I manage my including suburb and 29a directly from Gmail?
It's easy to use pdfFiller's Gmail add-on to make and edit your including suburb and 29a and any other documents you get right in your email. You can also eSign them. Take a look at the Google Workspace Marketplace and get pdfFiller for Gmail. Get rid of the time-consuming steps and easily manage your documents and eSignatures with the help of an app.
How do I edit including suburb and 29a in Chrome?
Adding the pdfFiller Google Chrome Extension to your web browser will allow you to start editing including suburb and 29a and other documents right away when you search for them on a Google page. People who use Chrome can use the service to make changes to their files while they are on the Chrome browser. pdfFiller lets you make fillable documents and make changes to existing PDFs from any internet-connected device.
Can I create an electronic signature for signing my including suburb and 29a in Gmail?
It's easy to make your eSignature with pdfFiller, and then you can sign your including suburb and 29a right from your Gmail inbox with the help of pdfFiller's add-on for Gmail. This is a very important point: You must sign up for an account so that you can save your signatures and signed documents.
What is including suburb and 29a?
Including suburb and 29a refers to specific sections or requirements in a form or documentation where individuals or businesses must provide their suburb information and other relevant details.
Who is required to file including suburb and 29a?
Individuals and businesses that meet specific criteria set by the governing body or regulation are required to file including suburb and 29a.
How to fill out including suburb and 29a?
To fill out including suburb and 29a, one must accurately provide the required suburb information and any additional details as directed in the instructions accompanying the form.
What is the purpose of including suburb and 29a?
The purpose of including suburb and 29a is to collect necessary geographic and demographic information for administrative, statistical, or regulatory reasons.
What information must be reported on including suburb and 29a?
Information such as the name of the suburb, relevant demographic details, and other specific data points as outlined in the filing instructions must be reported.
Fill out your including suburb and 29a online with pdfFiller!
pdfFiller is an end-to-end solution for managing, creating, and editing documents and forms in the cloud. Save time and hassle by preparing your tax forms online.

Including Suburb And 29a is not the form you're looking for?Search for another form here.
Relevant keywords
Related Forms
If you believe that this page should be taken down, please follow our DMCA take down process
here
.
This form may include fields for payment information. Data entered in these fields is not covered by PCI DSS compliance.