
Get the free historic name First Evangelical Church
Show details
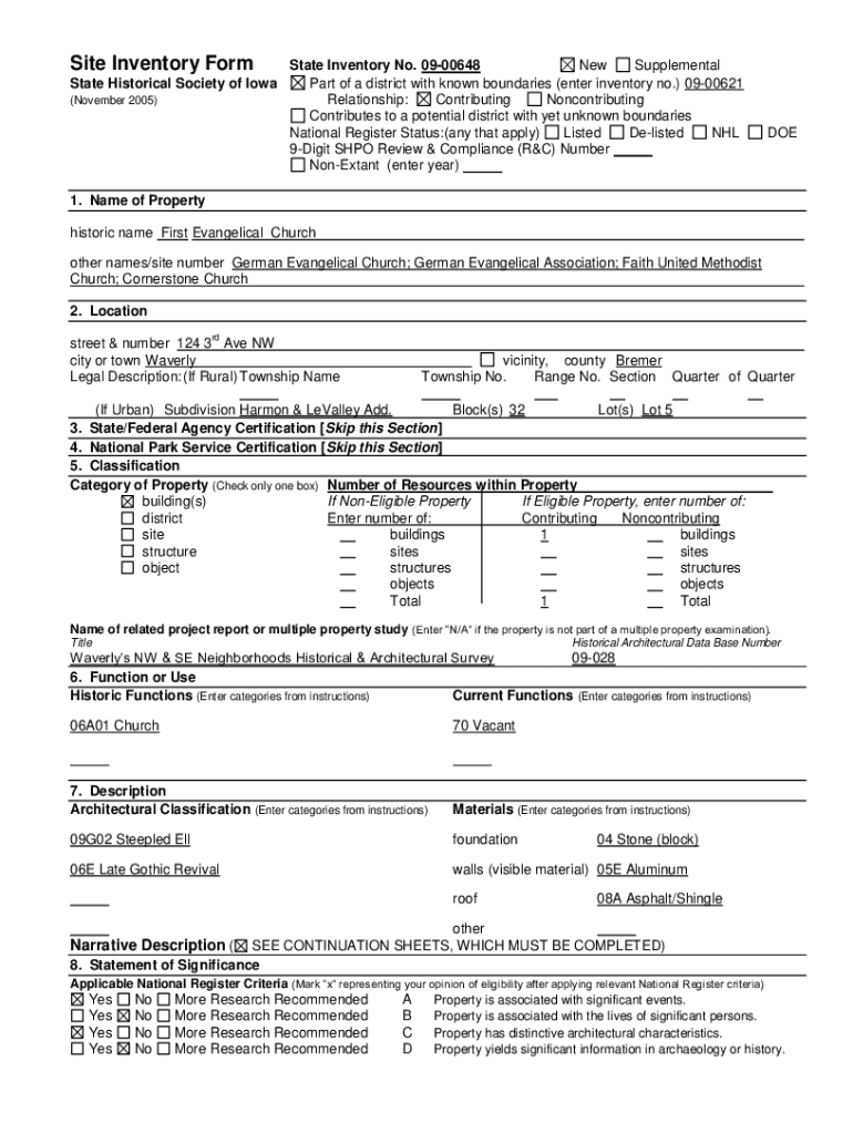
Site Inventory Form State Historical Society of Iowa (November 2005)State Inventory No. 0900648 New Supplemental Part of a district with known boundaries (enter inventory no.) 0900621 Relationship:
We are not affiliated with any brand or entity on this form
Get, Create, Make and Sign historic name first evangelical

Edit your historic name first evangelical form online
Type text, complete fillable fields, insert images, highlight or blackout data for discretion, add comments, and more.

Add your legally-binding signature
Draw or type your signature, upload a signature image, or capture it with your digital camera.

Share your form instantly
Email, fax, or share your historic name first evangelical form via URL. You can also download, print, or export forms to your preferred cloud storage service.
Editing historic name first evangelical online
In order to make advantage of the professional PDF editor, follow these steps below:
1
Create an account. Begin by choosing Start Free Trial and, if you are a new user, establish a profile.
2
Prepare a file. Use the Add New button. Then upload your file to the system from your device, importing it from internal mail, the cloud, or by adding its URL.
3
Edit historic name first evangelical. Rearrange and rotate pages, insert new and alter existing texts, add new objects, and take advantage of other helpful tools. Click Done to apply changes and return to your Dashboard. Go to the Documents tab to access merging, splitting, locking, or unlocking functions.
4
Get your file. When you find your file in the docs list, click on its name and choose how you want to save it. To get the PDF, you can save it, send an email with it, or move it to the cloud.
The use of pdfFiller makes dealing with documents straightforward.
Uncompromising security for your PDF editing and eSignature needs
Your private information is safe with pdfFiller. We employ end-to-end encryption, secure cloud storage, and advanced access control to protect your documents and maintain regulatory compliance.
How to fill out historic name first evangelical

How to fill out historic name first evangelical
01
To fill out the historic name first evangelical, follow these steps:
02
Start by gathering all the necessary information about the historic name first evangelical. This may include the full name, address, contact information, and any other relevant details.
03
Open the official form or document provided by the relevant authority for filling out the historic name first evangelical.
04
Begin by inputting the required information in the designated fields. Ensure accuracy and double-check all the details before proceeding.
05
If there are any specific instructions provided, make sure to follow them accordingly.
06
Review the completed form to ensure all the information is correctly entered.
07
If required, attach any supporting documents or proofs as specified.
08
Sign and date the form where indicated.
09
Submit the filled-out historic name first evangelical form to the appropriate authority as instructed. This can be done either in person or via mail, depending on the guidelines provided.
10
Keep a copy of the submitted form and any supporting documents for your records.
Who needs historic name first evangelical?
01
Anyone who is associated with or responsible for recording historic names of religious institutions, specifically the first evangelical one, may need the historic name first evangelical. This can include historians, archivists, researchers, or individuals working in the field of preserving historical records.
Fill
form
: Try Risk Free
For pdfFiller’s FAQs
Below is a list of the most common customer questions. If you can’t find an answer to your question, please don’t hesitate to reach out to us.
How do I make changes in historic name first evangelical?
The editing procedure is simple with pdfFiller. Open your historic name first evangelical in the editor. You may also add photos, draw arrows and lines, insert sticky notes and text boxes, and more.
How do I edit historic name first evangelical in Chrome?
Download and install the pdfFiller Google Chrome Extension to your browser to edit, fill out, and eSign your historic name first evangelical, which you can open in the editor with a single click from a Google search page. Fillable documents may be executed from any internet-connected device without leaving Chrome.
How do I fill out historic name first evangelical using my mobile device?
You can easily create and fill out legal forms with the help of the pdfFiller mobile app. Complete and sign historic name first evangelical and other documents on your mobile device using the application. Visit pdfFiller’s webpage to learn more about the functionalities of the PDF editor.
What is historic name first evangelical?
The historic name first evangelical refers to the original name used by a religious organization or community when it was first established.
Who is required to file historic name first evangelical?
Organizations or entities that have undergone a change in name or are registering as an evangelical organization for the first time are required to file the historic name first evangelical.
How to fill out historic name first evangelical?
To fill out the historic name first evangelical, you need to provide the organization's current name, the historic name, the date of establishment, and any relevant documentation supporting the name change.
What is the purpose of historic name first evangelical?
The purpose of the historic name first evangelical is to officially document the historical name of the organization and ensure transparency regarding its identity and continuity.
What information must be reported on historic name first evangelical?
Information that must be reported includes the current name, historic name, the reason for the name change, date of establishment, and any legal documentation that validates the name change.
Fill out your historic name first evangelical online with pdfFiller!
pdfFiller is an end-to-end solution for managing, creating, and editing documents and forms in the cloud. Save time and hassle by preparing your tax forms online.

Historic Name First Evangelical is not the form you're looking for?Search for another form here.
Relevant keywords
Related Forms
If you believe that this page should be taken down, please follow our DMCA take down process
here
.
This form may include fields for payment information. Data entered in these fields is not covered by PCI DSS compliance.