
Get the free historic name Knott, John and Bessie, House
Show details
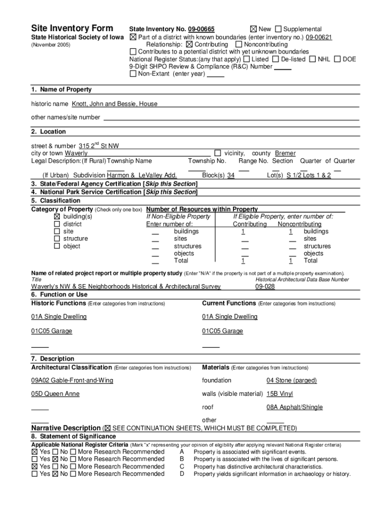
Site Inventory Form State Historical Society of Iowa (November 2005)State Inventory No. 0900665 New Supplemental Part of a district with known boundaries (enter inventory no.) 0900621 Relationship:
We are not affiliated with any brand or entity on this form
Get, Create, Make and Sign historic name knott john

Edit your historic name knott john form online
Type text, complete fillable fields, insert images, highlight or blackout data for discretion, add comments, and more.

Add your legally-binding signature
Draw or type your signature, upload a signature image, or capture it with your digital camera.

Share your form instantly
Email, fax, or share your historic name knott john form via URL. You can also download, print, or export forms to your preferred cloud storage service.
Editing historic name knott john online
Use the instructions below to start using our professional PDF editor:
1
Register the account. Begin by clicking Start Free Trial and create a profile if you are a new user.
2
Simply add a document. Select Add New from your Dashboard and import a file into the system by uploading it from your device or importing it via the cloud, online, or internal mail. Then click Begin editing.
3
Edit historic name knott john. Rearrange and rotate pages, add and edit text, and use additional tools. To save changes and return to your Dashboard, click Done. The Documents tab allows you to merge, divide, lock, or unlock files.
4
Save your file. Choose it from the list of records. Then, shift the pointer to the right toolbar and select one of the several exporting methods: save it in multiple formats, download it as a PDF, email it, or save it to the cloud.
It's easier to work with documents with pdfFiller than you can have believed. You can sign up for an account to see for yourself.
Uncompromising security for your PDF editing and eSignature needs
Your private information is safe with pdfFiller. We employ end-to-end encryption, secure cloud storage, and advanced access control to protect your documents and maintain regulatory compliance.
How to fill out historic name knott john

How to fill out historic name knott john
01
To fill out the historic name Knott John, follow these steps:
02
Start by gathering all the necessary documents and information related to Knott John's historic name.
03
Begin by writing the full name 'Knott John' in the appropriate section or form.
04
Make sure to provide accurate and updated personal information, such as birthdate, address, and contact details.
05
If there is a specific reason for filling out the historic name, include it in the provided space or inform the relevant authority.
06
Double-check all the entered information for accuracy and completeness.
07
After reviewing, sign and date the form or document as required.
08
Submit the filled out historic name form or document to the designated authority or institution.
09
Wait for the processing and confirmation of the changes made to the historic name.
10
Keep a copy of the filled out form or document for your records.
Who needs historic name knott john?
01
Anyone who wishes to update or document the historic name 'Knott John' needs to fill out this form.
02
This may include individuals conducting genealogical research, historians, legal professionals, or individuals with a personal or professional interest in the history of Knott John.
Fill
form
: Try Risk Free
For pdfFiller’s FAQs
Below is a list of the most common customer questions. If you can’t find an answer to your question, please don’t hesitate to reach out to us.
How do I modify my historic name knott john in Gmail?
It's easy to use pdfFiller's Gmail add-on to make and edit your historic name knott john and any other documents you get right in your email. You can also eSign them. Take a look at the Google Workspace Marketplace and get pdfFiller for Gmail. Get rid of the time-consuming steps and easily manage your documents and eSignatures with the help of an app.
How do I fill out the historic name knott john form on my smartphone?
Use the pdfFiller mobile app to complete and sign historic name knott john on your mobile device. Visit our web page (https://edit-pdf-ios-android.pdffiller.com/) to learn more about our mobile applications, the capabilities you’ll have access to, and the steps to take to get up and running.
How do I complete historic name knott john on an Android device?
Use the pdfFiller mobile app to complete your historic name knott john on an Android device. The application makes it possible to perform all needed document management manipulations, like adding, editing, and removing text, signing, annotating, and more. All you need is your smartphone and an internet connection.
What is the historic name knott john?
The historic name 'Knott John' refers to a historical figure or name associated with certain events or locations. Its significance may vary based on the context in which it is used.
Who is required to file historic name knott john?
Individuals or entities that have a historical association or business related to the name 'Knott John' may be required to file relevant documentation.
How to fill out historic name knott john?
To fill out the historic name 'Knott John', one needs to provide the required personal or business information, historical context, and ensure all sections are completed accurately.
What is the purpose of historic name knott john?
The purpose of the historic name 'Knott John' is to preserve historical significance, facilitate record-keeping, and maintain a connection to the past.
What information must be reported on historic name knott john?
Information required may include the name of the individual or organization, relevant historical dates, context of the name, and any applicable documents or evidence supporting the historical claim.
Fill out your historic name knott john online with pdfFiller!
pdfFiller is an end-to-end solution for managing, creating, and editing documents and forms in the cloud. Save time and hassle by preparing your tax forms online.

Historic Name Knott John is not the form you're looking for?Search for another form here.
Relevant keywords
Related Forms
If you believe that this page should be taken down, please follow our DMCA take down process
here
.
This form may include fields for payment information. Data entered in these fields is not covered by PCI DSS compliance.