Get the free Iowa Site Inventory Form - Site Inventory Form State Inventory ...
Show details
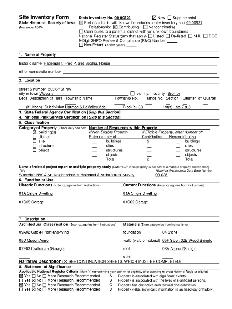
Site Inventory Form State Historical Society of Iowa (November 2005)State Inventory No. 0900820 New Supplemental Part of a district with known boundaries (enter inventory no.) 0900621 Relationship:
We are not affiliated with any brand or entity on this form
Get, Create, Make and Sign iowa site inventory form
Edit your iowa site inventory form form online
Type text, complete fillable fields, insert images, highlight or blackout data for discretion, add comments, and more.
Add your legally-binding signature
Draw or type your signature, upload a signature image, or capture it with your digital camera.
Share your form instantly
Email, fax, or share your iowa site inventory form form via URL. You can also download, print, or export forms to your preferred cloud storage service.
How to edit iowa site inventory form online
Use the instructions below to start using our professional PDF editor:
1
Register the account. Begin by clicking Start Free Trial and create a profile if you are a new user.
2
Upload a document. Select Add New on your Dashboard and transfer a file into the system in one of the following ways: by uploading it from your device or importing from the cloud, web, or internal mail. Then, click Start editing.
3
Edit iowa site inventory form. Rearrange and rotate pages, insert new and alter existing texts, add new objects, and take advantage of other helpful tools. Click Done to apply changes and return to your Dashboard. Go to the Documents tab to access merging, splitting, locking, or unlocking functions.
4
Save your file. Select it in the list of your records. Then, move the cursor to the right toolbar and choose one of the available exporting methods: save it in multiple formats, download it as a PDF, send it by email, or store it in the cloud.
It's easier to work with documents with pdfFiller than you could have believed. You can sign up for an account to see for yourself.
Uncompromising security for your PDF editing and eSignature needs
Your private information is safe with pdfFiller. We employ end-to-end encryption, secure cloud storage, and advanced access control to protect your documents and maintain regulatory compliance.
How to fill out iowa site inventory form
How to fill out iowa site inventory form
01
Access the Iowa site inventory form online.
02
Read the instructions provided on the form to understand the required information.
03
Begin by entering the site identification details such as site name, address, and contact information.
04
Provide a thorough description of the site, including any historical or environmental significance.
05
Complete the sections regarding existing structures, utilities, and site features.
06
Specify any known site improvements or modifications made in the past.
07
Document any potential hazards or environmental concerns associated with the site.
08
Fill out the owner information section, including contact details.
09
Submit any supporting documents or photographs that can assist in the inventory process.
10
Double-check all the information provided before submitting the form.
11
Save a copy of the completed form for your records.
Who needs iowa site inventory form?
01
Anyone who owns or manages a site in Iowa that may have historical or environmental significance needs to fill out the Iowa site inventory form.
Fill
form
: Try Risk Free
For pdfFiller’s FAQs
Below is a list of the most common customer questions. If you can’t find an answer to your question, please don’t hesitate to reach out to us.
How do I modify my iowa site inventory form in Gmail?
You can use pdfFiller’s add-on for Gmail in order to modify, fill out, and eSign your iowa site inventory form along with other documents right in your inbox. Find pdfFiller for Gmail in Google Workspace Marketplace. Use time you spend on handling your documents and eSignatures for more important things.
How can I get iowa site inventory form?
The pdfFiller premium subscription gives you access to a large library of fillable forms (over 25 million fillable templates) that you can download, fill out, print, and sign. In the library, you'll have no problem discovering state-specific iowa site inventory form and other forms. Find the template you want and tweak it with powerful editing tools.
Can I create an electronic signature for signing my iowa site inventory form in Gmail?
Use pdfFiller's Gmail add-on to upload, type, or draw a signature. Your iowa site inventory form and other papers may be signed using pdfFiller. Register for a free account to preserve signed papers and signatures.
What is iowa site inventory form?
The Iowa Site Inventory Form is a document used to collect and report information about significant historic properties and districts in Iowa.
Who is required to file iowa site inventory form?
Individuals, organizations, or entities that own or manage properties that are considered historically significant in Iowa are required to file the Iowa Site Inventory Form.
How to fill out iowa site inventory form?
To fill out the Iowa Site Inventory Form, you should provide detailed information about the property's history, architecture, significance, and any alterations. It often requires photographs, maps, and a narrative description.
What is the purpose of iowa site inventory form?
The purpose of the Iowa Site Inventory Form is to document and preserve Iowa's cultural heritage, allowing for better management and protection of historical resources.
What information must be reported on iowa site inventory form?
The form requires information such as the property's name, location, historical significance, architectural details, and any alterations or additions made to the property.
Fill out your iowa site inventory form online with pdfFiller!
pdfFiller is an end-to-end solution for managing, creating, and editing documents and forms in the cloud. Save time and hassle by preparing your tax forms online.
Iowa Site Inventory Form is not the form you're looking for?Search for another form here.
Relevant keywords
If you believe that this page should be taken down, please follow our DMCA take down process
here
.
This form may include fields for payment information. Data entered in these fields is not covered by PCI DSS compliance.