
Get the free historic name Cook, Julia J
Show details
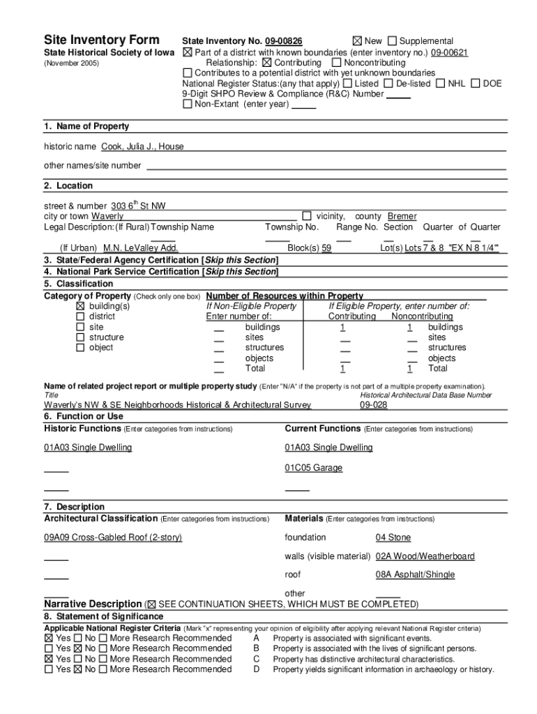
Site Inventory Form State Historical Society of Iowa (November 2005)State Inventory No. 0900826 New Supplemental Part of a district with known boundaries (enter inventory no.) 0900621 Relationship:
We are not affiliated with any brand or entity on this form
Get, Create, Make and Sign historic name cook julia

Edit your historic name cook julia form online
Type text, complete fillable fields, insert images, highlight or blackout data for discretion, add comments, and more.

Add your legally-binding signature
Draw or type your signature, upload a signature image, or capture it with your digital camera.

Share your form instantly
Email, fax, or share your historic name cook julia form via URL. You can also download, print, or export forms to your preferred cloud storage service.
How to edit historic name cook julia online
Follow the guidelines below to use a professional PDF editor:
1
Set up an account. If you are a new user, click Start Free Trial and establish a profile.
2
Upload a document. Select Add New on your Dashboard and transfer a file into the system in one of the following ways: by uploading it from your device or importing from the cloud, web, or internal mail. Then, click Start editing.
3
Edit historic name cook julia. Rearrange and rotate pages, insert new and alter existing texts, add new objects, and take advantage of other helpful tools. Click Done to apply changes and return to your Dashboard. Go to the Documents tab to access merging, splitting, locking, or unlocking functions.
4
Save your file. Select it in the list of your records. Then, move the cursor to the right toolbar and choose one of the available exporting methods: save it in multiple formats, download it as a PDF, send it by email, or store it in the cloud.
pdfFiller makes dealing with documents a breeze. Create an account to find out!
Uncompromising security for your PDF editing and eSignature needs
Your private information is safe with pdfFiller. We employ end-to-end encryption, secure cloud storage, and advanced access control to protect your documents and maintain regulatory compliance.
How to fill out historic name cook julia

How to fill out historic name cook julia
01
Start by gathering all necessary information about Julia as a historic figure, including her full name, birthdate, and any notable accomplishments or contributions she made in the cooking industry.
02
Research any specific guidelines or requirements for filling out a historic name form, such as the format for providing dates or documentation needed to support the information provided.
03
Begin the form by entering Julia's full name in the designated field.
04
Specify her birthdate accurately according to the provided format.
05
Include a detailed description of Julia's accomplishments and contributions as a cook, highlighting any significant impact she had on the culinary world.
06
Attach any necessary documentation or evidence to support the information provided, such as articles, books, or interviews featuring Julia's work or influence.
07
Double-check all information entered to ensure accuracy and completeness.
08
Submit the filled-out historic name form through the designated submission process or to the appropriate authorities or organization responsible for verifying and approving historic names.
09
Follow any further instructions or requests for additional information from the relevant authorities or organization, if applicable.
10
Keep a copy of the filled-out historic name form and any supporting documents for your records.
Who needs historic name cook julia?
01
Anyone who recognizes the significant contributions and impact of Julia as a cook and wishes to preserve her legacy.
02
Historians, researchers, or individuals involved in documenting or studying the history of the culinary industry.
03
Organizations or institutions dedicated to honoring and commemorating notable figures in the cooking industry.
04
Julia's fans, admirers, or individuals who have been inspired by her work and want to ensure her name and contributions are recognized and remembered.
Fill
form
: Try Risk Free
For pdfFiller’s FAQs
Below is a list of the most common customer questions. If you can’t find an answer to your question, please don’t hesitate to reach out to us.
How do I modify my historic name cook julia in Gmail?
You can use pdfFiller’s add-on for Gmail in order to modify, fill out, and eSign your historic name cook julia along with other documents right in your inbox. Find pdfFiller for Gmail in Google Workspace Marketplace. Use time you spend on handling your documents and eSignatures for more important things.
How can I modify historic name cook julia without leaving Google Drive?
Simplify your document workflows and create fillable forms right in Google Drive by integrating pdfFiller with Google Docs. The integration will allow you to create, modify, and eSign documents, including historic name cook julia, without leaving Google Drive. Add pdfFiller’s functionalities to Google Drive and manage your paperwork more efficiently on any internet-connected device.
How can I send historic name cook julia to be eSigned by others?
When your historic name cook julia is finished, send it to recipients securely and gather eSignatures with pdfFiller. You may email, text, fax, mail, or notarize a PDF straight from your account. Create an account today to test it.
What is historic name cook julia?
The historic name 'Cook Julia' refers to a generic term or a specific entity that has historical significance, often related to culinary arts or a particular chef.
Who is required to file historic name cook julia?
Individuals or businesses that wish to legally use the historic name 'Cook Julia' for commercial purposes may be required to file it, particularly if they are establishing a brand or trademark related to culinary offerings.
How to fill out historic name cook julia?
To fill out the 'Cook Julia' historic name form, one typically needs to provide relevant personal or business information, the nature of the business, and the specific use of the historic name.
What is the purpose of historic name cook julia?
The purpose of filing for the historic name 'Cook Julia' is to protect the branding associated with it and to ensure that the name can be legally used in business operations.
What information must be reported on historic name cook julia?
The information usually required includes the applicant's name, address, the intended use of the name, and any existing trademarks or businesses associated with 'Cook Julia'.
Fill out your historic name cook julia online with pdfFiller!
pdfFiller is an end-to-end solution for managing, creating, and editing documents and forms in the cloud. Save time and hassle by preparing your tax forms online.

Historic Name Cook Julia is not the form you're looking for?Search for another form here.
Relevant keywords
Related Forms
If you believe that this page should be taken down, please follow our DMCA take down process
here
.
This form may include fields for payment information. Data entered in these fields is not covered by PCI DSS compliance.