Get the free historic name Korth-Nicolaus House
Show details
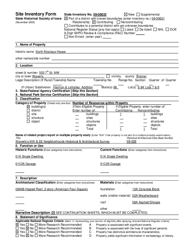
Site Inventory Form State Historical Society of Iowa (November 2005)State Inventory No. 0900833 New Supplemental Part of a district with known boundaries (enter inventory no.) 0900621 Relationship:
We are not affiliated with any brand or entity on this form
Get, Create, Make and Sign historic name korth-nicolaus house
Edit your historic name korth-nicolaus house form online
Type text, complete fillable fields, insert images, highlight or blackout data for discretion, add comments, and more.
Add your legally-binding signature
Draw or type your signature, upload a signature image, or capture it with your digital camera.
Share your form instantly
Email, fax, or share your historic name korth-nicolaus house form via URL. You can also download, print, or export forms to your preferred cloud storage service.
How to edit historic name korth-nicolaus house online
Use the instructions below to start using our professional PDF editor:
1
Register the account. Begin by clicking Start Free Trial and create a profile if you are a new user.
2
Upload a document. Select Add New on your Dashboard and transfer a file into the system in one of the following ways: by uploading it from your device or importing from the cloud, web, or internal mail. Then, click Start editing.
3
Edit historic name korth-nicolaus house. Rearrange and rotate pages, add and edit text, and use additional tools. To save changes and return to your Dashboard, click Done. The Documents tab allows you to merge, divide, lock, or unlock files.
4
Save your file. Choose it from the list of records. Then, shift the pointer to the right toolbar and select one of the several exporting methods: save it in multiple formats, download it as a PDF, email it, or save it to the cloud.
With pdfFiller, dealing with documents is always straightforward.
Uncompromising security for your PDF editing and eSignature needs
Your private information is safe with pdfFiller. We employ end-to-end encryption, secure cloud storage, and advanced access control to protect your documents and maintain regulatory compliance.
How to fill out historic name korth-nicolaus house
How to fill out historic name korth-nicolaus house
01
To fill out the historic name Korth-Nicolaus House, follow these steps:
02
Start by entering the full name of the house, which is Korth-Nicolaus House.
03
Next, provide any historical details or significance of the house, including any notable events or people associated with it.
04
Include the address or location of the house.
05
Specify the architectural style or period the house represents, if applicable.
06
If there are any unique features or characteristics of the house, mention them.
07
Finally, submit the filled-out form to the relevant historic preservation authority or organization.
Who needs historic name korth-nicolaus house?
01
Historic name Korth-Nicolaus House is needed by individuals, organizations, or authorities involved in historic preservation and heritage conservation.
02
These can include local historical societies, government agencies responsible for preserving cultural heritage, or individuals looking to promote and recognize the historical value of the house.
03
By assigning a historic name, it helps to commemorate and protect the cultural significance of the Korth-Nicolaus House for future generations.
Fill
form
: Try Risk Free
For pdfFiller’s FAQs
Below is a list of the most common customer questions. If you can’t find an answer to your question, please don’t hesitate to reach out to us.
How can I edit historic name korth-nicolaus house from Google Drive?
By combining pdfFiller with Google Docs, you can generate fillable forms directly in Google Drive. No need to leave Google Drive to make edits or sign documents, including historic name korth-nicolaus house. Use pdfFiller's features in Google Drive to handle documents on any internet-connected device.
How can I edit historic name korth-nicolaus house on a smartphone?
The best way to make changes to documents on a mobile device is to use pdfFiller's apps for iOS and Android. You may get them from the Apple Store and Google Play. Learn more about the apps here. To start editing historic name korth-nicolaus house, you need to install and log in to the app.
Can I edit historic name korth-nicolaus house on an Android device?
The pdfFiller app for Android allows you to edit PDF files like historic name korth-nicolaus house. Mobile document editing, signing, and sending. Install the app to ease document management anywhere.
What is historic name korth-nicolaus house?
The historic name Korth-Nicolaus House refers to a specific property that holds historical significance, often recognized for its architectural style, historical events, or connections to notable individuals.
Who is required to file historic name korth-nicolaus house?
Typically, property owners or organizations that manage historical properties are required to file information regarding the historic name Korth-Nicolaus House.
How to fill out historic name korth-nicolaus house?
To fill out the historic name Korth-Nicolaus House form, one must provide relevant historical data, property ownership details, and any legal or zoning information required by the local jurisdiction.
What is the purpose of historic name korth-nicolaus house?
The purpose of the historic name Korth-Nicolaus House is to formally recognize the property's historical status, ensuring its preservation and protection under local or national heritage laws.
What information must be reported on historic name korth-nicolaus house?
The information required typically includes the property's location, historical significance, architectural style, ownership history, and any previous restoration efforts.
Fill out your historic name korth-nicolaus house online with pdfFiller!
pdfFiller is an end-to-end solution for managing, creating, and editing documents and forms in the cloud. Save time and hassle by preparing your tax forms online.
Historic Name Korth-Nicolaus House is not the form you're looking for?Search for another form here.
Relevant keywords
Related Forms
If you believe that this page should be taken down, please follow our DMCA take down process
here
.
This form may include fields for payment information. Data entered in these fields is not covered by PCI DSS compliance.