Get the free historic name Ramker-Nichols House
Show details
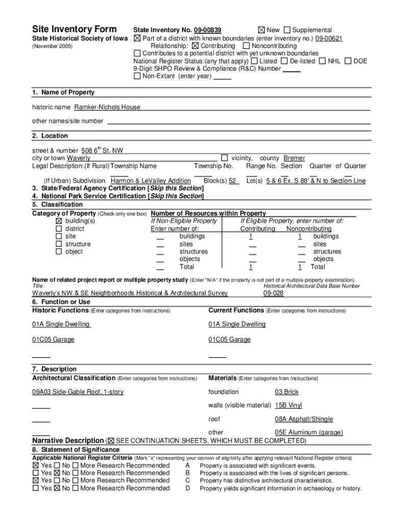
Site Inventory Form State Historical Society of Iowa (November 2005)State Inventory No. 0900839 New Supplemental Part of a district with known boundaries (enter inventory no.) 0900621 Relationship:
We are not affiliated with any brand or entity on this form
Get, Create, Make and Sign historic name ramker-nichols house
Edit your historic name ramker-nichols house form online
Type text, complete fillable fields, insert images, highlight or blackout data for discretion, add comments, and more.
Add your legally-binding signature
Draw or type your signature, upload a signature image, or capture it with your digital camera.
Share your form instantly
Email, fax, or share your historic name ramker-nichols house form via URL. You can also download, print, or export forms to your preferred cloud storage service.
Editing historic name ramker-nichols house online
Follow the steps down below to benefit from a competent PDF editor:
1
Register the account. Begin by clicking Start Free Trial and create a profile if you are a new user.
2
Simply add a document. Select Add New from your Dashboard and import a file into the system by uploading it from your device or importing it via the cloud, online, or internal mail. Then click Begin editing.
3
Edit historic name ramker-nichols house. Rearrange and rotate pages, add new and changed texts, add new objects, and use other useful tools. When you're done, click Done. You can use the Documents tab to merge, split, lock, or unlock your files.
4
Save your file. Select it in the list of your records. Then, move the cursor to the right toolbar and choose one of the available exporting methods: save it in multiple formats, download it as a PDF, send it by email, or store it in the cloud.
Uncompromising security for your PDF editing and eSignature needs
Your private information is safe with pdfFiller. We employ end-to-end encryption, secure cloud storage, and advanced access control to protect your documents and maintain regulatory compliance.
How to fill out historic name ramker-nichols house
How to fill out historic name ramker-nichols house
01
To fill out the historic name ramker-nichols house, follow these steps:
02
- Begin by obtaining the necessary forms or applications for historic name designation.
03
- Research the history and significance of the ramker-nichols house to gather supporting documentation.
04
- Contact the appropriate local or national historical preservation organization for guidance and assistance.
05
- Fill out the forms accurately and provide all requested information about the ramker-nichols house.
06
- Include any supporting documents, such as historical photos, research findings, or relevant certificates.
07
- Submit the completed application and supporting materials to the designated authority or organization.
08
- Await the review and evaluation process, which may involve site visits, interviews, or additional documentation requests.
09
- Once approved, the historic name ramker-nichols house will be officially recognized and may be listed in relevant directories, plaques, or publications.
Who needs historic name ramker-nichols house?
01
Various individuals and organizations may have a need or interest in the historic name ramker-nichols house, including:
02
- Local community members who value preserving and promoting local history.
03
- Historians, researchers, and academics studying architecture or local heritage.
04
- Government agencies responsible for historic preservation and heritage conservation.
05
- Tourist boards and travel organizations promoting historical landmarks and attractions.
06
- The owner or occupants of the ramker-nichols house seeking official recognition and validation of its historical significance.
07
- Cultural or heritage organizations looking to include the ramker-nichols house in their programming or exhibits.
08
- Architects, designers, or builders seeking inspiration from historically significant buildings.
Fill
form
: Try Risk Free
For pdfFiller’s FAQs
Below is a list of the most common customer questions. If you can’t find an answer to your question, please don’t hesitate to reach out to us.
How can I edit historic name ramker-nichols house from Google Drive?
By combining pdfFiller with Google Docs, you can generate fillable forms directly in Google Drive. No need to leave Google Drive to make edits or sign documents, including historic name ramker-nichols house. Use pdfFiller's features in Google Drive to handle documents on any internet-connected device.
How can I send historic name ramker-nichols house to be eSigned by others?
When you're ready to share your historic name ramker-nichols house, you can swiftly email it to others and receive the eSigned document back. You may send your PDF through email, fax, text message, or USPS mail, or you can notarize it online. All of this may be done without ever leaving your account.
How do I fill out historic name ramker-nichols house on an Android device?
Use the pdfFiller app for Android to finish your historic name ramker-nichols house. The application lets you do all the things you need to do with documents, like add, edit, and remove text, sign, annotate, and more. There is nothing else you need except your smartphone and an internet connection to do this.
What is historic name ramker-nichols house?
The historic name 'Ramker-Nichols House' refers to a property with historical significance, often recognized for its architectural style or cultural importance.
Who is required to file historic name ramker-nichols house?
Typically, property owners or designated representatives are required to file the historic name for the Ramker-Nichols House.
How to fill out historic name ramker-nichols house?
To fill out the application for the historic name of the Ramker-Nichols House, one should follow the provided guidelines from the local historical society or preservation office, include all required information, and submit the application forms appropriately.
What is the purpose of historic name ramker-nichols house?
The purpose of designating the Ramker-Nichols House with a historic name is to acknowledge its significance, promote preservation efforts, and inform the public about its historical relevance.
What information must be reported on historic name ramker-nichols house?
Information required generally includes the property's location, a description of its historical significance, architectural details, and any previous designations or designations applied for.
Fill out your historic name ramker-nichols house online with pdfFiller!
pdfFiller is an end-to-end solution for managing, creating, and editing documents and forms in the cloud. Save time and hassle by preparing your tax forms online.
Historic Name Ramker-Nichols House is not the form you're looking for?Search for another form here.
Relevant keywords
Related Forms
If you believe that this page should be taken down, please follow our DMCA take down process
here
.
This form may include fields for payment information. Data entered in these fields is not covered by PCI DSS compliance.