Form preview

Get the free 456 N State Street

Get Form
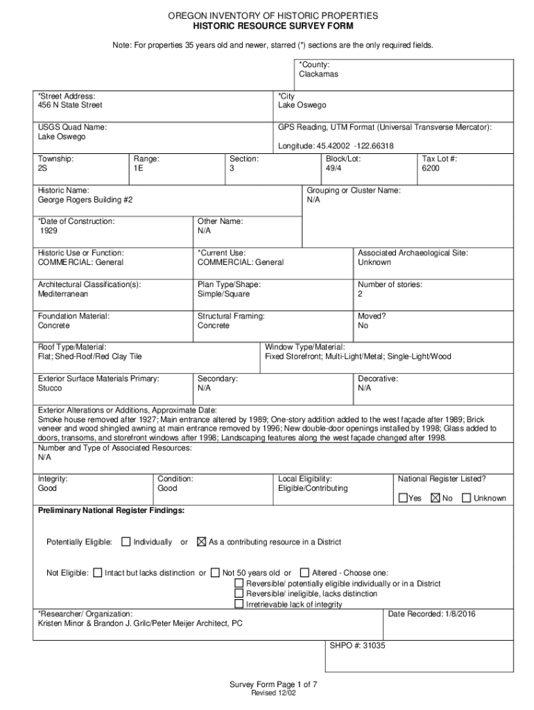
OREGON INVENTORY OF HISTORIC PROPERTIES HISTORIC RESOURCE SURVEY FORM Note: For properties 35 years old and newer, starred (*) sections are the only required fields. *County: Clacks *Street Address: 456
We are not affiliated with any brand or entity on this form

Get, Create, Make and Sign 456 n state street

Edit
Edit your 456 n state street form online
Type text, complete fillable fields, insert images, highlight or blackout data for discretion, add comments, and more.
Add
Add your legally-binding signature
Draw or type your signature, upload a signature image, or capture it with your digital camera.
Share
Share your form instantly
Email, fax, or share your 456 n state street form via URL. You can also download, print, or export forms to your preferred cloud storage service.

Editing 456 n state street online

9.5
Ease of Setup
pdfFiller User Ratings on G2
9.0
Ease of Use
pdfFiller User Ratings on G2
To use our professional PDF editor, follow these steps:
1
Log in. Click Start Free Trial and create a profile if necessary.
2
Prepare a file. Use the Add New button to start a new project. Then, using your device, upload your file to the system by importing it from internal mail, the cloud, or adding its URL.
3
Edit 456 n state street. Text may be added and replaced, new objects can be included, pages can be rearranged, watermarks and page numbers can be added, and so on. When you're done editing, click Done and then go to the Documents tab to combine, divide, lock, or unlock the file.
4
Get your file. When you find your file in the docs list, click on its name and choose how you want to save it. To get the PDF, you can save it, send an email with it, or move it to the cloud.
With pdfFiller, it's always easy to work with documents. Try it out!

Uncompromising security for your PDF editing and eSignature needs

Your private information is safe with pdfFiller. We employ end-to-end encryption, secure cloud storage, and advanced access control to protect your documents and maintain regulatory compliance.
GDPR
AICPA SOC 2
PCI
HIPAA
CCPA
FDA

How to fill out 456 n state street

Illustration

How to fill out 456 n state street

01
To fill out 456 N State Street, follow these steps:
02
Start by writing your full name in the designated space provided.
03
Enter your complete address, including the street number, street name, city, state, and ZIP code.
04
In the next section, provide your contact information, such as phone number and email address.
05
If there is a separate space for apartment number or unit, make sure to enter that information accurately.
06
If applicable, provide any additional details required, such as the purpose of the form or any additional instructions.
07
Carefully review all the information you have entered to ensure accuracy and completeness.
08
Once you are satisfied with the details, sign and date the form in the designated areas.
09
Make copies of the filled-out form for your records, if necessary.
10
Submit the completed form through the designated method, whether it be in person, via mail, or online.
11
Keep a copy of the submitted form confirmation or receipt, if applicable.

Who needs 456 n state street?

01
456 N State Street can be needed by various individuals or entities depending on the context:
02
- Residents or tenants of the property located at 456 N State Street might need it for official paperwork or documentation.
03
- Postal services may require the address to deliver mail or packages to the correct location.
04
- Businesses located at or using 456 N State Street as their address may use it for legal purposes, registrations, or correspondence.
05
- Government agencies or organizations might request this address for various reasons, such as taxation or census.
06
The specific need for 456 N State Street would depend on the intended use or purpose of the address.
Fill form : Try Risk Free
Users Most Likely To Recommend - Summer 2025
Grid Leader in Small-Business - Summer 2025
High Performer - Summer 2025
Regional Leader - Summer 2025
Easiest To Do Business With - Summer 2025
Best Meets Requirements- Summer 2025
Rate the form
4.2
Satisfied
20 Votes

For pdfFiller’s FAQs

Below is a list of the most common customer questions. If you can’t find an answer to your question, please don’t hesitate to reach out to us.

With pdfFiller, an all-in-one online tool for professional document management, it's easy to fill out documents. Over 25 million fillable forms are available on our website, and you can find the 456 n state street in a matter of seconds. Open it right away and start making it your own with help from advanced editing tools.
The editing procedure is simple with pdfFiller. Open your 456 n state street in the editor. You may also add photos, draw arrows and lines, insert sticky notes and text boxes, and more.
Add pdfFiller Google Chrome Extension to your web browser to start editing 456 n state street and other documents directly from a Google search page. The service allows you to make changes in your documents when viewing them in Chrome. Create fillable documents and edit existing PDFs from any internet-connected device with pdfFiller.
456 N State Street refers to a specific address, often associated with a business or organization located in that location.
Individuals or entities that have transactions or obligations related to the entity at 456 N State Street may be required to file necessary documentation.
To fill out the required forms related to 456 N State Street, gather the necessary information, follow the form instructions carefully, and submit it to the appropriate authority.
The purpose of documents associated with 456 N State Street is typically to report financial information, address compliance, or fulfill legal requirements related to the entity at that address.
The information that must be reported usually includes identification details of the involved parties, financial transactions, and compliance data specific to the address.
Fill out your 456 n state street online with pdfFiller!

pdfFiller is an end-to-end solution for managing, creating, and editing documents and forms in the cloud. Save time and hassle by preparing your tax forms online.

Get started now
Form preview
If you believe that this page should be taken down, please follow our DMCA take down process here .
This form may include fields for payment information. Data entered in these fields is not covered by PCI DSS compliance.