Get the free Luesenhop, Henry F
Show details
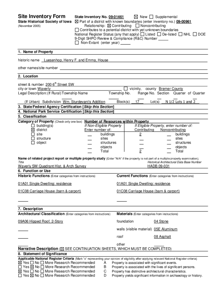
Site Inventory Form State Historical Society of Iowa (November 2005)State Inventory No. 0901461 New Supplemental Part of a district with known boundaries (enter inventory no.) 0900961 Relationship:
We are not affiliated with any brand or entity on this form
Get, Create, Make and Sign luesenhop henry f
Edit your luesenhop henry f form online
Type text, complete fillable fields, insert images, highlight or blackout data for discretion, add comments, and more.
Add your legally-binding signature
Draw or type your signature, upload a signature image, or capture it with your digital camera.
Share your form instantly
Email, fax, or share your luesenhop henry f form via URL. You can also download, print, or export forms to your preferred cloud storage service.
Editing luesenhop henry f online
In order to make advantage of the professional PDF editor, follow these steps below:
1
Log in. Click Start Free Trial and create a profile if necessary.
2
Simply add a document. Select Add New from your Dashboard and import a file into the system by uploading it from your device or importing it via the cloud, online, or internal mail. Then click Begin editing.
3
Edit luesenhop henry f. Rearrange and rotate pages, add and edit text, and use additional tools. To save changes and return to your Dashboard, click Done. The Documents tab allows you to merge, divide, lock, or unlock files.
4
Get your file. Select your file from the documents list and pick your export method. You may save it as a PDF, email it, or upload it to the cloud.
pdfFiller makes dealing with documents a breeze. Create an account to find out!
Uncompromising security for your PDF editing and eSignature needs
Your private information is safe with pdfFiller. We employ end-to-end encryption, secure cloud storage, and advanced access control to protect your documents and maintain regulatory compliance.
How to fill out luesenhop henry f
How to fill out luesenhop henry f
01
Start by gathering all the necessary documents and information, such as personal identification, employment details, and financial information.
02
Visit the official website of luesenhop henry f and locate the online application form.
03
Carefully fill out the form, providing accurate and up-to-date information in each required field.
04
Double-check all the entered information to ensure its accuracy and validity.
05
Review any additional instructions or requirements associated with the form and make sure to fulfill them accordingly.
06
Once you have completed all the necessary sections of the form, submit it electronically through the designated submission button.
07
Take note of any confirmation number or submission details provided upon successfully submitting the form.
08
If there are any supporting documents required, gather them and attach them to your application in the specified format.
09
Wait for a response or further instructions from luesenhop henry f regarding the status of your application.
10
If approved, follow any additional steps or procedures provided by luesenhop henry f to complete the process.
Who needs luesenhop henry f?
01
luesenhop henry f is typically needed by individuals who are looking for [insert specific purpose], such as obtaining a loan, applying for a service, or fulfilling a legal requirement.
02
It may also be required by employers or institutions to verify an individual's identity, financial standing, or background.
03
The specific need for luesenhop henry f can vary depending on the context and purpose it serves.
Fill
form
: Try Risk Free
For pdfFiller’s FAQs
Below is a list of the most common customer questions. If you can’t find an answer to your question, please don’t hesitate to reach out to us.
How do I modify my luesenhop henry f in Gmail?
luesenhop henry f and other documents can be changed, filled out, and signed right in your Gmail inbox. You can use pdfFiller's add-on to do this, as well as other things. When you go to Google Workspace, you can find pdfFiller for Gmail. You should use the time you spend dealing with your documents and eSignatures for more important things, like going to the gym or going to the dentist.
How do I make edits in luesenhop henry f without leaving Chrome?
Install the pdfFiller Chrome Extension to modify, fill out, and eSign your luesenhop henry f, which you can access right from a Google search page. Fillable documents without leaving Chrome on any internet-connected device.
How do I complete luesenhop henry f on an iOS device?
Make sure you get and install the pdfFiller iOS app. Next, open the app and log in or set up an account to use all of the solution's editing tools. If you want to open your luesenhop henry f, you can upload it from your device or cloud storage, or you can type the document's URL into the box on the right. After you fill in all of the required fields in the document and eSign it, if that is required, you can save or share it with other people.
What is luesenhop henry f?
Luesenhop Henry F is a type of financial form or document that provides information about financial transactions and holdings.
Who is required to file luesenhop henry f?
Individuals or entities with certain financial activities or holdings are required to file Luesenhop Henry F.
How to fill out luesenhop henry f?
Luesenhop Henry F can be filled out electronically or manually by providing all the required details about financial transactions and holdings.
What is the purpose of luesenhop henry f?
The purpose of Luesenhop Henry F is to provide transparency and prevent financial crimes like money laundering and tax evasion.
What information must be reported on luesenhop henry f?
Information such as financial transactions, holdings, and the parties involved must be reported on Luesenhop Henry F.
Fill out your luesenhop henry f online with pdfFiller!
pdfFiller is an end-to-end solution for managing, creating, and editing documents and forms in the cloud. Save time and hassle by preparing your tax forms online.
Luesenhop Henry F is not the form you're looking for?Search for another form here.
Relevant keywords
Related Forms
If you believe that this page should be taken down, please follow our DMCA take down process
here
.
This form may include fields for payment information. Data entered in these fields is not covered by PCI DSS compliance.