Get the free NC DEQ: Public Water Supply Section Forms, Reports & Publications
Show details
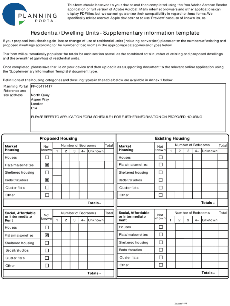
NO.PA.01North Quay
Application Formed
July 2020Application for Outline Planning Permission with all matters reserved.
Town and Country Planning Act 1990
Publication of applications on planning authority
We are not affiliated with any brand or entity on this form
Get, Create, Make and Sign nc deq public water
Edit your nc deq public water form online
Type text, complete fillable fields, insert images, highlight or blackout data for discretion, add comments, and more.
Add your legally-binding signature
Draw or type your signature, upload a signature image, or capture it with your digital camera.
Share your form instantly
Email, fax, or share your nc deq public water form via URL. You can also download, print, or export forms to your preferred cloud storage service.
How to edit nc deq public water online
Here are the steps you need to follow to get started with our professional PDF editor:
1
Check your account. It's time to start your free trial.
2
Prepare a file. Use the Add New button. Then upload your file to the system from your device, importing it from internal mail, the cloud, or by adding its URL.
3
Edit nc deq public water. Rearrange and rotate pages, insert new and alter existing texts, add new objects, and take advantage of other helpful tools. Click Done to apply changes and return to your Dashboard. Go to the Documents tab to access merging, splitting, locking, or unlocking functions.
4
Get your file. Select the name of your file in the docs list and choose your preferred exporting method. You can download it as a PDF, save it in another format, send it by email, or transfer it to the cloud.
Dealing with documents is simple using pdfFiller.
Uncompromising security for your PDF editing and eSignature needs
Your private information is safe with pdfFiller. We employ end-to-end encryption, secure cloud storage, and advanced access control to protect your documents and maintain regulatory compliance.
How to fill out nc deq public water
How to fill out nc deq public water
01
To fill out NC DEQ Public Water form, follow these steps:
02
Begin by downloading the NC DEQ Public Water form from the official website.
03
Read the instructions provided on the form carefully to understand the requirements.
04
Start filling out the form by providing your personal information such as name, address, and contact details.
05
Indicate the type of water source you are applying for, whether it is a well, spring, or other source.
06
Provide detailed information about the water source, including its location, depth, and any treatment or filtration systems in place.
07
Answer all the questions regarding the compliance history and possible contamination sources near the water source.
08
Attach any required supporting documents, such as water quality test results or permits.
09
Review the completed form to ensure all the information is accurate and complete.
10
Submit the filled-out form along with any supporting documents to the NC DEQ Public Water department either by mail or online submission as per the provided instructions.
11
Keep a copy of the submitted form for your records.
12
Who needs nc deq public water?
01
Any individual, business, or organization that requires access to public water in North Carolina may need the NC DEQ Public Water. This includes:
02
- Residential properties that do not have access to a public water system.
03
- Commercial properties, such as restaurants, hotels, and shops, that require a public water supply for their operations.
04
- Agricultural operations that need water for irrigation purposes.
05
- Industrial facilities that rely on public water for their manufacturing processes.
06
- Public institutions, such as schools and hospitals, that need a safe and reliable water source.
07
- Non-profit organizations that provide water-related services.
08
Fill
form
: Try Risk Free
For pdfFiller’s FAQs
Below is a list of the most common customer questions. If you can’t find an answer to your question, please don’t hesitate to reach out to us.
Can I create an electronic signature for the nc deq public water in Chrome?
Yes. With pdfFiller for Chrome, you can eSign documents and utilize the PDF editor all in one spot. Create a legally enforceable eSignature by sketching, typing, or uploading a handwritten signature image. You may eSign your nc deq public water in seconds.
Can I create an eSignature for the nc deq public water in Gmail?
When you use pdfFiller's add-on for Gmail, you can add or type a signature. You can also draw a signature. pdfFiller lets you eSign your nc deq public water and other documents right from your email. In order to keep signed documents and your own signatures, you need to sign up for an account.
How can I fill out nc deq public water on an iOS device?
pdfFiller has an iOS app that lets you fill out documents on your phone. A subscription to the service means you can make an account or log in to one you already have. As soon as the registration process is done, upload your nc deq public water. You can now use pdfFiller's more advanced features, like adding fillable fields and eSigning documents, as well as accessing them from any device, no matter where you are in the world.
What is nc deq public water?
NC DEQ Public Water is a program that regulates and monitors the quality of public drinking water in the state of North Carolina.
Who is required to file nc deq public water?
Public water systems in North Carolina are required to file with the NC DEQ Public Water program.
How to fill out nc deq public water?
To fill out the NC DEQ Public Water form, public water systems must provide information about the quality and sources of their drinking water.
What is the purpose of nc deq public water?
The purpose of the NC DEQ Public Water program is to ensure the safety and quality of public drinking water for residents of North Carolina.
What information must be reported on nc deq public water?
Information that must be reported on the NC DEQ Public Water form includes water quality test results, source water information, and treatment process details.
Fill out your nc deq public water online with pdfFiller!
pdfFiller is an end-to-end solution for managing, creating, and editing documents and forms in the cloud. Save time and hassle by preparing your tax forms online.
Nc Deq Public Water is not the form you're looking for?Search for another form here.
Relevant keywords
Related Forms
If you believe that this page should be taken down, please follow our DMCA take down process
here
.
This form may include fields for payment information. Data entered in these fields is not covered by PCI DSS compliance.