
Get the free Including suburb or 4 Hinde Road, Tyers
Show details
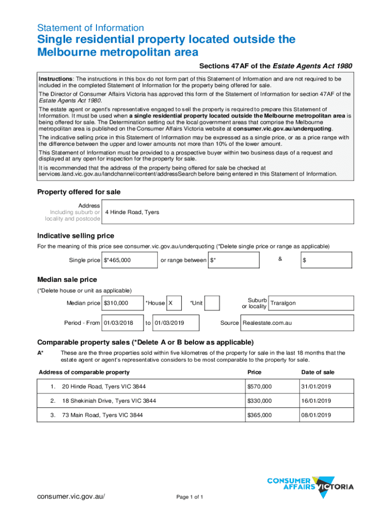
Statement of InformationSingle residential property located outside the
Melbourne metropolitan area
Sections 47AF of the Estate Agents Act 1980
Instructions: The instructions in this box do not form
We are not affiliated with any brand or entity on this form
Get, Create, Make and Sign including suburb or 4

Edit your including suburb or 4 form online
Type text, complete fillable fields, insert images, highlight or blackout data for discretion, add comments, and more.

Add your legally-binding signature
Draw or type your signature, upload a signature image, or capture it with your digital camera.

Share your form instantly
Email, fax, or share your including suburb or 4 form via URL. You can also download, print, or export forms to your preferred cloud storage service.
How to edit including suburb or 4 online
To use our professional PDF editor, follow these steps:
1
Create an account. Begin by choosing Start Free Trial and, if you are a new user, establish a profile.
2
Simply add a document. Select Add New from your Dashboard and import a file into the system by uploading it from your device or importing it via the cloud, online, or internal mail. Then click Begin editing.
3
Edit including suburb or 4. Rearrange and rotate pages, add and edit text, and use additional tools. To save changes and return to your Dashboard, click Done. The Documents tab allows you to merge, divide, lock, or unlock files.
4
Save your file. Select it from your records list. Then, click the right toolbar and select one of the various exporting options: save in numerous formats, download as PDF, email, or cloud.
pdfFiller makes working with documents easier than you could ever imagine. Try it for yourself by creating an account!
Uncompromising security for your PDF editing and eSignature needs
Your private information is safe with pdfFiller. We employ end-to-end encryption, secure cloud storage, and advanced access control to protect your documents and maintain regulatory compliance.
How to fill out including suburb or 4

How to fill out including suburb or 4
01
To fill out the form including suburb or 4, follow these steps:
02
Start by locating the suburb field on the form.
03
Enter the name of the suburb where you live or want to provide information about.
04
If there is a separate field for postal code or ZIP code, enter the fourth digit of your suburb's code in that field.
05
Double-check the filled information for accuracy and completeness before submitting the form.
Who needs including suburb or 4?
01
Anyone who is required to provide or inquire about information related to a particular suburb or postal code that contains a four-digit code may need to fill out the form including suburb or 4.
02
This can include individuals applying for services specific to a suburb, researchers studying demographic data, or businesses targeting customers within a certain postal code area.
Fill
form
: Try Risk Free
For pdfFiller’s FAQs
Below is a list of the most common customer questions. If you can’t find an answer to your question, please don’t hesitate to reach out to us.
How do I make edits in including suburb or 4 without leaving Chrome?
Get and add pdfFiller Google Chrome Extension to your browser to edit, fill out and eSign your including suburb or 4, which you can open in the editor directly from a Google search page in just one click. Execute your fillable documents from any internet-connected device without leaving Chrome.
Can I create an electronic signature for the including suburb or 4 in Chrome?
Yes. With pdfFiller for Chrome, you can eSign documents and utilize the PDF editor all in one spot. Create a legally enforceable eSignature by sketching, typing, or uploading a handwritten signature image. You may eSign your including suburb or 4 in seconds.
How do I edit including suburb or 4 on an iOS device?
No, you can't. With the pdfFiller app for iOS, you can edit, share, and sign including suburb or 4 right away. At the Apple Store, you can buy and install it in a matter of seconds. The app is free, but you will need to set up an account if you want to buy a subscription or start a free trial.
What is including suburb or 4?
Including suburb or 4 is a form used for reporting certain information to the relevant authorities.
Who is required to file including suburb or 4?
Entities or individuals specified by the tax regulations are required to file including suburb or 4.
How to fill out including suburb or 4?
Including suburb or 4 can be filled out by providing the requested information in the designated fields according to the instructions provided.
What is the purpose of including suburb or 4?
The purpose of including suburb or 4 is to gather specific information for tax or regulatory purposes.
What information must be reported on including suburb or 4?
Including suburb or 4 typically requires information such as income, expenses, deductions, credits, and other related financial data.
Fill out your including suburb or 4 online with pdfFiller!
pdfFiller is an end-to-end solution for managing, creating, and editing documents and forms in the cloud. Save time and hassle by preparing your tax forms online.

Including Suburb Or 4 is not the form you're looking for?Search for another form here.
Relevant keywords
Related Forms
If you believe that this page should be taken down, please follow our DMCA take down process
here
.
This form may include fields for payment information. Data entered in these fields is not covered by PCI DSS compliance.