Get the free JOINT APPLICATION FOR PERMITS FOR THE ...
Show details
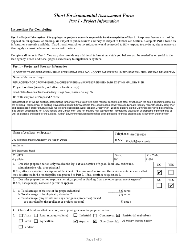
JOINT APPLICATION FOR PERMITS
FOR THE
RECONSTRUCTION OF CROWNINSHIELD PIER AND CRESS PIER
AT THE
UNITED STATES MERCHANT MARINE ACADEMY
300 STEAMBOAT ROAD
VILLAGE OF KINGS POINT, NASSAU COUNTY, NEW
We are not affiliated with any brand or entity on this form
Get, Create, Make and Sign joint application for permits
Edit your joint application for permits form online
Type text, complete fillable fields, insert images, highlight or blackout data for discretion, add comments, and more.
Add your legally-binding signature
Draw or type your signature, upload a signature image, or capture it with your digital camera.
Share your form instantly
Email, fax, or share your joint application for permits form via URL. You can also download, print, or export forms to your preferred cloud storage service.
How to edit joint application for permits online
Follow the steps down below to benefit from a competent PDF editor:
1
Log in. Click Start Free Trial and create a profile if necessary.
2
Upload a document. Select Add New on your Dashboard and transfer a file into the system in one of the following ways: by uploading it from your device or importing from the cloud, web, or internal mail. Then, click Start editing.
3
Edit joint application for permits. Rearrange and rotate pages, insert new and alter existing texts, add new objects, and take advantage of other helpful tools. Click Done to apply changes and return to your Dashboard. Go to the Documents tab to access merging, splitting, locking, or unlocking functions.
4
Get your file. Select your file from the documents list and pick your export method. You may save it as a PDF, email it, or upload it to the cloud.
pdfFiller makes working with documents easier than you could ever imagine. Create an account to find out for yourself how it works!
Uncompromising security for your PDF editing and eSignature needs
Your private information is safe with pdfFiller. We employ end-to-end encryption, secure cloud storage, and advanced access control to protect your documents and maintain regulatory compliance.
How to fill out joint application for permits
How to fill out joint application for permits
01
Step 1: Gather all required documents and information needed for the application.
02
Step 2: Fill out the joint application form accurately and completely.
03
Step 3: Attach any supporting documents required by the application.
04
Step 4: Review the completed application for any errors or missing information.
05
Step 5: Submit the joint application form along with all necessary documents to the appropriate authority.
06
Step 6: Pay any required fees or charges associated with the application.
07
Step 7: Wait for the application to be processed and approved.
08
Step 8: Once approved, follow any additional instructions provided by the authority for obtaining the permits.
Who needs joint application for permits?
01
Joint application for permits is usually required when two or more parties need to collaborate or jointly obtain permits for a particular purpose. This could include individuals, businesses, or organizations who are planning to undertake a project or activity that requires multiple permits or permissions. Examples may include construction projects involving multiple contractors, events requiring various permits, or joint ventures involving multiple entities.
Fill
form
: Try Risk Free
For pdfFiller’s FAQs
Below is a list of the most common customer questions. If you can’t find an answer to your question, please don’t hesitate to reach out to us.
How do I make changes in joint application for permits?
The editing procedure is simple with pdfFiller. Open your joint application for permits in the editor, which is quite user-friendly. You may use it to blackout, redact, write, and erase text, add photos, draw arrows and lines, set sticky notes and text boxes, and much more.
How do I make edits in joint application for permits without leaving Chrome?
Install the pdfFiller Chrome Extension to modify, fill out, and eSign your joint application for permits, which you can access right from a Google search page. Fillable documents without leaving Chrome on any internet-connected device.
How can I fill out joint application for permits on an iOS device?
In order to fill out documents on your iOS device, install the pdfFiller app. Create an account or log in to an existing one if you have a subscription to the service. Once the registration process is complete, upload your joint application for permits. You now can take advantage of pdfFiller's advanced functionalities: adding fillable fields and eSigning documents, and accessing them from any device, wherever you are.
What is joint application for permits?
Joint application for permits is a process where multiple parties apply for permits together for a specific project or activity.
Who is required to file joint application for permits?
Any group or individuals working on a project that requires multiple permits from different agencies may be required to file a joint application for permits.
How to fill out joint application for permits?
To fill out a joint application for permits, you will need to provide information about the project, the parties involved, necessary permits, and any other relevant details.
What is the purpose of joint application for permits?
The purpose of joint application for permits is to streamline the permitting process for projects involving multiple parties, reducing duplication of efforts and increasing efficiency.
What information must be reported on joint application for permits?
Information such as project details, contact information for all parties involved, permit requirements, and any additional documentation requested by the permitting agencies.
Fill out your joint application for permits online with pdfFiller!
pdfFiller is an end-to-end solution for managing, creating, and editing documents and forms in the cloud. Save time and hassle by preparing your tax forms online.
Joint Application For Permits is not the form you're looking for?Search for another form here.
Relevant keywords
Related Forms
If you believe that this page should be taken down, please follow our DMCA take down process
here
.
This form may include fields for payment information. Data entered in these fields is not covered by PCI DSS compliance.