Get the free 18 - Larchmont Avenue Church, Larchmont, Westchester Co DRAFT - parks ny
Show details
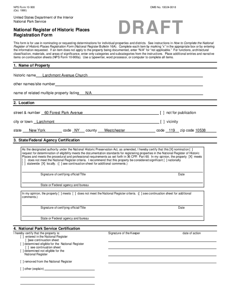
NPS Form 10900
(Oct. 1990)OMB No. 100240018United States Department of the Interior
National Park ServiceNational Register of Historic Places
Registration FormDRAFTThis form is for use in nominating
We are not affiliated with any brand or entity on this form
Get, Create, Make and Sign 18 - larchmont avenue
Edit your 18 - larchmont avenue form online
Type text, complete fillable fields, insert images, highlight or blackout data for discretion, add comments, and more.
Add your legally-binding signature
Draw or type your signature, upload a signature image, or capture it with your digital camera.
Share your form instantly
Email, fax, or share your 18 - larchmont avenue form via URL. You can also download, print, or export forms to your preferred cloud storage service.
Editing 18 - larchmont avenue online
Follow the steps down below to use a professional PDF editor:
1
Register the account. Begin by clicking Start Free Trial and create a profile if you are a new user.
2
Upload a document. Select Add New on your Dashboard and transfer a file into the system in one of the following ways: by uploading it from your device or importing from the cloud, web, or internal mail. Then, click Start editing.
3
Edit 18 - larchmont avenue. Add and replace text, insert new objects, rearrange pages, add watermarks and page numbers, and more. Click Done when you are finished editing and go to the Documents tab to merge, split, lock or unlock the file.
4
Get your file. Select the name of your file in the docs list and choose your preferred exporting method. You can download it as a PDF, save it in another format, send it by email, or transfer it to the cloud.
pdfFiller makes working with documents easier than you could ever imagine. Register for an account and see for yourself!
Uncompromising security for your PDF editing and eSignature needs
Your private information is safe with pdfFiller. We employ end-to-end encryption, secure cloud storage, and advanced access control to protect your documents and maintain regulatory compliance.
How to fill out 18 - larchmont avenue
How to fill out 18 - larchmont avenue
01
To fill out 18 - Larchmont Avenue, follow these steps:
02
Begin by writing the house number '18' in the appropriate field.
03
Next, enter the name of the street, which in this case is 'Larchmont Avenue'.
04
Make sure to provide any additional information required, such as the apartment number, unit number, or floor number.
05
Double-check the accuracy of the entered address to avoid any errors or delays.
06
Finally, click the 'Submit' button to complete the process.
Who needs 18 - larchmont avenue?
01
Anyone who requires the specific location or address of '18 - Larchmont Avenue' would need this information.
02
It could be someone looking for directions, a mail carrier delivering packages or letters, a service provider visiting the address, or any individual or entity that needs to identify or access the property.
Fill
form
: Try Risk Free
For pdfFiller’s FAQs
Below is a list of the most common customer questions. If you can’t find an answer to your question, please don’t hesitate to reach out to us.
How can I edit 18 - larchmont avenue on a smartphone?
Using pdfFiller's mobile-native applications for iOS and Android is the simplest method to edit documents on a mobile device. You may get them from the Apple App Store and Google Play, respectively. More information on the apps may be found here. Install the program and log in to begin editing 18 - larchmont avenue.
How can I fill out 18 - larchmont avenue on an iOS device?
pdfFiller has an iOS app that lets you fill out documents on your phone. A subscription to the service means you can make an account or log in to one you already have. As soon as the registration process is done, upload your 18 - larchmont avenue. You can now use pdfFiller's more advanced features, like adding fillable fields and eSigning documents, as well as accessing them from any device, no matter where you are in the world.
How do I fill out 18 - larchmont avenue on an Android device?
Use the pdfFiller mobile app to complete your 18 - larchmont avenue on an Android device. The application makes it possible to perform all needed document management manipulations, like adding, editing, and removing text, signing, annotating, and more. All you need is your smartphone and an internet connection.
What is 18 - larchmont avenue?
{answer: 'There seems to be a mistake in the question. Please provide a valid subtraction operation.'}
Who is required to file 18 - larchmont avenue?
{answer: 'It is unclear what '18 - larchmont avenue' represents. Please provide more context.'}
How to fill out 18 - larchmont avenue?
{answer: 'Please provide clarification on what '18 - larchmont avenue' refers to in order to provide the appropriate instructions.'}
What is the purpose of 18 - larchmont avenue?
{answer: 'Without further context, it is not possible to determine the purpose of '18 - larchmont avenue'. Please provide additional information.'}
What information must be reported on 18 - larchmont avenue?
{answer: 'Please specify the details or context of '18 - larchmont avenue' to provide the required information.'}
Fill out your 18 - larchmont avenue online with pdfFiller!
pdfFiller is an end-to-end solution for managing, creating, and editing documents and forms in the cloud. Save time and hassle by preparing your tax forms online.
18 - Larchmont Avenue is not the form you're looking for?Search for another form here.
Relevant keywords
Related Forms
If you believe that this page should be taken down, please follow our DMCA take down process
here
.
This form may include fields for payment information. Data entered in these fields is not covered by PCI DSS compliance.