Get the free Including suburb and LOT 9, 1581 SOUTH GIPPSLAND HIGHWAY CRANBOURNE EAST , VIC 3977
Show details
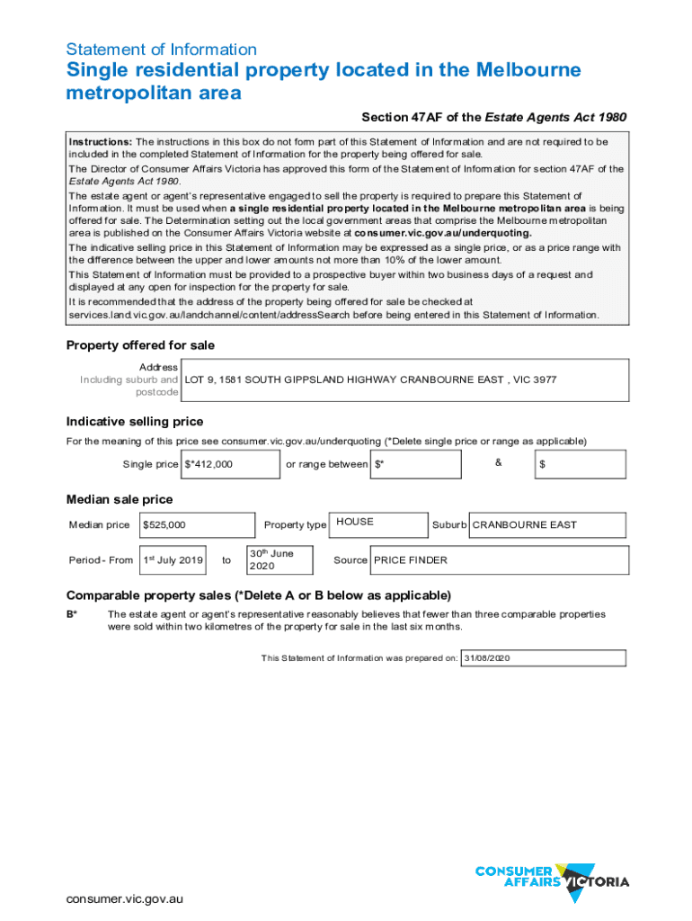
Statement of InformationSingle residential property located in the Melbourne
metropolitan area
Section 47AF of the Estate Agents Act 1980
Instructions: The instructions in this box do not form part
We are not affiliated with any brand or entity on this form
Get, Create, Make and Sign including suburb and lot
Edit your including suburb and lot form online
Type text, complete fillable fields, insert images, highlight or blackout data for discretion, add comments, and more.
Add your legally-binding signature
Draw or type your signature, upload a signature image, or capture it with your digital camera.
Share your form instantly
Email, fax, or share your including suburb and lot form via URL. You can also download, print, or export forms to your preferred cloud storage service.
Editing including suburb and lot online
To use our professional PDF editor, follow these steps:
1
Log in to account. Click on Start Free Trial and sign up a profile if you don't have one yet.
2
Upload a file. Select Add New on your Dashboard and upload a file from your device or import it from the cloud, online, or internal mail. Then click Edit.
3
Edit including suburb and lot. Replace text, adding objects, rearranging pages, and more. Then select the Documents tab to combine, divide, lock or unlock the file.
4
Get your file. Select the name of your file in the docs list and choose your preferred exporting method. You can download it as a PDF, save it in another format, send it by email, or transfer it to the cloud.
It's easier to work with documents with pdfFiller than you can have believed. You can sign up for an account to see for yourself.
Uncompromising security for your PDF editing and eSignature needs
Your private information is safe with pdfFiller. We employ end-to-end encryption, secure cloud storage, and advanced access control to protect your documents and maintain regulatory compliance.
How to fill out including suburb and lot
How to fill out including suburb and lot
01
To fill out including suburb and lot, follow these steps:
02
Start by locating the suburb and lot details in the form or document you are filling out.
03
Enter the suburb name in the designated field. Make sure to spell it correctly.
04
In the lot field, provide the specific lot number assigned to the property or land you are referring to.
05
Double-check your entries to ensure accuracy and completeness.
06
Once you have filled out all the required information, proceed to submit or save the document as instructed.
Who needs including suburb and lot?
01
Anyone who is filling out a form or document requiring the inclusion of suburb and lot information needs to provide these details.
02
This could include individuals purchasing or selling property, individuals applying for permits or licenses, local authorities maintaining records, surveyors, or any other party involved in property-related transactions or documentation.
03
The requirement for including suburb and lot details may vary depending on the specific form or purpose.
Fill
form
: Try Risk Free
For pdfFiller’s FAQs
Below is a list of the most common customer questions. If you can’t find an answer to your question, please don’t hesitate to reach out to us.
How do I make changes in including suburb and lot?
The editing procedure is simple with pdfFiller. Open your including suburb and lot in the editor, which is quite user-friendly. You may use it to blackout, redact, write, and erase text, add photos, draw arrows and lines, set sticky notes and text boxes, and much more.
How do I fill out including suburb and lot using my mobile device?
Use the pdfFiller mobile app to fill out and sign including suburb and lot. Visit our website (https://edit-pdf-ios-android.pdffiller.com/) to learn more about our mobile applications, their features, and how to get started.
How do I edit including suburb and lot on an Android device?
The pdfFiller app for Android allows you to edit PDF files like including suburb and lot. Mobile document editing, signing, and sending. Install the app to ease document management anywhere.
What is including suburb and lot?
Including suburb and lot refers to providing information about the location of a property, including details about the neighborhood and specific land parcel.
Who is required to file including suburb and lot?
Property owners or their authorized representatives are required to file including suburb and lot.
How to fill out including suburb and lot?
Including suburb and lot can be filled out by providing details about the property location, such as the suburb, lot number, and any other relevant information.
What is the purpose of including suburb and lot?
The purpose of including suburb and lot is to accurately identify the location of a property for tax or legal purposes.
What information must be reported on including suburb and lot?
Information such as the suburb name, lot number, street address, and any other relevant details about the property location must be reported on including suburb and lot.
Fill out your including suburb and lot online with pdfFiller!
pdfFiller is an end-to-end solution for managing, creating, and editing documents and forms in the cloud. Save time and hassle by preparing your tax forms online.
Including Suburb And Lot is not the form you're looking for?Search for another form here.
Relevant keywords
Related Forms
If you believe that this page should be taken down, please follow our DMCA take down process
here
.
This form may include fields for payment information. Data entered in these fields is not covered by PCI DSS compliance.