Get the free Including suburb and 21 King Street, Essendon VIC 3040
Show details
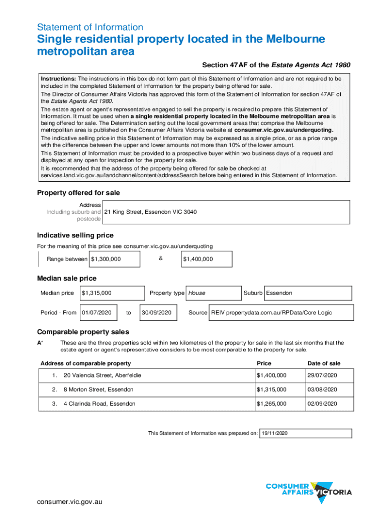
Statement of InformationSingle residential property located in the Melbourne metropolitan area Section 47AF of the Estate Agents Act 1980 Instructions: The instructions in this box do not form part
We are not affiliated with any brand or entity on this form
Get, Create, Make and Sign including suburb and 21
Edit your including suburb and 21 form online
Type text, complete fillable fields, insert images, highlight or blackout data for discretion, add comments, and more.
Add your legally-binding signature
Draw or type your signature, upload a signature image, or capture it with your digital camera.
Share your form instantly
Email, fax, or share your including suburb and 21 form via URL. You can also download, print, or export forms to your preferred cloud storage service.
How to edit including suburb and 21 online
Here are the steps you need to follow to get started with our professional PDF editor:
1
Set up an account. If you are a new user, click Start Free Trial and establish a profile.
2
Simply add a document. Select Add New from your Dashboard and import a file into the system by uploading it from your device or importing it via the cloud, online, or internal mail. Then click Begin editing.
3
Edit including suburb and 21. Rearrange and rotate pages, add new and changed texts, add new objects, and use other useful tools. When you're done, click Done. You can use the Documents tab to merge, split, lock, or unlock your files.
4
Get your file. Select your file from the documents list and pick your export method. You may save it as a PDF, email it, or upload it to the cloud.
With pdfFiller, it's always easy to work with documents.
Uncompromising security for your PDF editing and eSignature needs
Your private information is safe with pdfFiller. We employ end-to-end encryption, secure cloud storage, and advanced access control to protect your documents and maintain regulatory compliance.
How to fill out including suburb and 21
How to fill out including suburb and 21
01
To fill out including suburb and 21, follow these steps:
02
Start by entering your personal information such as name, address, and contact details.
03
Look for the section where you need to input your suburb and 21.
04
Fill in the suburb field with the name of your suburb or locality.
05
In the field for 21, input the number '21'.
06
Double-check all the information you have entered to ensure accuracy.
07
Complete any other required fields or sections as per the instructions provided.
08
Once you are satisfied with your entries, click on the submit button or follow the appropriate procedure to submit the form.
09
Wait for confirmation or acknowledgement of your submission.
10
Keep a copy of the filled-out form for your reference or as required by the relevant organization or agency.
Who needs including suburb and 21?
01
Individuals or entities who require including suburb and 21 may include:
02
- Residents filling out an address form that requests their suburb and 21.
03
- Participants of an event or program where the suburb and 21 are necessary for identification or registration purposes.
04
- Individuals completing a survey or questionnaire that asks for their suburb and 21 for demographic analysis or location-specific data.
05
- Organizations or businesses collecting address information that includes suburb and 21 for record-keeping or communication purposes.
06
- Any other scenario or form where the inclusion of suburb and 21 is required based on specific requirements or regulations.
Fill
form
: Try Risk Free
For pdfFiller’s FAQs
Below is a list of the most common customer questions. If you can’t find an answer to your question, please don’t hesitate to reach out to us.
How can I get including suburb and 21?
The premium version of pdfFiller gives you access to a huge library of fillable forms (more than 25 million fillable templates). You can download, fill out, print, and sign them all. State-specific including suburb and 21 and other forms will be easy to find in the library. Find the template you need and use advanced editing tools to make it your own.
How do I make edits in including suburb and 21 without leaving Chrome?
Install the pdfFiller Chrome Extension to modify, fill out, and eSign your including suburb and 21, which you can access right from a Google search page. Fillable documents without leaving Chrome on any internet-connected device.
How do I edit including suburb and 21 on an Android device?
With the pdfFiller Android app, you can edit, sign, and share including suburb and 21 on your mobile device from any place. All you need is an internet connection to do this. Keep your documents in order from anywhere with the help of the app!
What is including suburb and 21?
Including suburb and 21 refers to a specific form or document that includes details about a suburban area and the number 21.
Who is required to file including suburb and 21?
Individuals or entities who reside or operate within the specified suburban area and are related to the number 21 may be required to file including suburb and 21.
How to fill out including suburb and 21?
To fill out including suburb and 21, one must provide accurate information about the suburban area and the number 21 as requested on the form.
What is the purpose of including suburb and 21?
The purpose of including suburb and 21 is to gather necessary information related to the specified suburban area and the number 21 for reporting or regulatory purposes.
What information must be reported on including suburb and 21?
Information such as demographics of the suburban area, activities related to the number 21, and any other relevant details may need to be reported on including suburb and 21.
Fill out your including suburb and 21 online with pdfFiller!
pdfFiller is an end-to-end solution for managing, creating, and editing documents and forms in the cloud. Save time and hassle by preparing your tax forms online.
Including Suburb And 21 is not the form you're looking for?Search for another form here.
Relevant keywords
Related Forms
If you believe that this page should be taken down, please follow our DMCA take down process
here
.
This form may include fields for payment information. Data entered in these fields is not covered by PCI DSS compliance.