
Get the free Including suburb and 142 Beach Street, Port Melbourne
Show details
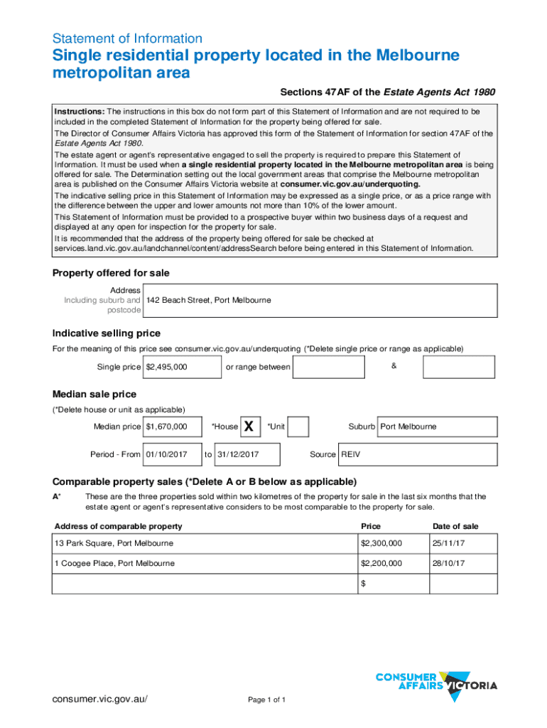
Statement of InformationSingle residential property located in the Melbourne metropolitan area Sections 47AF of the Estate Agents Act 1980 Instructions: The instructions in this box do not form part
We are not affiliated with any brand or entity on this form
Get, Create, Make and Sign including suburb and 142

Edit your including suburb and 142 form online
Type text, complete fillable fields, insert images, highlight or blackout data for discretion, add comments, and more.

Add your legally-binding signature
Draw or type your signature, upload a signature image, or capture it with your digital camera.

Share your form instantly
Email, fax, or share your including suburb and 142 form via URL. You can also download, print, or export forms to your preferred cloud storage service.
Editing including suburb and 142 online
Use the instructions below to start using our professional PDF editor:
1
Log in. Click Start Free Trial and create a profile if necessary.
2
Upload a document. Select Add New on your Dashboard and transfer a file into the system in one of the following ways: by uploading it from your device or importing from the cloud, web, or internal mail. Then, click Start editing.
3
Edit including suburb and 142. Rearrange and rotate pages, add new and changed texts, add new objects, and use other useful tools. When you're done, click Done. You can use the Documents tab to merge, split, lock, or unlock your files.
4
Get your file. Select your file from the documents list and pick your export method. You may save it as a PDF, email it, or upload it to the cloud.
It's easier to work with documents with pdfFiller than you could have believed. You may try it out for yourself by signing up for an account.
Uncompromising security for your PDF editing and eSignature needs
Your private information is safe with pdfFiller. We employ end-to-end encryption, secure cloud storage, and advanced access control to protect your documents and maintain regulatory compliance.
How to fill out including suburb and 142

How to fill out including suburb and 142
01
To fill out including suburb and 142, follow these steps:
02
Start by entering your name and contact information in the designated fields.
03
Move on to the address section and enter the suburb name in the appropriate field.
04
Next, enter the number '142' in the address field.
05
Continue filling out the rest of the form as required, providing any additional information requested.
06
Once you have completed all the necessary fields, review the form for accuracy and make any necessary changes.
07
Finally, submit the filled-out form as directed.
Who needs including suburb and 142?
01
Anyone who requires specific information about a location in suburb including 142 may need to fill out this form. This could include individuals, businesses, organizations, or government agencies who need to record or obtain data regarding this address.
Fill
form
: Try Risk Free
For pdfFiller’s FAQs
Below is a list of the most common customer questions. If you can’t find an answer to your question, please don’t hesitate to reach out to us.
How can I send including suburb and 142 to be eSigned by others?
Once your including suburb and 142 is complete, you can securely share it with recipients and gather eSignatures with pdfFiller in just a few clicks. You may transmit a PDF by email, text message, fax, USPS mail, or online notarization directly from your account. Make an account right now and give it a go.
How do I edit including suburb and 142 online?
pdfFiller not only allows you to edit the content of your files but fully rearrange them by changing the number and sequence of pages. Upload your including suburb and 142 to the editor and make any required adjustments in a couple of clicks. The editor enables you to blackout, type, and erase text in PDFs, add images, sticky notes and text boxes, and much more.
How do I edit including suburb and 142 straight from my smartphone?
The best way to make changes to documents on a mobile device is to use pdfFiller's apps for iOS and Android. You may get them from the Apple Store and Google Play. Learn more about the apps here. To start editing including suburb and 142, you need to install and log in to the app.
What is including suburb and 142?
Including suburb and 142 typically refers to providing detailed information about a specific location or area along with the numerical value 142.
Who is required to file including suburb and 142?
Individuals or entities that have relevant information about a particular location or area, along with the number 142, may be required to file including suburb and 142.
How to fill out including suburb and 142?
In order to fill out including suburb and 142, you may need to provide detailed information about the suburb or location in question, along with the specific numerical value of 142.
What is the purpose of including suburb and 142?
The purpose of including suburb and 142 is to ensure accurate reporting and documentation of information related to a specific location or area, along with the inclusion of the number 142 for clarity.
What information must be reported on including suburb and 142?
The information that must be reported on including suburb and 142 typically includes details about a specific location or area, along with the numerical value 142 for identification purposes.
Fill out your including suburb and 142 online with pdfFiller!
pdfFiller is an end-to-end solution for managing, creating, and editing documents and forms in the cloud. Save time and hassle by preparing your tax forms online.

Including Suburb And 142 is not the form you're looking for?Search for another form here.
Relevant keywords
Related Forms
If you believe that this page should be taken down, please follow our DMCA take down process
here
.
This form may include fields for payment information. Data entered in these fields is not covered by PCI DSS compliance.