
Get the free Including suburb and 70 Ingles Street, Port Melbourne
Show details
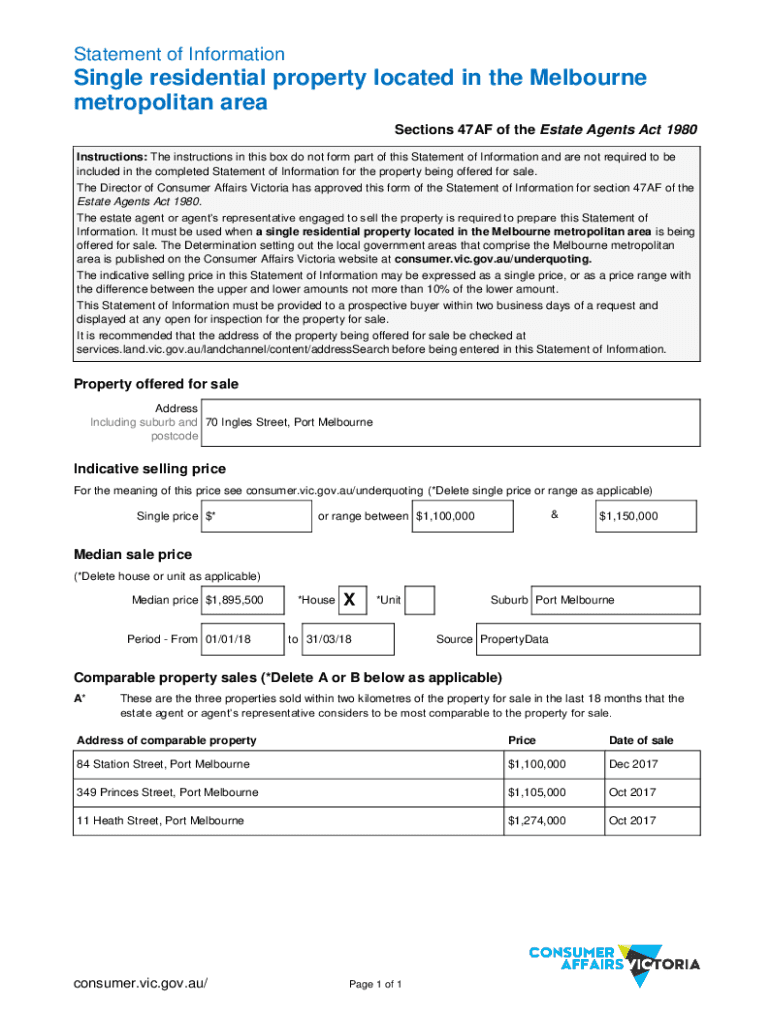
Statement of InformationSingle residential property located in the Melbourne metropolitan area Sections 47AF of the Estate Agents Act 1980 Instructions: The instructions in this box do not form part
We are not affiliated with any brand or entity on this form
Get, Create, Make and Sign including suburb and 70

Edit your including suburb and 70 form online
Type text, complete fillable fields, insert images, highlight or blackout data for discretion, add comments, and more.

Add your legally-binding signature
Draw or type your signature, upload a signature image, or capture it with your digital camera.

Share your form instantly
Email, fax, or share your including suburb and 70 form via URL. You can also download, print, or export forms to your preferred cloud storage service.
How to edit including suburb and 70 online
Here are the steps you need to follow to get started with our professional PDF editor:
1
Create an account. Begin by choosing Start Free Trial and, if you are a new user, establish a profile.
2
Upload a document. Select Add New on your Dashboard and transfer a file into the system in one of the following ways: by uploading it from your device or importing from the cloud, web, or internal mail. Then, click Start editing.
3
Edit including suburb and 70. Rearrange and rotate pages, add new and changed texts, add new objects, and use other useful tools. When you're done, click Done. You can use the Documents tab to merge, split, lock, or unlock your files.
4
Save your file. Select it in the list of your records. Then, move the cursor to the right toolbar and choose one of the available exporting methods: save it in multiple formats, download it as a PDF, send it by email, or store it in the cloud.
With pdfFiller, dealing with documents is always straightforward.
Uncompromising security for your PDF editing and eSignature needs
Your private information is safe with pdfFiller. We employ end-to-end encryption, secure cloud storage, and advanced access control to protect your documents and maintain regulatory compliance.
How to fill out including suburb and 70

How to fill out including suburb and 70
01
To fill out including suburb and 70, follow these steps:
02
Start by writing the street address, including the house number and street name.
03
Next, write the name of the suburb or neighborhood where the address is located.
04
After that, write the postal code or zip code for the area, if applicable.
05
Finally, include the number 70 in the address, specifically indicating its purpose or meaning.
06
By following these steps, you can accurately fill out an address that includes the suburb and the number 70.
Who needs including suburb and 70?
01
Anyone who requires an address that includes the suburb and the number 70 may need this information.
02
This could include individuals who are sending mail or packages to a specific location,
03
organizing events or gatherings at a specific address, or simply providing accurate information for any other purpose.
04
The need for including the suburb and the number 70 may vary depending on the specific context or requirements of the situation.
Fill
form
: Try Risk Free
For pdfFiller’s FAQs
Below is a list of the most common customer questions. If you can’t find an answer to your question, please don’t hesitate to reach out to us.
How do I modify my including suburb and 70 in Gmail?
It's easy to use pdfFiller's Gmail add-on to make and edit your including suburb and 70 and any other documents you get right in your email. You can also eSign them. Take a look at the Google Workspace Marketplace and get pdfFiller for Gmail. Get rid of the time-consuming steps and easily manage your documents and eSignatures with the help of an app.
How can I get including suburb and 70?
The premium subscription for pdfFiller provides you with access to an extensive library of fillable forms (over 25M fillable templates) that you can download, fill out, print, and sign. You won’t have any trouble finding state-specific including suburb and 70 and other forms in the library. Find the template you need and customize it using advanced editing functionalities.
Can I edit including suburb and 70 on an Android device?
With the pdfFiller mobile app for Android, you may make modifications to PDF files such as including suburb and 70. Documents may be edited, signed, and sent directly from your mobile device. Install the app and you'll be able to manage your documents from anywhere.
What is including suburb and 70?
Including Suburb and 70 refers to specific forms or reports related to tax filings that may pertain to certain geographical areas or demographic data.
Who is required to file including suburb and 70?
Individuals or businesses that meet specific income or operational criteria in the relevant suburb may be required to file Including Suburb and 70.
How to fill out including suburb and 70?
To fill out Including Suburb and 70, follow the instructions provided on the form, ensuring all required personal and financial information is accurately entered.
What is the purpose of including suburb and 70?
The purpose of Including Suburb and 70 is to collect necessary financial and demographic information for tax assessment and local governance.
What information must be reported on including suburb and 70?
The report must typically include personal identification, income details, expenses, and any relevant geographical identifiers.
Fill out your including suburb and 70 online with pdfFiller!
pdfFiller is an end-to-end solution for managing, creating, and editing documents and forms in the cloud. Save time and hassle by preparing your tax forms online.

Including Suburb And 70 is not the form you're looking for?Search for another form here.
Relevant keywords
Related Forms
If you believe that this page should be taken down, please follow our DMCA take down process
here
.
This form may include fields for payment information. Data entered in these fields is not covered by PCI DSS compliance.