Get the free Including suburb and 248 Nott Street, Port Melbourne
Show details
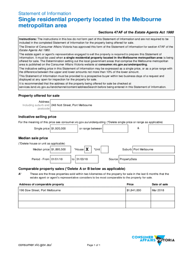
Statement of InformationSingle residential property located in the Melbourne metropolitan area Sections 47AF of the Estate Agents Act 1980 Instructions: The instructions in this box do not form part
We are not affiliated with any brand or entity on this form
Get, Create, Make and Sign including suburb and 248
Edit your including suburb and 248 form online
Type text, complete fillable fields, insert images, highlight or blackout data for discretion, add comments, and more.
Add your legally-binding signature
Draw or type your signature, upload a signature image, or capture it with your digital camera.
Share your form instantly
Email, fax, or share your including suburb and 248 form via URL. You can also download, print, or export forms to your preferred cloud storage service.
Editing including suburb and 248 online
To use our professional PDF editor, follow these steps:
1
Log in to your account. Click on Start Free Trial and sign up a profile if you don't have one yet.
2
Upload a file. Select Add New on your Dashboard and upload a file from your device or import it from the cloud, online, or internal mail. Then click Edit.
3
Edit including suburb and 248. Add and change text, add new objects, move pages, add watermarks and page numbers, and more. Then click Done when you're done editing and go to the Documents tab to merge or split the file. If you want to lock or unlock the file, click the lock or unlock button.
4
Save your file. Choose it from the list of records. Then, shift the pointer to the right toolbar and select one of the several exporting methods: save it in multiple formats, download it as a PDF, email it, or save it to the cloud.
pdfFiller makes working with documents easier than you could ever imagine. Try it for yourself by creating an account!
Uncompromising security for your PDF editing and eSignature needs
Your private information is safe with pdfFiller. We employ end-to-end encryption, secure cloud storage, and advanced access control to protect your documents and maintain regulatory compliance.
How to fill out including suburb and 248
How to fill out including suburb and 248
01
To fill out the form including suburb and 248, follow these steps:
02
Start by entering your personal information such as your name, address, and contact details.
03
Look for the field that asks for your suburb and enter the name of the suburb where you reside.
04
Find the section that requires the code '248' and input it in the designated area.
05
Double-check all the information you have entered to ensure accuracy and completeness.
06
Finally, submit the form either online or by mail, depending on the specified instructions.
Who needs including suburb and 248?
01
Individuals who require including suburb and 248 vary depending on the context. Some examples may include:
02
- Residents filling out official forms that specifically request the suburb and code '248'.
03
- Business owners or entrepreneurs registering their establishments in a particular suburb with code '248'.
04
- Survey participants or researchers gathering data for a study focusing on the mentioned suburb and code '248'.
05
- Local government agencies or organizations requiring inclusion of the suburb and code '248' for administrative purposes.
06
It is important to refer to the specific form or situation where the request for suburb and code '248' is made to determine the exact individuals who need to provide this information.
Fill
form
: Try Risk Free
For pdfFiller’s FAQs
Below is a list of the most common customer questions. If you can’t find an answer to your question, please don’t hesitate to reach out to us.
How do I complete including suburb and 248 online?
With pdfFiller, you may easily complete and sign including suburb and 248 online. It lets you modify original PDF material, highlight, blackout, erase, and write text anywhere on a page, legally eSign your document, and do a lot more. Create a free account to handle professional papers online.
How do I edit including suburb and 248 online?
pdfFiller not only allows you to edit the content of your files but fully rearrange them by changing the number and sequence of pages. Upload your including suburb and 248 to the editor and make any required adjustments in a couple of clicks. The editor enables you to blackout, type, and erase text in PDFs, add images, sticky notes and text boxes, and much more.
How do I edit including suburb and 248 on an iOS device?
You can. Using the pdfFiller iOS app, you can edit, distribute, and sign including suburb and 248. Install it in seconds at the Apple Store. The app is free, but you must register to buy a subscription or start a free trial.
What is including suburb and 248?
Including suburb and 248 refers to including detailed information about the specific suburb and the relevant postal code (248) in the relevant documentation or forms.
Who is required to file including suburb and 248?
Individuals or entities who are residing or operating within the specified suburb with the postal code 248 are required to include such details in their filings.
How to fill out including suburb and 248?
One can fill out the suburb and postal code section by providing the accurate details of the specific suburb and the postal code in the designated area of the form or documentation.
What is the purpose of including suburb and 248?
Including suburb and 248 helps in accurately identifying the location of the individual or entity, ensuring that correspondence or deliveries reach the intended address.
What information must be reported on including suburb and 248?
The information required to be reported includes the name of the suburb and the specific postal code (248) associated with the location.
Fill out your including suburb and 248 online with pdfFiller!
pdfFiller is an end-to-end solution for managing, creating, and editing documents and forms in the cloud. Save time and hassle by preparing your tax forms online.
Including Suburb And 248 is not the form you're looking for?Search for another form here.
Relevant keywords
Related Forms
If you believe that this page should be taken down, please follow our DMCA take down process
here
.
This form may include fields for payment information. Data entered in these fields is not covered by PCI DSS compliance.