
Get the free Including suburb or 32 Leawarra Way Clifton Springs 3222
Show details
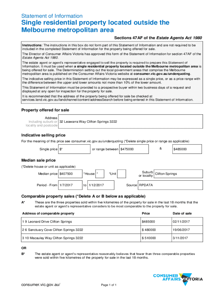
Statement of InformationSingle residential property located outside the Melbourne metropolitan area Sections 47AF of the Estate Agents Act 1980 Instructions: The instructions in this box do not form
We are not affiliated with any brand or entity on this form
Get, Create, Make and Sign including suburb or 32

Edit your including suburb or 32 form online
Type text, complete fillable fields, insert images, highlight or blackout data for discretion, add comments, and more.

Add your legally-binding signature
Draw or type your signature, upload a signature image, or capture it with your digital camera.

Share your form instantly
Email, fax, or share your including suburb or 32 form via URL. You can also download, print, or export forms to your preferred cloud storage service.
How to edit including suburb or 32 online
To use our professional PDF editor, follow these steps:
1
Create an account. Begin by choosing Start Free Trial and, if you are a new user, establish a profile.
2
Upload a document. Select Add New on your Dashboard and transfer a file into the system in one of the following ways: by uploading it from your device or importing from the cloud, web, or internal mail. Then, click Start editing.
3
Edit including suburb or 32. Add and replace text, insert new objects, rearrange pages, add watermarks and page numbers, and more. Click Done when you are finished editing and go to the Documents tab to merge, split, lock or unlock the file.
4
Save your file. Select it in the list of your records. Then, move the cursor to the right toolbar and choose one of the available exporting methods: save it in multiple formats, download it as a PDF, send it by email, or store it in the cloud.
With pdfFiller, it's always easy to work with documents. Check it out!
Uncompromising security for your PDF editing and eSignature needs
Your private information is safe with pdfFiller. We employ end-to-end encryption, secure cloud storage, and advanced access control to protect your documents and maintain regulatory compliance.
How to fill out including suburb or 32

How to fill out including suburb or 32
01
To fill out including suburb or 32, follow these steps:
02
Start by entering your city or town in the appropriate field.
03
Next, locate the field that requests your suburb or 32.
04
Enter the name of your suburb or 32 as per its official designation.
05
Double-check the accuracy of the suburb or 32 you have entered.
06
If everything is correct, proceed to fill out the rest of the form.
07
Submit the completed form.
Who needs including suburb or 32?
01
Including suburb or 32 is necessary for individuals who:
02
- Want to provide their exact residential location for official purposes.
03
- Need to accurately identify their suburb or 32 when filling out forms.
04
- Are required to include their suburb or 32 as part of an address verification process.
Fill
form
: Try Risk Free
For pdfFiller’s FAQs
Below is a list of the most common customer questions. If you can’t find an answer to your question, please don’t hesitate to reach out to us.
How can I modify including suburb or 32 without leaving Google Drive?
By integrating pdfFiller with Google Docs, you can streamline your document workflows and produce fillable forms that can be stored directly in Google Drive. Using the connection, you will be able to create, change, and eSign documents, including including suburb or 32, all without having to leave Google Drive. Add pdfFiller's features to Google Drive and you'll be able to handle your documents more effectively from any device with an internet connection.
Where do I find including suburb or 32?
It’s easy with pdfFiller, a comprehensive online solution for professional document management. Access our extensive library of online forms (over 25M fillable forms are available) and locate the including suburb or 32 in a matter of seconds. Open it right away and start customizing it using advanced editing features.
Can I create an electronic signature for signing my including suburb or 32 in Gmail?
Create your eSignature using pdfFiller and then eSign your including suburb or 32 immediately from your email with pdfFiller's Gmail add-on. To keep your signatures and signed papers, you must create an account.
What is including suburb or 32?
Including suburb or 32 refers to a specific form or document that includes information about suburbs or postal codes.
Who is required to file including suburb or 32?
Including suburb or 32 must be filed by individuals or entities who need to report information related to suburbs or postal codes.
How to fill out including suburb or 32?
To fill out including suburb or 32, one must provide accurate information about suburbs or postal codes as required by the form.
What is the purpose of including suburb or 32?
The purpose of including suburb or 32 is to gather and report information about suburbs or postal codes for regulatory or informational purposes.
What information must be reported on including suburb or 32?
On including suburb or 32, one must report details such as suburb names, postal codes, and any other relevant information.
Fill out your including suburb or 32 online with pdfFiller!
pdfFiller is an end-to-end solution for managing, creating, and editing documents and forms in the cloud. Save time and hassle by preparing your tax forms online.

Including Suburb Or 32 is not the form you're looking for?Search for another form here.
Relevant keywords
Related Forms
If you believe that this page should be taken down, please follow our DMCA take down process
here
.
This form may include fields for payment information. Data entered in these fields is not covered by PCI DSS compliance.