
Get the free Download PDF file Type III Decision Appeal Fee Waiver Request for ...
Show details
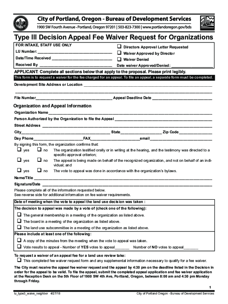
Type III Decision Appeal Fee Waiver Request for Organizations FOR INTAKE, STAFF USE ONLY LU Number: Date/Time Received By Directors Approval Letter Requested Waiver Approved by Director Waiver Denigrate
We are not affiliated with any brand or entity on this form
Get, Create, Make and Sign download pdf file type

Edit your download pdf file type form online
Type text, complete fillable fields, insert images, highlight or blackout data for discretion, add comments, and more.

Add your legally-binding signature
Draw or type your signature, upload a signature image, or capture it with your digital camera.

Share your form instantly
Email, fax, or share your download pdf file type form via URL. You can also download, print, or export forms to your preferred cloud storage service.
Editing download pdf file type online
Follow the guidelines below to benefit from the PDF editor's expertise:
1
Log in. Click Start Free Trial and create a profile if necessary.
2
Prepare a file. Use the Add New button. Then upload your file to the system from your device, importing it from internal mail, the cloud, or by adding its URL.
3
Edit download pdf file type. Add and replace text, insert new objects, rearrange pages, add watermarks and page numbers, and more. Click Done when you are finished editing and go to the Documents tab to merge, split, lock or unlock the file.
4
Save your file. Select it from your records list. Then, click the right toolbar and select one of the various exporting options: save in numerous formats, download as PDF, email, or cloud.
pdfFiller makes working with documents easier than you could ever imagine. Register for an account and see for yourself!
Uncompromising security for your PDF editing and eSignature needs
Your private information is safe with pdfFiller. We employ end-to-end encryption, secure cloud storage, and advanced access control to protect your documents and maintain regulatory compliance.
How to fill out download pdf file type

How to fill out download pdf file type
01
Open the website or platform where the download link for the PDF file is provided.
02
Locate the download link or button for the PDF file. It is often labeled as 'Download PDF' or indicated by a PDF icon.
03
Click on the download link or button to initiate the download process.
04
A dialog box may appear asking you to choose a location on your computer to save the PDF file. Select a desired location and click 'Save' or 'OK'.
05
The PDF file will start to download and you can monitor the progress in your browser's download manager.
06
Once the download is complete, navigate to the location where you saved the PDF file on your computer.
07
Double-click on the PDF file to open it using a PDF reader application such as Adobe Acrobat Reader or any other compatible software.
Who needs download pdf file type?
01
Anyone who wants to access or view a document in a universally compatible format can benefit from downloading PDF files.
02
Professionals who need to share documents while preserving the formatting and layout choose PDF files.
03
Students and researchers often download PDF files to access academic papers, research studies, or e-books.
04
Businesses and organizations may provide downloadable PDF files on their websites for users to access important documents, brochures, or forms.
05
Government agencies often provide PDF files for official documents, application forms, or legal paperwork.
Fill
form
: Try Risk Free
For pdfFiller’s FAQs
Below is a list of the most common customer questions. If you can’t find an answer to your question, please don’t hesitate to reach out to us.
How can I edit download pdf file type on a smartphone?
The pdfFiller mobile applications for iOS and Android are the easiest way to edit documents on the go. You may get them from the Apple Store and Google Play. More info about the applications here. Install and log in to edit download pdf file type.
Can I edit download pdf file type on an iOS device?
Create, edit, and share download pdf file type from your iOS smartphone with the pdfFiller mobile app. Installing it from the Apple Store takes only a few seconds. You may take advantage of a free trial and select a subscription that meets your needs.
How do I fill out download pdf file type on an Android device?
On Android, use the pdfFiller mobile app to finish your download pdf file type. Adding, editing, deleting text, signing, annotating, and more are all available with the app. All you need is a smartphone and internet.
What is download pdf file type?
Download PDF file type is a type of file format that allows for documents to be downloaded and viewed in a PDF reader.
Who is required to file download pdf file type?
Anyone who wants to share a document in a format that can be easily downloaded and viewed in a PDF reader.
How to fill out download pdf file type?
To fill out a download PDF file type, the document needs to be saved in a PDF format using a PDF editor or converter.
What is the purpose of download pdf file type?
The purpose of download PDF file type is to provide a secure and easily accessible way to share documents.
What information must be reported on download pdf file type?
The information included in a download PDF file type may vary depending on the document being shared.
Fill out your download pdf file type online with pdfFiller!
pdfFiller is an end-to-end solution for managing, creating, and editing documents and forms in the cloud. Save time and hassle by preparing your tax forms online.

Download Pdf File Type is not the form you're looking for?Search for another form here.
Relevant keywords
Related Forms
If you believe that this page should be taken down, please follow our DMCA take down process
here
.
This form may include fields for payment information. Data entered in these fields is not covered by PCI DSS compliance.