Get the free Electric School Bus and Charging Infrastructure
Show details
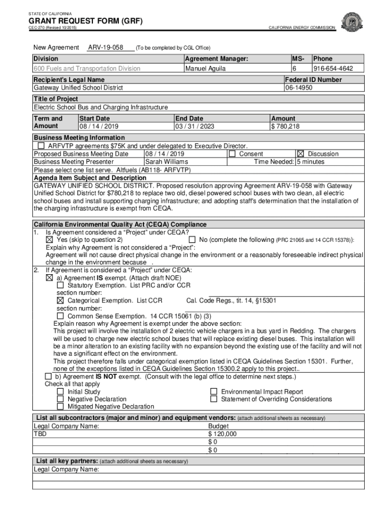
STATE OF CALIFORNIAGRANT REQUEST FORM (GRC) CEC270 (Revised 10/2015)New AgreementCALIFORNIA ENERGY COMMISSIONARV19058(To be completed by CGL Office)Division 600 Fuels and Transportation DivisionAgreement
We are not affiliated with any brand or entity on this form
Get, Create, Make and Sign electric school bus and
Edit your electric school bus and form online
Type text, complete fillable fields, insert images, highlight or blackout data for discretion, add comments, and more.
Add your legally-binding signature
Draw or type your signature, upload a signature image, or capture it with your digital camera.
Share your form instantly
Email, fax, or share your electric school bus and form via URL. You can also download, print, or export forms to your preferred cloud storage service.
Editing electric school bus and online
To use our professional PDF editor, follow these steps:
1
Log in to your account. Click on Start Free Trial and register a profile if you don't have one.
2
Upload a file. Select Add New on your Dashboard and upload a file from your device or import it from the cloud, online, or internal mail. Then click Edit.
3
Edit electric school bus and. Add and change text, add new objects, move pages, add watermarks and page numbers, and more. Then click Done when you're done editing and go to the Documents tab to merge or split the file. If you want to lock or unlock the file, click the lock or unlock button.
4
Save your file. Select it in the list of your records. Then, move the cursor to the right toolbar and choose one of the available exporting methods: save it in multiple formats, download it as a PDF, send it by email, or store it in the cloud.
It's easier to work with documents with pdfFiller than you can have believed. You may try it out for yourself by signing up for an account.
Uncompromising security for your PDF editing and eSignature needs
Your private information is safe with pdfFiller. We employ end-to-end encryption, secure cloud storage, and advanced access control to protect your documents and maintain regulatory compliance.
How to fill out electric school bus and
How to fill out electric school bus and
01
To fill out an electric school bus, follow these steps:
02
- Park the bus close to a designated charging station.
03
- Make sure the bus is turned off and the handbrake is engaged.
04
- Open the charging port on the bus.
05
- Connect the charging cable from the charging station to the port on the bus.
06
- Ensure that the connection is secure and well-fitted.
07
- Start the charging process by following the instructions on the charging station.
08
- Monitor the charging progress to ensure it is functioning correctly.
09
- Once the bus is fully charged, disconnect the charging cable and close the charging port.
10
- Verify that the bus is ready for use before turning it on and operating it.
Who needs electric school bus and?
01
Many schools and educational institutions can benefit from using electric school buses, including:
02
- School districts looking to reduce their carbon footprint and promote sustainability.
03
- Communities and organizations that prioritize clean and eco-friendly transportation options.
04
- Schools located in areas with stringent air quality regulations.
05
- Organizations focused on providing safe and environmentally friendly transportation for students.
06
- Educators and parents who support renewable energy and want to teach children about its importance.
Fill
form
: Try Risk Free
For pdfFiller’s FAQs
Below is a list of the most common customer questions. If you can’t find an answer to your question, please don’t hesitate to reach out to us.
How can I send electric school bus and for eSignature?
Once you are ready to share your electric school bus and, you can easily send it to others and get the eSigned document back just as quickly. Share your PDF by email, fax, text message, or USPS mail, or notarize it online. You can do all of this without ever leaving your account.
How do I edit electric school bus and straight from my smartphone?
The pdfFiller mobile applications for iOS and Android are the easiest way to edit documents on the go. You may get them from the Apple Store and Google Play. More info about the applications here. Install and log in to edit electric school bus and.
How do I fill out electric school bus and on an Android device?
On an Android device, use the pdfFiller mobile app to finish your electric school bus and. The program allows you to execute all necessary document management operations, such as adding, editing, and removing text, signing, annotating, and more. You only need a smartphone and an internet connection.
What is electric school bus and?
Electric school bus is a type of school bus that is powered by electricity instead of traditional fuels like diesel or gasoline.
Who is required to file electric school bus and?
School districts or transportation companies that operate electric school buses are required to file electric school bus data.
How to fill out electric school bus and?
Electric school bus data can be filled out electronically using the designated form provided by regulatory authorities.
What is the purpose of electric school bus and?
The purpose of electric school bus data is to track the usage, maintenance, and environmental impact of electric school buses.
What information must be reported on electric school bus and?
Information such as mileage, charging frequency, battery health, and any issues encountered must be reported on electric school bus data.
Fill out your electric school bus and online with pdfFiller!
pdfFiller is an end-to-end solution for managing, creating, and editing documents and forms in the cloud. Save time and hassle by preparing your tax forms online.
Electric School Bus And is not the form you're looking for?Search for another form here.
Relevant keywords
Related Forms
If you believe that this page should be taken down, please follow our DMCA take down process
here
.
This form may include fields for payment information. Data entered in these fields is not covered by PCI DSS compliance.