Get the free BUILDING DEPARTMENT BUILDING PERMIT APPLICATION 5851 MACKINAW ...
Show details
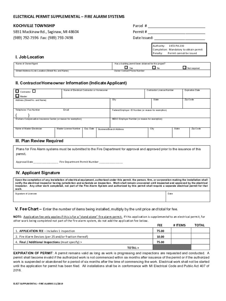
ELECTRICAL PERMIT SUPPLEMENTAL FIRE ALARM SYSTEMS ROCKVILLE TOWNSHIPParcel # Permit # Date Issued: 5851 Mackinaw Rd., Saginaw, MI 48604 (989) 7927596 Fax: (989) 7937498Authority: 1972 PA 230 Completion:
We are not affiliated with any brand or entity on this form
Get, Create, Make and Sign building department building permit
Edit your building department building permit form online
Type text, complete fillable fields, insert images, highlight or blackout data for discretion, add comments, and more.
Add your legally-binding signature
Draw or type your signature, upload a signature image, or capture it with your digital camera.
Share your form instantly
Email, fax, or share your building department building permit form via URL. You can also download, print, or export forms to your preferred cloud storage service.
Editing building department building permit online
In order to make advantage of the professional PDF editor, follow these steps below:
1
Create an account. Begin by choosing Start Free Trial and, if you are a new user, establish a profile.
2
Simply add a document. Select Add New from your Dashboard and import a file into the system by uploading it from your device or importing it via the cloud, online, or internal mail. Then click Begin editing.
3
Edit building department building permit. Rearrange and rotate pages, add new and changed texts, add new objects, and use other useful tools. When you're done, click Done. You can use the Documents tab to merge, split, lock, or unlock your files.
4
Get your file. Select the name of your file in the docs list and choose your preferred exporting method. You can download it as a PDF, save it in another format, send it by email, or transfer it to the cloud.
With pdfFiller, it's always easy to work with documents. Try it!
Uncompromising security for your PDF editing and eSignature needs
Your private information is safe with pdfFiller. We employ end-to-end encryption, secure cloud storage, and advanced access control to protect your documents and maintain regulatory compliance.
How to fill out building department building permit
How to fill out building department building permit
01
Gather all necessary documentation, including architectural plans, construction details, and specifications.
02
Complete the building permit application form, providing all required information such as project address, description of work, estimated construction cost, etc.
03
Submit the application form along with the required documents to the building department.
04
Pay the applicable fees for obtaining the building permit.
05
Wait for the building department to review and approve the permit application.
06
Once the permit is approved, obtain the building permit document.
07
Display the building permit at the construction site as required.
08
Adhere to all building codes, regulations, and requirements while carrying out the construction work.
09
Schedule and pass any necessary inspections during the construction process.
10
Upon completion of the construction, notify the building department for a final inspection.
11
Once the final inspection is passed, obtain the Certificate of Occupancy or final approval from the building department.
Who needs building department building permit?
01
Anyone who is planning to construct, alter, or demolish a building or structure typically needs a building department building permit. This includes homeowners, contractors, builders, and developers. The specific requirements and exemptions may vary based on local regulations and the nature of the construction project.
Fill
form
: Try Risk Free
For pdfFiller’s FAQs
Below is a list of the most common customer questions. If you can’t find an answer to your question, please don’t hesitate to reach out to us.
Can I create an eSignature for the building department building permit in Gmail?
It's easy to make your eSignature with pdfFiller, and then you can sign your building department building permit right from your Gmail inbox with the help of pdfFiller's add-on for Gmail. This is a very important point: You must sign up for an account so that you can save your signatures and signed documents.
Can I edit building department building permit on an iOS device?
Yes, you can. With the pdfFiller mobile app, you can instantly edit, share, and sign building department building permit on your iOS device. Get it at the Apple Store and install it in seconds. The application is free, but you will have to create an account to purchase a subscription or activate a free trial.
How do I complete building department building permit on an iOS device?
Install the pdfFiller iOS app. Log in or create an account to access the solution's editing features. Open your building department building permit by uploading it from your device or online storage. After filling in all relevant fields and eSigning if required, you may save or distribute the document.
What is building department building permit?
A building department building permit is a legal document issued by the local government agency authorizing the construction, renovation, or demolition of a building or structure.
Who is required to file building department building permit?
Property owners, contractors, or individuals planning to undertake construction, renovation, or demolition work are required to file a building department building permit.
How to fill out building department building permit?
The building department building permit can typically be filled out online or in person, and requires information about the project, property, contractors involved, and compliance with building codes.
What is the purpose of building department building permit?
The purpose of a building department building permit is to ensure that construction, renovation, or demolition projects comply with building codes, zoning regulations, and safety standards to protect public health and safety.
What information must be reported on building department building permit?
Information such as project details, property owner information, contractor details, building plans, and compliance with building codes must be reported on a building department building permit.
Fill out your building department building permit online with pdfFiller!
pdfFiller is an end-to-end solution for managing, creating, and editing documents and forms in the cloud. Save time and hassle by preparing your tax forms online.
Building Department Building Permit is not the form you're looking for?Search for another form here.
Relevant keywords
Related Forms
If you believe that this page should be taken down, please follow our DMCA take down process
here
.
This form may include fields for payment information. Data entered in these fields is not covered by PCI DSS compliance.