
Get the free Hydrant Meter Customer Agreement - City of Vancouver
Show details
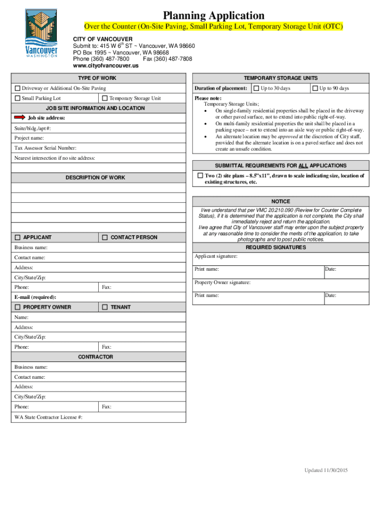
Planning Application Over the Counter (Onsite Paving, Small Parking Lot, Temporary Storage Unit (OTC) CITY OF VANCOUVER TH Submit to: 415 W 6 ST Vancouver, WA 98660 PO Box 1995 Vancouver, WA 98668
We are not affiliated with any brand or entity on this form
Get, Create, Make and Sign hydrant meter customer agreement

Edit your hydrant meter customer agreement form online
Type text, complete fillable fields, insert images, highlight or blackout data for discretion, add comments, and more.

Add your legally-binding signature
Draw or type your signature, upload a signature image, or capture it with your digital camera.

Share your form instantly
Email, fax, or share your hydrant meter customer agreement form via URL. You can also download, print, or export forms to your preferred cloud storage service.
Editing hydrant meter customer agreement online
Here are the steps you need to follow to get started with our professional PDF editor:
1
Set up an account. If you are a new user, click Start Free Trial and establish a profile.
2
Upload a file. Select Add New on your Dashboard and upload a file from your device or import it from the cloud, online, or internal mail. Then click Edit.
3
Edit hydrant meter customer agreement. Rearrange and rotate pages, add new and changed texts, add new objects, and use other useful tools. When you're done, click Done. You can use the Documents tab to merge, split, lock, or unlock your files.
4
Save your file. Select it from your list of records. Then, move your cursor to the right toolbar and choose one of the exporting options. You can save it in multiple formats, download it as a PDF, send it by email, or store it in the cloud, among other things.
pdfFiller makes dealing with documents a breeze. Create an account to find out!
Uncompromising security for your PDF editing and eSignature needs
Your private information is safe with pdfFiller. We employ end-to-end encryption, secure cloud storage, and advanced access control to protect your documents and maintain regulatory compliance.
How to fill out hydrant meter customer agreement

How to fill out hydrant meter customer agreement
01
Obtain the hydrant meter customer agreement form from the relevant water department or agency.
02
Read the agreement carefully, making sure you understand all the terms and conditions.
03
Fill out the form accurately, providing all the necessary information such as your name, contact details, and billing address.
04
Specify the duration for which you require the hydrant meter and provide any additional details or requirements.
05
Review the completed form to ensure there are no errors or omissions.
06
Sign and date the agreement.
07
Submit the filled-out hydrant meter customer agreement to the appropriate water department or agency.
08
Keep a copy of the agreement for your records.
Who needs hydrant meter customer agreement?
01
Anyone who wishes to use a hydrant meter for temporary water supply purposes needs to fill out a hydrant meter customer agreement. This may include construction companies, event organizers, or individuals who require water for non-permanent use.
Fill
form
: Try Risk Free
For pdfFiller’s FAQs
Below is a list of the most common customer questions. If you can’t find an answer to your question, please don’t hesitate to reach out to us.
How can I send hydrant meter customer agreement to be eSigned by others?
Once your hydrant meter customer agreement is ready, you can securely share it with recipients and collect eSignatures in a few clicks with pdfFiller. You can send a PDF by email, text message, fax, USPS mail, or notarize it online - right from your account. Create an account now and try it yourself.
How do I execute hydrant meter customer agreement online?
pdfFiller makes it easy to finish and sign hydrant meter customer agreement online. It lets you make changes to original PDF content, highlight, black out, erase, and write text anywhere on a page, legally eSign your form, and more, all from one place. Create a free account and use the web to keep track of professional documents.
How do I fill out hydrant meter customer agreement using my mobile device?
Use the pdfFiller mobile app to complete and sign hydrant meter customer agreement on your mobile device. Visit our web page (https://edit-pdf-ios-android.pdffiller.com/) to learn more about our mobile applications, the capabilities you’ll have access to, and the steps to take to get up and running.
What is hydrant meter customer agreement?
The hydrant meter customer agreement is a contract between a customer and a water utility company that allows the customer to use a hydrant meter to access water from a fire hydrant for construction or other purposes.
Who is required to file hydrant meter customer agreement?
Any customer who wishes to use a hydrant meter to access water from a fire hydrant is required to file a hydrant meter customer agreement.
How to fill out hydrant meter customer agreement?
To fill out a hydrant meter customer agreement, the customer must provide their contact information, the address where the hydrant meter will be used, and agree to the terms and conditions set by the water utility company.
What is the purpose of hydrant meter customer agreement?
The purpose of the hydrant meter customer agreement is to establish the terms and conditions under which a customer can access water from a fire hydrant using a hydrant meter, including the responsibilities of both the customer and the water utility company.
What information must be reported on hydrant meter customer agreement?
The hydrant meter customer agreement must include the customer's contact information, the address where the hydrant meter will be used, the duration of use, and any applicable fees or charges.
Fill out your hydrant meter customer agreement online with pdfFiller!
pdfFiller is an end-to-end solution for managing, creating, and editing documents and forms in the cloud. Save time and hassle by preparing your tax forms online.

Hydrant Meter Customer Agreement is not the form you're looking for?Search for another form here.
Relevant keywords
Related Forms
If you believe that this page should be taken down, please follow our DMCA take down process
here
.
This form may include fields for payment information. Data entered in these fields is not covered by PCI DSS compliance.