Get the free Cochise County, AZOfficial Website
Show details
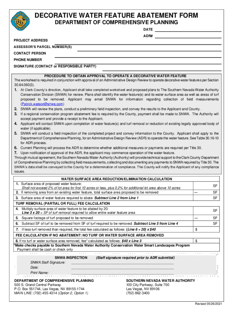
DECORATIVE WATER FEATURE ABATEMENT FORM DEPARTMENT OF COMPREHENSIVE PLANNING DATE ADR# PROJECT ADDRESS ASSESSORS PARCEL NUMBER(S) CONTACT PERSON PHONE NUMBER SIGNATURE (CONTACT or RESPONSIBLE PARTY)
We are not affiliated with any brand or entity on this form
Get, Create, Make and Sign cochise county azofficial website
Edit your cochise county azofficial website form online
Type text, complete fillable fields, insert images, highlight or blackout data for discretion, add comments, and more.
Add your legally-binding signature
Draw or type your signature, upload a signature image, or capture it with your digital camera.
Share your form instantly
Email, fax, or share your cochise county azofficial website form via URL. You can also download, print, or export forms to your preferred cloud storage service.
How to edit cochise county azofficial website online
To use the professional PDF editor, follow these steps below:
1
Create an account. Begin by choosing Start Free Trial and, if you are a new user, establish a profile.
2
Prepare a file. Use the Add New button. Then upload your file to the system from your device, importing it from internal mail, the cloud, or by adding its URL.
3
Edit cochise county azofficial website. Replace text, adding objects, rearranging pages, and more. Then select the Documents tab to combine, divide, lock or unlock the file.
4
Get your file. When you find your file in the docs list, click on its name and choose how you want to save it. To get the PDF, you can save it, send an email with it, or move it to the cloud.
It's easier to work with documents with pdfFiller than you can have believed. Sign up for a free account to view.
Uncompromising security for your PDF editing and eSignature needs
Your private information is safe with pdfFiller. We employ end-to-end encryption, secure cloud storage, and advanced access control to protect your documents and maintain regulatory compliance.
How to fill out cochise county azofficial website
How to fill out cochise county azofficial website
01
Open a web browser and go to the official website of Cochise County, AZ.
02
Look for the section or tab related to filling out forms or applications.
03
Click on the specific form or application you need to fill out.
04
Read the instructions provided on the form or application page thoroughly.
05
Start filling out the required fields by typing in the appropriate information.
06
Double-check the information you entered to ensure its accuracy.
07
If there are any additional documents or attachments required, gather them before submitting the form.
08
Submit the filled-out form by clicking the submission button, usually labeled as 'Submit' or 'Send'.
09
Wait for a confirmation message or receipt to ensure your submission was successful.
10
If there are any further steps or actions required, follow the instructions provided on the website or wait for further communication from the Cochise County authorities.
Who needs cochise county azofficial website?
01
Cochise County, AZofficial website is beneficial for various individuals and groups, including:
02
- Residents of Cochise County who need to access county services, information, and resources.
03
- Individuals looking to apply for permits, licenses, or certifications offered by the county government.
04
- Businesses operating in Cochise County that require permits or need to stay updated on local regulations.
05
- Job seekers interested in exploring employment opportunities within the county.
06
- Students or parents seeking information about educational resources and programs in Cochise County.
07
- Tourists or visitors interested in discovering attractions, events, and recreational activities in the area.
08
- Researchers or journalists looking for official data, statistics, or reports related to Cochise County.
09
- Community organizations or non-profit groups in need of support, funding, or partnership opportunities provided by the county.
Fill
form
: Try Risk Free
For pdfFiller’s FAQs
Below is a list of the most common customer questions. If you can’t find an answer to your question, please don’t hesitate to reach out to us.
How do I make edits in cochise county azofficial website without leaving Chrome?
Get and add pdfFiller Google Chrome Extension to your browser to edit, fill out and eSign your cochise county azofficial website, which you can open in the editor directly from a Google search page in just one click. Execute your fillable documents from any internet-connected device without leaving Chrome.
How can I edit cochise county azofficial website on a smartphone?
The best way to make changes to documents on a mobile device is to use pdfFiller's apps for iOS and Android. You may get them from the Apple Store and Google Play. Learn more about the apps here. To start editing cochise county azofficial website, you need to install and log in to the app.
How do I fill out cochise county azofficial website on an Android device?
Use the pdfFiller mobile app and complete your cochise county azofficial website and other documents on your Android device. The app provides you with all essential document management features, such as editing content, eSigning, annotating, sharing files, etc. You will have access to your documents at any time, as long as there is an internet connection.
What is cochise county azofficial website?
The official website for Cochise County, AZ is https://www.cochise.az.gov
Who is required to file cochise county azofficial website?
Individuals or businesses located in Cochise County, AZ may be required to file on the official website.
How to fill out cochise county azofficial website?
To fill out the required forms on the Cochise County official website, individuals can visit the website and follow the instructions provided.
What is the purpose of cochise county azofficial website?
The purpose of the Cochise County official website is to provide information and resources for residents, businesses, and visitors in the county.
What information must be reported on cochise county azofficial website?
The specific information that must be reported on the Cochise County official website will vary depending on the requirements outlined by the county.
Fill out your cochise county azofficial website online with pdfFiller!
pdfFiller is an end-to-end solution for managing, creating, and editing documents and forms in the cloud. Save time and hassle by preparing your tax forms online.
Cochise County Azofficial Website is not the form you're looking for?Search for another form here.
Relevant keywords
Related Forms
If you believe that this page should be taken down, please follow our DMCA take down process
here
.
This form may include fields for payment information. Data entered in these fields is not covered by PCI DSS compliance.