
Get the free Online encroachment permit application engineering ...
Show details
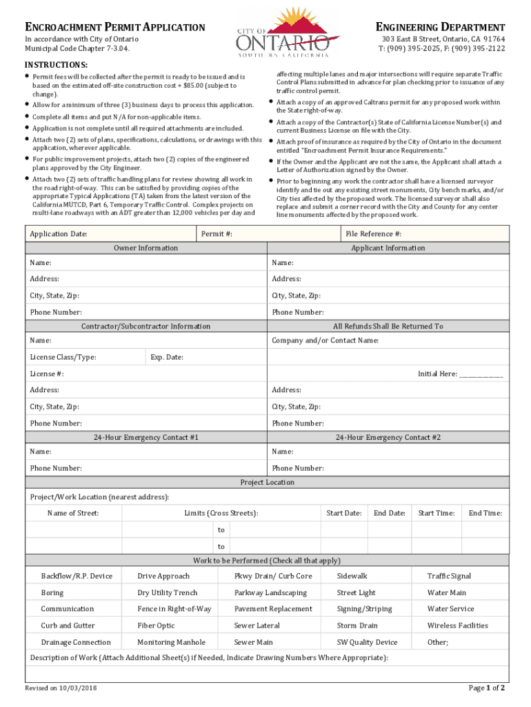
ENCROACHMENT PERMIT APPLICATIONENGINEERING DEPARTMENT In accordance with City of Ontario Municipal Code Chapter 73.04.303 East B Street, Ontario, CA 91764 T: (909) 3952025, F: (909) 3952122INSTRUCTIONS:Permit
We are not affiliated with any brand or entity on this form
Get, Create, Make and Sign online encroachment permit application

Edit your online encroachment permit application form online
Type text, complete fillable fields, insert images, highlight or blackout data for discretion, add comments, and more.

Add your legally-binding signature
Draw or type your signature, upload a signature image, or capture it with your digital camera.

Share your form instantly
Email, fax, or share your online encroachment permit application form via URL. You can also download, print, or export forms to your preferred cloud storage service.
Editing online encroachment permit application online
Here are the steps you need to follow to get started with our professional PDF editor:
1
Log in to your account. Start Free Trial and register a profile if you don't have one.
2
Prepare a file. Use the Add New button. Then upload your file to the system from your device, importing it from internal mail, the cloud, or by adding its URL.
3
Edit online encroachment permit application. Add and replace text, insert new objects, rearrange pages, add watermarks and page numbers, and more. Click Done when you are finished editing and go to the Documents tab to merge, split, lock or unlock the file.
4
Save your file. Choose it from the list of records. Then, shift the pointer to the right toolbar and select one of the several exporting methods: save it in multiple formats, download it as a PDF, email it, or save it to the cloud.
The use of pdfFiller makes dealing with documents straightforward.
Uncompromising security for your PDF editing and eSignature needs
Your private information is safe with pdfFiller. We employ end-to-end encryption, secure cloud storage, and advanced access control to protect your documents and maintain regulatory compliance.
How to fill out online encroachment permit application

How to fill out online encroachment permit application
01
Step 1: Visit the website of the relevant authority or agency that issues encroachment permits.
02
Step 2: Look for the online application portal or section.
03
Step 3: Create an account if required by providing the necessary information.
04
Step 4: Log in to your account and navigate to the encroachment permit application.
05
Step 5: Fill out the required information accurately, such as applicant details, project description, and location.
06
Step 6: Attach any supporting documents or drawings if requested.
07
Step 7: Double-check all the entered information for accuracy.
08
Step 8: Submit the application online.
09
Step 9: Pay the applicable fees, if any, using the specified payment methods.
10
Step 10: Await the processing of your application and any further communication from the authority or agency.
11
Step 11: Once approved, you may receive the encroachment permit electronically or by mail.
12
Step 12: Follow any additional instructions or guidelines provided by the authority or agency for implementing the permitted encroachment.
Who needs online encroachment permit application?
01
Individuals or entities planning to undertake activities that involve encroaching on public property or right-of-way may need an online encroachment permit application. This can include construction projects, roadworks, installing utilities, temporary excavations, placing structures, or any other work that may potentially infringe on public land or infrastructure. The specific requirements may vary depending on the jurisdiction and local regulations, so it is important to check with the relevant authority or agency to determine if an encroachment permit is necessary and whether it should be obtained online.
Fill
form
: Try Risk Free
For pdfFiller’s FAQs
Below is a list of the most common customer questions. If you can’t find an answer to your question, please don’t hesitate to reach out to us.
How do I modify my online encroachment permit application in Gmail?
The pdfFiller Gmail add-on lets you create, modify, fill out, and sign online encroachment permit application and other documents directly in your email. Click here to get pdfFiller for Gmail. Eliminate tedious procedures and handle papers and eSignatures easily.
How can I send online encroachment permit application for eSignature?
Once you are ready to share your online encroachment permit application, you can easily send it to others and get the eSigned document back just as quickly. Share your PDF by email, fax, text message, or USPS mail, or notarize it online. You can do all of this without ever leaving your account.
How do I fill out the online encroachment permit application form on my smartphone?
You can quickly make and fill out legal forms with the help of the pdfFiller app on your phone. Complete and sign online encroachment permit application and other documents on your mobile device using the application. If you want to learn more about how the PDF editor works, go to pdfFiller.com.
What is online encroachment permit application?
The online encroachment permit application is a digital form used to request permission to encroach on public property or right-of-way for construction or other purposes.
Who is required to file online encroachment permit application?
Any individual or organization planning to encroach on public property or right-of-way is required to file the online encroachment permit application.
How to fill out online encroachment permit application?
The online encroachment permit application can be filled out by providing detailed information about the encroachment project, including location, duration, and purpose.
What is the purpose of online encroachment permit application?
The purpose of the online encroachment permit application is to obtain official approval for encroaching on public property or right-of-way and ensure compliance with regulations.
What information must be reported on online encroachment permit application?
Information to be reported on the online encroachment permit application includes project details, contact information, proposed duration of encroachment, and any required permits or approvals.
Fill out your online encroachment permit application online with pdfFiller!
pdfFiller is an end-to-end solution for managing, creating, and editing documents and forms in the cloud. Save time and hassle by preparing your tax forms online.

Online Encroachment Permit Application is not the form you're looking for?Search for another form here.
Relevant keywords
Related Forms
If you believe that this page should be taken down, please follow our DMCA take down process
here
.
This form may include fields for payment information. Data entered in these fields is not covered by PCI DSS compliance.