Form preview

Get the free NPS Form 10 900 OMB No. 1024 0018 - IIS Windows Server

Get Form
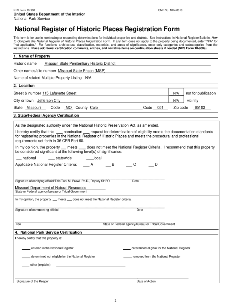
NPS Form 10900OMB No. 10240018United States Department of the Interior National Park ServiceNational Register of Historic Places Registration Form This form is for use in nominating or requesting
We are not affiliated with any brand or entity on this form

Get, Create, Make and Sign nps form 10 900

Edit
Edit your nps form 10 900 form online
Type text, complete fillable fields, insert images, highlight or blackout data for discretion, add comments, and more.
Add
Add your legally-binding signature
Draw or type your signature, upload a signature image, or capture it with your digital camera.
Share
Share your form instantly
Email, fax, or share your nps form 10 900 form via URL. You can also download, print, or export forms to your preferred cloud storage service.

Editing nps form 10 900 online

9.5
Ease of Setup
pdfFiller User Ratings on G2
9.0
Ease of Use
pdfFiller User Ratings on G2
To use our professional PDF editor, follow these steps:
1
Log in. Click Start Free Trial and create a profile if necessary.
2
Prepare a file. Use the Add New button to start a new project. Then, using your device, upload your file to the system by importing it from internal mail, the cloud, or adding its URL.
3
Edit nps form 10 900. Rearrange and rotate pages, add new and changed texts, add new objects, and use other useful tools. When you're done, click Done. You can use the Documents tab to merge, split, lock, or unlock your files.
4
Save your file. Select it from your records list. Then, click the right toolbar and select one of the various exporting options: save in numerous formats, download as PDF, email, or cloud.
With pdfFiller, it's always easy to deal with documents.

Uncompromising security for your PDF editing and eSignature needs

Your private information is safe with pdfFiller. We employ end-to-end encryption, secure cloud storage, and advanced access control to protect your documents and maintain regulatory compliance.
GDPR
AICPA SOC 2
PCI
HIPAA
CCPA
FDA

How to fill out nps form 10 900

Illustration

How to fill out nps form 10 900

01
To fill out NPS Form 10-900, follow these steps:
02
Start by downloading the NPS Form 10-900 from the official National Park Service website.
03
Begin by entering the basic information at the top of the form, such as the park name, state, and date.
04
Provide the project title, location, and description in the designated sections of the form.
05
Complete the project classification and design details, including the project type, historic structure information (if applicable), and design drawings.
06
Indicate the project's potential impacts on cultural resources and natural resources, including any documentation and mitigation measures that may be required.
07
Fill out the cost estimate section, providing detailed information on the project's budget and funding sources.
08
Include any supporting documentation or attachments, such as photographs, maps, or additional information.
09
Ensure that the form is signed and dated by the appropriate authority or project manager.
10
Finally, submit the completed NPS Form 10-900 to the National Park Service for review and approval.

Who needs nps form 10 900?

01
NPS Form 10-900 is needed by individuals or organizations planning to undertake a construction, renovation, or alteration project within a national park or historic site that may potentially impact cultural or natural resources.
02
This form is primarily used for documenting and evaluating the effects of proposed projects on the cultural and natural resources of national park units and ensuring that any necessary mitigation measures are implemented.
03
It is necessary for anyone seeking approval from the National Park Service for their project to complete and submit NPS Form 10-900.
Fill form : Try Risk Free
Users Most Likely To Recommend - Summer 2025
Grid Leader in Small-Business - Summer 2025
High Performer - Summer 2025
Regional Leader - Summer 2025
Easiest To Do Business With - Summer 2025
Best Meets Requirements- Summer 2025
Rate the form
4.3
Satisfied
55 Votes

For pdfFiller’s FAQs

Below is a list of the most common customer questions. If you can’t find an answer to your question, please don’t hesitate to reach out to us.

The premium subscription for pdfFiller provides you with access to an extensive library of fillable forms (over 25M fillable templates) that you can download, fill out, print, and sign. You won’t have any trouble finding state-specific nps form 10 900 and other forms in the library. Find the template you need and customize it using advanced editing functionalities.
Use the pdfFiller app for iOS to make, edit, and share nps form 10 900 from your phone. Apple's store will have it up and running in no time. It's possible to get a free trial and choose a subscription plan that fits your needs.
Download and install the pdfFiller iOS app. Then, launch the app and log in or create an account to have access to all of the editing tools of the solution. Upload your nps form 10 900 from your device or cloud storage to open it, or input the document URL. After filling out all of the essential areas in the document and eSigning it (if necessary), you may save it or share it with others.
NPS Form 10-900 is a self-certification form used by persons who are exempt from backup withholding.
Individuals who are exempt from backup withholding are required to file NPS Form 10-900.
NPS Form 10-900 can be filled out by providing personal information, including name, address, and taxpayer identification number, and certifying exemption from backup withholding.
The purpose of NPS Form 10-900 is to certify exemption from backup withholding.
NPS Form 10-900 requires the reporting of personal information such as name, address, and taxpayer identification number, as well as a certification of exemption from backup withholding.
Fill out your nps form 10 900 online with pdfFiller!

pdfFiller is an end-to-end solution for managing, creating, and editing documents and forms in the cloud. Save time and hassle by preparing your tax forms online.

Get started now
Form preview
If you believe that this page should be taken down, please follow our DMCA take down process here .
This form may include fields for payment information. Data entered in these fields is not covered by PCI DSS compliance.