
Get the free Application for Business License Tax - City of Rohnert Park
Show details
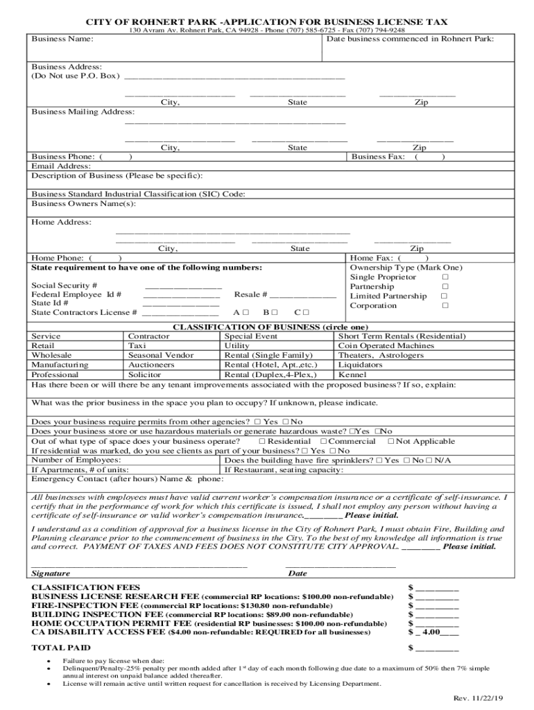
CITY OF ROBERT PARK APPLICATION FOR BUSINESS LICENSE TAX 130 Abram Av. Robert Park, CA 94928 Phone (707) 5856725 Fax (707) 7949248Business Name:Date business commenced in Robert Park:Business Address:
We are not affiliated with any brand or entity on this form
Get, Create, Make and Sign application for business license

Edit your application for business license form online
Type text, complete fillable fields, insert images, highlight or blackout data for discretion, add comments, and more.

Add your legally-binding signature
Draw or type your signature, upload a signature image, or capture it with your digital camera.

Share your form instantly
Email, fax, or share your application for business license form via URL. You can also download, print, or export forms to your preferred cloud storage service.
Editing application for business license online
Here are the steps you need to follow to get started with our professional PDF editor:
1
Set up an account. If you are a new user, click Start Free Trial and establish a profile.
2
Upload a file. Select Add New on your Dashboard and upload a file from your device or import it from the cloud, online, or internal mail. Then click Edit.
3
Edit application for business license. Rearrange and rotate pages, add new and changed texts, add new objects, and use other useful tools. When you're done, click Done. You can use the Documents tab to merge, split, lock, or unlock your files.
4
Save your file. Select it from your records list. Then, click the right toolbar and select one of the various exporting options: save in numerous formats, download as PDF, email, or cloud.
With pdfFiller, it's always easy to work with documents.
Uncompromising security for your PDF editing and eSignature needs
Your private information is safe with pdfFiller. We employ end-to-end encryption, secure cloud storage, and advanced access control to protect your documents and maintain regulatory compliance.
How to fill out application for business license

How to fill out application for business license
01
Gather all the necessary documents such as proof of identification, business address, financial statements, and permits.
02
Research the specific requirements for obtaining a business license in your area. This may include registering your business name, obtaining zoning permits, or passing health and safety inspections.
03
Complete the application form provided by the licensing authority. Make sure to provide accurate and detailed information about your business, including its purpose, structure, and anticipated revenue.
04
Attach all the required supporting documents to your application. This may include copies of your ID, lease agreement, bank statements, and any necessary certifications.
05
Pay the application fee, which varies depending on your location and type of business.
06
Submit your application and supporting documents to the licensing authority. Ensure that all the information is correctly filled out and all necessary signatures are included.
07
Wait for the licensing authority to review your application. This may take several weeks or months depending on the complexity of your business.
08
If your application is approved, you will receive your business license. If there are any issues or missing information, the licensing authority may request further clarification or documentation.
09
Display your business license prominently at your place of business as required by local regulations.
10
Remember to renew your business license periodically as specified by the licensing authority.
Who needs application for business license?
01
Anyone planning to start a business or engage in certain types of commercial activities needs to apply for a business license.
02
This includes individuals, partnerships, corporations, and other entities operating within a specific jurisdiction.
03
The specific requirements for obtaining a business license may vary depending on the location and the nature of the business.
04
It is advisable to research and consult with local authorities or licensing agencies to determine whether you need a business license and the specific application process in your area.
Fill
form
: Try Risk Free
For pdfFiller’s FAQs
Below is a list of the most common customer questions. If you can’t find an answer to your question, please don’t hesitate to reach out to us.
How do I fill out application for business license using my mobile device?
Use the pdfFiller mobile app to fill out and sign application for business license on your phone or tablet. Visit our website to learn more about our mobile apps, how they work, and how to get started.
How do I complete application for business license on an iOS device?
Make sure you get and install the pdfFiller iOS app. Next, open the app and log in or set up an account to use all of the solution's editing tools. If you want to open your application for business license, you can upload it from your device or cloud storage, or you can type the document's URL into the box on the right. After you fill in all of the required fields in the document and eSign it, if that is required, you can save or share it with other people.
How do I fill out application for business license on an Android device?
Use the pdfFiller Android app to finish your application for business license and other documents on your Android phone. The app has all the features you need to manage your documents, like editing content, eSigning, annotating, sharing files, and more. At any time, as long as there is an internet connection.
What is application for business license?
An application for business license is a formal request to obtain permission to operate a business legally within a specific jurisdiction.
Who is required to file application for business license?
Any individual or entity looking to start a business or conduct business activities within a particular area is required to file an application for a business license.
How to fill out application for business license?
To fill out an application for a business license, one must provide information about the business such as the type of business, business address, owner information, and any other required details as per the jurisdiction's regulations.
What is the purpose of application for business license?
The purpose of the application for a business license is to ensure that businesses comply with local regulations, pay necessary fees, and operate safely within the community.
What information must be reported on application for business license?
Information required on an application for a business license typically includes business name, type of business, business address, owner information, contact details, and any other necessary documentation as per the jurisdiction's regulations.
Fill out your application for business license online with pdfFiller!
pdfFiller is an end-to-end solution for managing, creating, and editing documents and forms in the cloud. Save time and hassle by preparing your tax forms online.

Application For Business License is not the form you're looking for?Search for another form here.
Relevant keywords
Related Forms
If you believe that this page should be taken down, please follow our DMCA take down process
here
.
This form may include fields for payment information. Data entered in these fields is not covered by PCI DSS compliance.