Form preview

ND SFN 16838 2020-2026 free printable template

Get Form
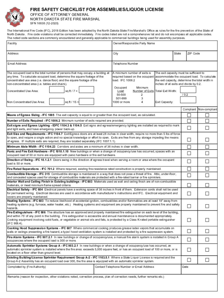
FIRE SAFETY CHECKLIST FOR ASSEMBLIES/LIQUOR LICENSE OFFICE OF ATTORNEY GENERAL NORTH DAKOTA STATE FIRE MARSHAL SON 16838 (122020)The International Fire Code (IFC), 2018 Edition has been adopted by
pdfFiller is not affiliated with any government organization

Get, Create, Make and Sign ND SFN 16838

Edit
Edit your ND SFN 16838 form online
Type text, complete fillable fields, insert images, highlight or blackout data for discretion, add comments, and more.
Add
Add your legally-binding signature
Draw or type your signature, upload a signature image, or capture it with your digital camera.
Share
Share your form instantly
Email, fax, or share your ND SFN 16838 form via URL. You can also download, print, or export forms to your preferred cloud storage service.

How to edit ND SFN 16838 online

9.5
Ease of Setup
pdfFiller User Ratings on G2
9.0
Ease of Use
pdfFiller User Ratings on G2
Follow the steps down below to benefit from a competent PDF editor:
1
Check your account. If you don't have a profile yet, click Start Free Trial and sign up for one.
2
Prepare a file. Use the Add New button to start a new project. Then, using your device, upload your file to the system by importing it from internal mail, the cloud, or adding its URL.
3
Edit ND SFN 16838. Text may be added and replaced, new objects can be included, pages can be rearranged, watermarks and page numbers can be added, and so on. When you're done editing, click Done and then go to the Documents tab to combine, divide, lock, or unlock the file.
4
Get your file. Select your file from the documents list and pick your export method. You may save it as a PDF, email it, or upload it to the cloud.
The use of pdfFiller makes dealing with documents straightforward. Try it right now!

Uncompromising security for your PDF editing and eSignature needs

Your private information is safe with pdfFiller. We employ end-to-end encryption, secure cloud storage, and advanced access control to protect your documents and maintain regulatory compliance.
GDPR
AICPA SOC 2
PCI
HIPAA
CCPA
FDA

ND SFN 16838 Form Versions

Version
Form Popularity
Fillable & printabley
4.6 Satisfied (53 Votes)
4.0 Satisfied (49 Votes)

How to fill out ND SFN 16838

Illustration

How to fill out ND SFN 16838

01
Obtain the ND SFN 16838 form from the appropriate agency or website.
02
Fill out the personal information section, including your full name, address, and contact information.
03
Provide any relevant identification numbers, such as social security or driver's license number.
04
Complete the sections regarding your financial information, including income and expenses.
05
Attach any required documentation to support your application.
06
Review the completed form to ensure all information is accurate and complete.
07
Sign and date the form at the designated area.
08
Submit the form according to the provided instructions, either by mail or online.

Who needs ND SFN 16838?

01
Individuals applying for financial assistance or benefits from the state of North Dakota.
02
Residents who need to report their income and financial situation to the applicable agency.
03
Anyone required to provide employment or financial information for eligibility assessments.
Fill form : Try Risk Free
Users Most Likely To Recommend - Summer 2025
Grid Leader in Small-Business - Summer 2025
High Performer - Summer 2025
Regional Leader - Summer 2025
Easiest To Do Business With - Summer 2025
Best Meets Requirements- Summer 2025
Rate the form
4.6
Satisfied
53 Votes

For pdfFiller’s FAQs

Below is a list of the most common customer questions. If you can’t find an answer to your question, please don’t hesitate to reach out to us.

People who need to keep track of documents and fill out forms quickly can connect PDF Filler to their Google Docs account. This means that they can make, edit, and sign documents right from their Google Drive. Make your ND SFN 16838 into a fillable form that you can manage and sign from any internet-connected device with this add-on.
The editing procedure is simple with pdfFiller. Open your ND SFN 16838 in the editor, which is quite user-friendly. You may use it to blackout, redact, write, and erase text, add photos, draw arrows and lines, set sticky notes and text boxes, and much more.
You can make any changes to PDF files, such as ND SFN 16838, with the help of the pdfFiller mobile app for Android. Edit, sign, and send documents right from your mobile device. Install the app and streamline your document management wherever you are.
ND SFN 16838 is a form used by the state of North Dakota for reporting information related to the state's individual income tax.
Individuals who earn income in North Dakota and are subject to state income tax are required to file ND SFN 16838.
To fill out ND SFN 16838, individuals should provide their personal information, income details, and any relevant deductions or credits according to the instructions provided with the form.
The purpose of ND SFN 16838 is to accurately report income and calculate the appropriate amount of state income tax owed by individuals in North Dakota.
ND SFN 16838 requires reporting of personal identification details, total income, adjusted gross income, deductions, credits, and any other relevant tax-related information.
Fill out your ND SFN 16838 online with pdfFiller!

pdfFiller is an end-to-end solution for managing, creating, and editing documents and forms in the cloud. Save time and hassle by preparing your tax forms online.

Get started now
Form preview

Related Forms

If you believe that this page should be taken down, please follow our DMCA take down process here .
This form may include fields for payment information. Data entered in these fields is not covered by PCI DSS compliance.