
Get the free Online Note For properties 35 years old and newer ...
Show details
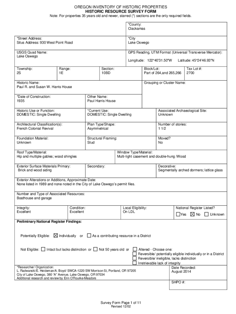
OREGON INVENTORY OF HISTORIC PROPERTIES HISTORIC RESOURCE SURVEY FORM Note: For properties 35 years old and newer, starred (*) sections are the only required fields. *County: Clacks *Street Address:
We are not affiliated with any brand or entity on this form
Get, Create, Make and Sign online note for properties

Edit your online note for properties form online
Type text, complete fillable fields, insert images, highlight or blackout data for discretion, add comments, and more.

Add your legally-binding signature
Draw or type your signature, upload a signature image, or capture it with your digital camera.

Share your form instantly
Email, fax, or share your online note for properties form via URL. You can also download, print, or export forms to your preferred cloud storage service.
How to edit online note for properties online
Here are the steps you need to follow to get started with our professional PDF editor:
1
Create an account. Begin by choosing Start Free Trial and, if you are a new user, establish a profile.
2
Prepare a file. Use the Add New button. Then upload your file to the system from your device, importing it from internal mail, the cloud, or by adding its URL.
3
Edit online note for properties. Add and change text, add new objects, move pages, add watermarks and page numbers, and more. Then click Done when you're done editing and go to the Documents tab to merge or split the file. If you want to lock or unlock the file, click the lock or unlock button.
4
Get your file. When you find your file in the docs list, click on its name and choose how you want to save it. To get the PDF, you can save it, send an email with it, or move it to the cloud.
It's easier to work with documents with pdfFiller than you could have ever thought. You can sign up for an account to see for yourself.
Uncompromising security for your PDF editing and eSignature needs
Your private information is safe with pdfFiller. We employ end-to-end encryption, secure cloud storage, and advanced access control to protect your documents and maintain regulatory compliance.
How to fill out online note for properties

How to fill out online note for properties
01
Access the website or platform where the online note for properties is located.
02
Create an account if you do not have one already. Provide the necessary information such as name, email, and password.
03
Log in to your account using the credentials you have created.
04
Navigate to the 'Properties' section or a similar option available in the menu.
05
Select the option to 'Add new note' or 'Create new note'.
06
Fill out the required information in the note form. This may include property details such as address, type, size, and price.
07
Add any additional information or notes related to the property in the provided area.
08
Upload any relevant documents or images if required.
09
Review the filled out note for any errors or missing information.
10
Submit the note once you are satisfied with the provided details.
11
Wait for confirmation or acknowledgment of the submitted note.
12
Keep a record of the note for future reference.
Who needs online note for properties?
01
Real estate agents or brokers who want to keep track of properties they are representing or managing.
02
Property owners who want to maintain an organized record of their properties for various purposes.
03
Potential buyers or investors who want to make notes about properties they are interested in to aid their decision-making process.
04
Property appraisers or inspectors who need to document their findings and evaluations.
05
Legal professionals involved in property transactions or disputes who require detailed notes for legal purposes.
Fill
form
: Try Risk Free
For pdfFiller’s FAQs
Below is a list of the most common customer questions. If you can’t find an answer to your question, please don’t hesitate to reach out to us.
How do I edit online note for properties online?
The editing procedure is simple with pdfFiller. Open your online note for properties in the editor, which is quite user-friendly. You may use it to blackout, redact, write, and erase text, add photos, draw arrows and lines, set sticky notes and text boxes, and much more.
How do I edit online note for properties straight from my smartphone?
The pdfFiller mobile applications for iOS and Android are the easiest way to edit documents on the go. You may get them from the Apple Store and Google Play. More info about the applications here. Install and log in to edit online note for properties.
How do I fill out the online note for properties form on my smartphone?
You can quickly make and fill out legal forms with the help of the pdfFiller app on your phone. Complete and sign online note for properties and other documents on your mobile device using the application. If you want to learn more about how the PDF editor works, go to pdfFiller.com.
What is online note for properties?
An online note for properties is a digital document that property owners or landlords submit to provide information regarding their properties, typically for registration, assessment, or compliance purposes.
Who is required to file online note for properties?
Property owners, landlords, or any individuals responsible for managing real estate properties are required to file an online note for properties.
How to fill out online note for properties?
To fill out an online note for properties, you need to access the relevant online portal, complete the required fields with accurate property details, and submit the form as directed, usually after creating an account.
What is the purpose of online note for properties?
The purpose of an online note for properties is to ensure accurate property records, aid in tax assessments, and facilitate compliance with local regulations.
What information must be reported on online note for properties?
Information such as property address, ownership details, property type, assessed value, and any changes in property status must typically be reported on the online note for properties.
Fill out your online note for properties online with pdfFiller!
pdfFiller is an end-to-end solution for managing, creating, and editing documents and forms in the cloud. Save time and hassle by preparing your tax forms online.

Online Note For Properties is not the form you're looking for?Search for another form here.
Relevant keywords
Related Forms
If you believe that this page should be taken down, please follow our DMCA take down process
here
.
This form may include fields for payment information. Data entered in these fields is not covered by PCI DSS compliance.