
Get the free B! http://ghs.guam.gov/sites/default/files/files/JIC ...
Show details
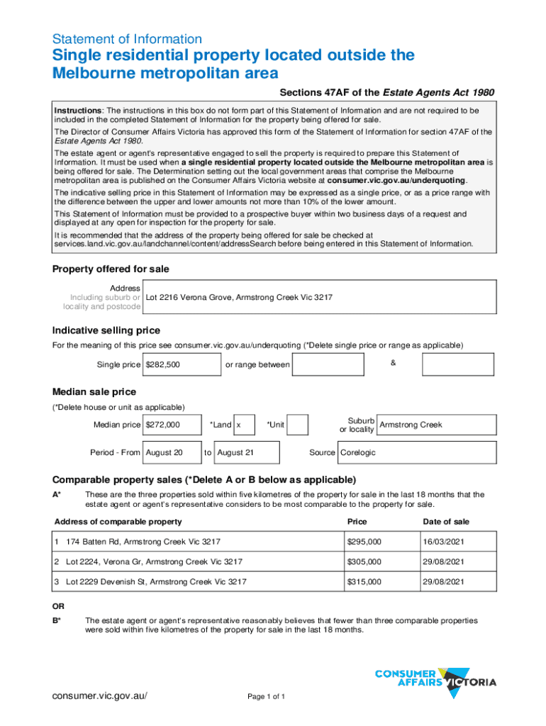
Statement of InformationSingle residential property located outside the Melbourne metropolitan area Sections 47AF of the Estate Agents Act 1980 Instructions: The instructions in this box do not form
We are not affiliated with any brand or entity on this form
Get, Create, Make and Sign b httpghsguamgovsitesdefaultfilesfilesjic

Edit your b httpghsguamgovsitesdefaultfilesfilesjic form online
Type text, complete fillable fields, insert images, highlight or blackout data for discretion, add comments, and more.

Add your legally-binding signature
Draw or type your signature, upload a signature image, or capture it with your digital camera.

Share your form instantly
Email, fax, or share your b httpghsguamgovsitesdefaultfilesfilesjic form via URL. You can also download, print, or export forms to your preferred cloud storage service.
How to edit b httpghsguamgovsitesdefaultfilesfilesjic online
Follow the steps down below to benefit from a competent PDF editor:
1
Register the account. Begin by clicking Start Free Trial and create a profile if you are a new user.
2
Simply add a document. Select Add New from your Dashboard and import a file into the system by uploading it from your device or importing it via the cloud, online, or internal mail. Then click Begin editing.
3
Edit b httpghsguamgovsitesdefaultfilesfilesjic. Add and replace text, insert new objects, rearrange pages, add watermarks and page numbers, and more. Click Done when you are finished editing and go to the Documents tab to merge, split, lock or unlock the file.
4
Get your file. When you find your file in the docs list, click on its name and choose how you want to save it. To get the PDF, you can save it, send an email with it, or move it to the cloud.
pdfFiller makes working with documents easier than you could ever imagine. Register for an account and see for yourself!
Uncompromising security for your PDF editing and eSignature needs
Your private information is safe with pdfFiller. We employ end-to-end encryption, secure cloud storage, and advanced access control to protect your documents and maintain regulatory compliance.
How to fill out b httpghsguamgovsitesdefaultfilesfilesjic

How to fill out b httpghsguamgovsitesdefaultfilesfilesjic
01
To fill out b httpghsguamgovsitesdefaultfilesfilesjic, follow these steps:
02
Open the provided link in a web browser.
03
Read the instructions carefully and understand the purpose of filling out the form.
04
Gather all the required information and documents.
05
Start filling out the form by entering the requested details in the appropriate fields.
06
Double-check all the entered information for accuracy and completeness.
07
If there are any additional documents or attachments required, upload them as instructed.
08
Once you have reviewed and completed the form, submit it as directed.
09
Keep a copy of the submitted form for your records.
10
If you encounter any issues or have questions, contact the relevant authorities for assistance.
Who needs b httpghsguamgovsitesdefaultfilesfilesjic?
01
Any individual or organization who needs to provide specific information or complete certain tasks related to the documents and processes tied to b httpghsguamgovsitesdefaultfilesfilesjic may need to fill out this form. The exact requirements and circumstances can vary, so it is important to refer to the provided instructions or consult with the relevant authorities for clarification.
Fill
form
: Try Risk Free
For pdfFiller’s FAQs
Below is a list of the most common customer questions. If you can’t find an answer to your question, please don’t hesitate to reach out to us.
How do I execute b httpghsguamgovsitesdefaultfilesfilesjic online?
pdfFiller has made it easy to fill out and sign b httpghsguamgovsitesdefaultfilesfilesjic. You can use the solution to change and move PDF content, add fields that can be filled in, and sign the document electronically. Start a free trial of pdfFiller, the best tool for editing and filling in documents.
Can I create an eSignature for the b httpghsguamgovsitesdefaultfilesfilesjic in Gmail?
With pdfFiller's add-on, you may upload, type, or draw a signature in Gmail. You can eSign your b httpghsguamgovsitesdefaultfilesfilesjic and other papers directly in your mailbox with pdfFiller. To preserve signed papers and your personal signatures, create an account.
How do I edit b httpghsguamgovsitesdefaultfilesfilesjic on an iOS device?
You certainly can. You can quickly edit, distribute, and sign b httpghsguamgovsitesdefaultfilesfilesjic on your iOS device with the pdfFiller mobile app. Purchase it from the Apple Store and install it in seconds. The program is free, but in order to purchase a subscription or activate a free trial, you must first establish an account.
What is b httpghsguamgovsitesdefaultfilesfilesjic?
The URL appears to lead to a specific government form or document used in Guam, but without proper context, it's not clear what 'b' refers to.
Who is required to file b httpghsguamgovsitesdefaultfilesfilesjic?
Individuals or entities as specified by Guam regulations that pertain to the content of the form linked in the URL.
How to fill out b httpghsguamgovsitesdefaultfilesfilesjic?
Filling out the form typically involves providing the required personal or business information as delineated in the instructions accompanying the form.
What is the purpose of b httpghsguamgovsitesdefaultfilesfilesjic?
The purpose of the form is likely to collect specific information for regulatory, tax, or compliance purposes as set forth by the Guam government.
What information must be reported on b httpghsguamgovsitesdefaultfilesfilesjic?
Generally, forms like this require basic identification information, financial data, or compliance-related details; specifics would be noted in the form’s instructions.
Fill out your b httpghsguamgovsitesdefaultfilesfilesjic online with pdfFiller!
pdfFiller is an end-to-end solution for managing, creating, and editing documents and forms in the cloud. Save time and hassle by preparing your tax forms online.

B Httpghsguamgovsitesdefaultfilesfilesjic is not the form you're looking for?Search for another form here.
Relevant keywords
Related Forms
If you believe that this page should be taken down, please follow our DMCA take down process
here
.
This form may include fields for payment information. Data entered in these fields is not covered by PCI DSS compliance.