
Get the free https://www.mta.maryland.gov/sites/default/files/List%20of ...
Show details
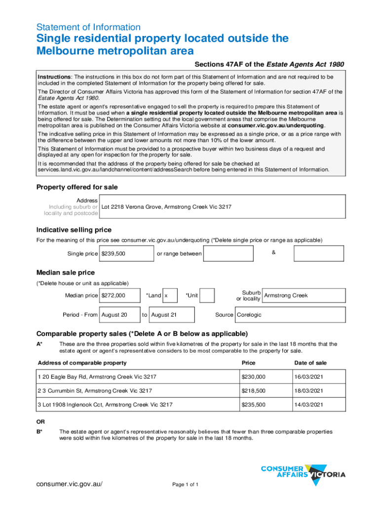
Statement of InformationSingle residential property located outside the Melbourne metropolitan area Sections 47AF of the Estate Agents Act 1980 Instructions: The instructions in this box do not form
We are not affiliated with any brand or entity on this form
Get, Create, Make and Sign httpswwwmtamarylandgovsitesdefaultfileslist20of

Edit your httpswwwmtamarylandgovsitesdefaultfileslist20of form online
Type text, complete fillable fields, insert images, highlight or blackout data for discretion, add comments, and more.

Add your legally-binding signature
Draw or type your signature, upload a signature image, or capture it with your digital camera.

Share your form instantly
Email, fax, or share your httpswwwmtamarylandgovsitesdefaultfileslist20of form via URL. You can also download, print, or export forms to your preferred cloud storage service.
Editing httpswwwmtamarylandgovsitesdefaultfileslist20of online
To use our professional PDF editor, follow these steps:
1
Log in to account. Click on Start Free Trial and sign up a profile if you don't have one.
2
Upload a file. Select Add New on your Dashboard and upload a file from your device or import it from the cloud, online, or internal mail. Then click Edit.
3
Edit httpswwwmtamarylandgovsitesdefaultfileslist20of. Rearrange and rotate pages, insert new and alter existing texts, add new objects, and take advantage of other helpful tools. Click Done to apply changes and return to your Dashboard. Go to the Documents tab to access merging, splitting, locking, or unlocking functions.
4
Save your file. Select it from your records list. Then, click the right toolbar and select one of the various exporting options: save in numerous formats, download as PDF, email, or cloud.
It's easier to work with documents with pdfFiller than you could have ever thought. Sign up for a free account to view.
Uncompromising security for your PDF editing and eSignature needs
Your private information is safe with pdfFiller. We employ end-to-end encryption, secure cloud storage, and advanced access control to protect your documents and maintain regulatory compliance.
How to fill out httpswwwmtamarylandgovsitesdefaultfileslist20of

How to fill out httpswwwmtamarylandgovsitesdefaultfileslist20of
01
Open the link: https://www.mtamaryland.gov/sites/default/files/list20of
02
Read the instructions and requirements carefully.
03
Prepare all the necessary information and documents
04
Start filling out the form by providing the requested information in the appropriate fields.
05
Double-check all the information entered to ensure accuracy.
06
Review the completed form for any errors or missing information.
07
Submit the filled-out form using the specified method (e.g., online submission, mail, etc.)
08
Wait for confirmation/receipt of the submission.
09
Keep a copy of the filled-out form for your records.
Who needs httpswwwmtamarylandgovsitesdefaultfileslist20of?
01
Anyone who wants/in needs of accessing the list of Maryland transportation-related government documents and information would find https://www.mtamaryland.gov/sites/default/files/list20of useful.
02
This can include individuals looking for specific forms, reports, guidelines, or public information related to the Maryland transportation system.
03
It can also be useful for researchers, journalists, or those seeking general information about Maryland's transportation infrastructure and services.
Fill
form
: Try Risk Free
For pdfFiller’s FAQs
Below is a list of the most common customer questions. If you can’t find an answer to your question, please don’t hesitate to reach out to us.
Where do I find httpswwwmtamarylandgovsitesdefaultfileslist20of?
It's simple with pdfFiller, a full online document management tool. Access our huge online form collection (over 25M fillable forms are accessible) and find the httpswwwmtamarylandgovsitesdefaultfileslist20of in seconds. Open it immediately and begin modifying it with powerful editing options.
Can I create an eSignature for the httpswwwmtamarylandgovsitesdefaultfileslist20of in Gmail?
Upload, type, or draw a signature in Gmail with the help of pdfFiller’s add-on. pdfFiller enables you to eSign your httpswwwmtamarylandgovsitesdefaultfileslist20of and other documents right in your inbox. Register your account in order to save signed documents and your personal signatures.
Can I edit httpswwwmtamarylandgovsitesdefaultfileslist20of on an Android device?
With the pdfFiller mobile app for Android, you may make modifications to PDF files such as httpswwwmtamarylandgovsitesdefaultfileslist20of. Documents may be edited, signed, and sent directly from your mobile device. Install the app and you'll be able to manage your documents from anywhere.
What is httpswwwmtamarylandgovsitesdefaultfileslist20of?
httpswwwmtamarylandgovsitesdefaultfileslist20of refers to a specific document or resource from the Maryland Transit Administration (MTA) that may involve forms or listings pertinent to transit operations or regulations.
Who is required to file httpswwwmtamarylandgovsitesdefaultfileslist20of?
Generally, entities or individuals involved in transportation-related activities regulated by the Maryland Transit Administration are required to file this document.
How to fill out httpswwwmtamarylandgovsitesdefaultfileslist20of?
To fill out this document, follow the provided instructions carefully, ensuring that all required fields are completed accurately and any necessary supporting documentation is attached.
What is the purpose of httpswwwmtamarylandgovsitesdefaultfileslist20of?
The purpose of this document is to ensure compliance with Maryland state transportation regulations and to collect necessary data for oversight and analysis.
What information must be reported on httpswwwmtamarylandgovsitesdefaultfileslist20of?
The report typically requires information such as operational data, financial metrics, and any relevant compliance information related to transit activities.
Fill out your httpswwwmtamarylandgovsitesdefaultfileslist20of online with pdfFiller!
pdfFiller is an end-to-end solution for managing, creating, and editing documents and forms in the cloud. Save time and hassle by preparing your tax forms online.

httpswwwmtamarylandgovsitesdefaultfileslist20of is not the form you're looking for?Search for another form here.
Relevant keywords
Related Forms
If you believe that this page should be taken down, please follow our DMCA take down process
here
.
This form may include fields for payment information. Data entered in these fields is not covered by PCI DSS compliance.