
Get the free Including suburb and 89 St Georges Road, Beaconsfield Upper, VIC, 3808
Show details
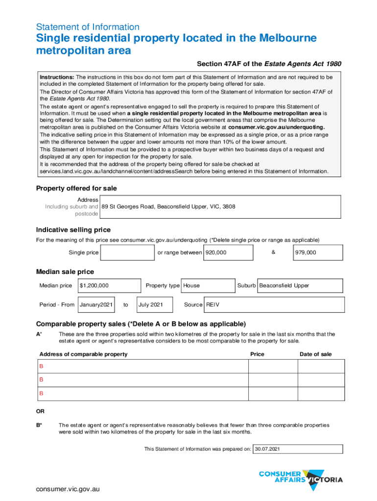
Statement of InformationSingle residential property located in the Melbourne metropolitan area Section 47AF of the Estate Agents Act 1980 Instructions: The instructions in this box do not form part
We are not affiliated with any brand or entity on this form
Get, Create, Make and Sign including suburb and 89

Edit your including suburb and 89 form online
Type text, complete fillable fields, insert images, highlight or blackout data for discretion, add comments, and more.

Add your legally-binding signature
Draw or type your signature, upload a signature image, or capture it with your digital camera.

Share your form instantly
Email, fax, or share your including suburb and 89 form via URL. You can also download, print, or export forms to your preferred cloud storage service.
Editing including suburb and 89 online
Follow the guidelines below to benefit from the PDF editor's expertise:
1
Register the account. Begin by clicking Start Free Trial and create a profile if you are a new user.
2
Upload a file. Select Add New on your Dashboard and upload a file from your device or import it from the cloud, online, or internal mail. Then click Edit.
3
Edit including suburb and 89. Rearrange and rotate pages, insert new and alter existing texts, add new objects, and take advantage of other helpful tools. Click Done to apply changes and return to your Dashboard. Go to the Documents tab to access merging, splitting, locking, or unlocking functions.
4
Save your file. Select it in the list of your records. Then, move the cursor to the right toolbar and choose one of the available exporting methods: save it in multiple formats, download it as a PDF, send it by email, or store it in the cloud.
It's easier to work with documents with pdfFiller than you can have ever thought. You may try it out for yourself by signing up for an account.
Uncompromising security for your PDF editing and eSignature needs
Your private information is safe with pdfFiller. We employ end-to-end encryption, secure cloud storage, and advanced access control to protect your documents and maintain regulatory compliance.
How to fill out including suburb and 89

How to fill out including suburb and 89
01
To fill out including suburb and 89, follow these steps:
02
Start by entering your personal information, such as your name, address, and contact details.
03
Then, locate the section for suburb and enter the name of the suburb where you reside.
04
Next, find the field for 89 and provide the required information in that section.
05
Review all the entered information to ensure accuracy and completeness.
06
Finally, submit the completed form as per the instructions given.
Who needs including suburb and 89?
01
Anyone who is required to provide their address details, specifically suburb and 89, needs to fill out this form.
02
This could include individuals applying for different services or benefits, individuals involved in legal processes, or individuals requiring residential verification.
Fill
form
: Try Risk Free
For pdfFiller’s FAQs
Below is a list of the most common customer questions. If you can’t find an answer to your question, please don’t hesitate to reach out to us.
How do I complete including suburb and 89 online?
pdfFiller makes it easy to finish and sign including suburb and 89 online. It lets you make changes to original PDF content, highlight, black out, erase, and write text anywhere on a page, legally eSign your form, and more, all from one place. Create a free account and use the web to keep track of professional documents.
How do I edit including suburb and 89 in Chrome?
Get and add pdfFiller Google Chrome Extension to your browser to edit, fill out and eSign your including suburb and 89, which you can open in the editor directly from a Google search page in just one click. Execute your fillable documents from any internet-connected device without leaving Chrome.
How can I fill out including suburb and 89 on an iOS device?
Install the pdfFiller app on your iOS device to fill out papers. Create an account or log in if you already have one. After registering, upload your including suburb and 89. You may now use pdfFiller's advanced features like adding fillable fields and eSigning documents from any device, anywhere.
What is including suburb and 89?
Including Suburb and 89 refers to a specific form or documentation used for reporting certain data, often related to tax filings or local government requirements.
Who is required to file including suburb and 89?
Individuals or entities that are involved in certain financial activities, transactions, or reporting in specific suburbs are required to file Including Suburb and 89.
How to fill out including suburb and 89?
To fill out Including Suburb and 89, one must follow the instructions provided on the form, which typically includes entering personal information, reporting financial data, and ensuring compliance with local regulations.
What is the purpose of including suburb and 89?
The purpose of Including Suburb and 89 is to ensure that relevant financial information is reported accurately for local government purposes, taxation, or compliance standards.
What information must be reported on including suburb and 89?
Information that must be reported typically includes personal identification details, financial transactions, income details, and any other data required by local authorities.
Fill out your including suburb and 89 online with pdfFiller!
pdfFiller is an end-to-end solution for managing, creating, and editing documents and forms in the cloud. Save time and hassle by preparing your tax forms online.

Including Suburb And 89 is not the form you're looking for?Search for another form here.
Relevant keywords
Related Forms
If you believe that this page should be taken down, please follow our DMCA take down process
here
.
This form may include fields for payment information. Data entered in these fields is not covered by PCI DSS compliance.