
Get the free Community Development Department ... - Moreno Valley
Show details
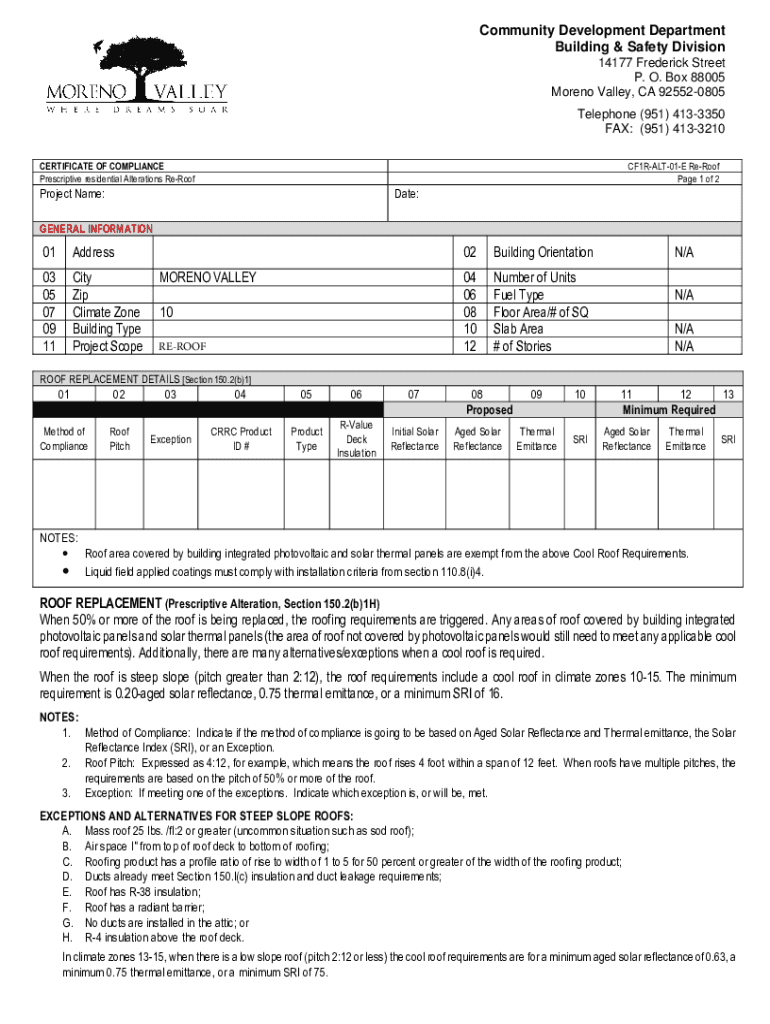
Community Development Department Building & Safety Division 14177 Frederick Street P. O. Box 88005 Moreno Valley, CA 925520805 Telephone (951) 4133350 FAX: (951) 4133210 CERTIFICATE OF COMPLIANCE
We are not affiliated with any brand or entity on this form
Get, Create, Make and Sign community development department

Edit your community development department form online
Type text, complete fillable fields, insert images, highlight or blackout data for discretion, add comments, and more.

Add your legally-binding signature
Draw or type your signature, upload a signature image, or capture it with your digital camera.

Share your form instantly
Email, fax, or share your community development department form via URL. You can also download, print, or export forms to your preferred cloud storage service.
Editing community development department online
Here are the steps you need to follow to get started with our professional PDF editor:
1
Set up an account. If you are a new user, click Start Free Trial and establish a profile.
2
Prepare a file. Use the Add New button to start a new project. Then, using your device, upload your file to the system by importing it from internal mail, the cloud, or adding its URL.
3
Edit community development department. Rearrange and rotate pages, add new and changed texts, add new objects, and use other useful tools. When you're done, click Done. You can use the Documents tab to merge, split, lock, or unlock your files.
4
Save your file. Select it from your list of records. Then, move your cursor to the right toolbar and choose one of the exporting options. You can save it in multiple formats, download it as a PDF, send it by email, or store it in the cloud, among other things.
pdfFiller makes working with documents easier than you could ever imagine. Try it for yourself by creating an account!
Uncompromising security for your PDF editing and eSignature needs
Your private information is safe with pdfFiller. We employ end-to-end encryption, secure cloud storage, and advanced access control to protect your documents and maintain regulatory compliance.
How to fill out community development department

How to fill out community development department
01
Obtain the necessary forms and documents from the community development department office.
02
Carefully read the instructions provided with the forms to understand the requirements and procedures.
03
Fill out the forms accurately and completely, providing all the requested information.
04
Attach any supporting documents or evidence required, such as proof of address or income.
05
Double-check all the filled-out forms and documents for any errors or missing information.
06
Submit the completed forms and documents to the community development department, either in person or by mail.
07
Pay any applicable fees or charges associated with the application, if required.
08
Wait for a response from the community development department regarding the status of your application.
09
Follow up with the department if necessary, providing any additional information or addressing any concerns they may have.
10
Once approved, comply with any further requirements or conditions set by the community development department.
Who needs community development department?
01
Various entities and individuals may need to engage with the community development department, including:
02
- Developers and builders seeking permits and approvals for construction projects.
03
- Homeowners and property owners interested in renovating or modifying their properties.
04
- Business owners planning to establish or expand their operations in a specific area.
05
- Non-profit organizations or community groups looking to access grants or funding for development initiatives.
06
- Residents and community members who want to inquire about zoning regulations or neighborhood planning.
07
- Local governments and authorities responsible for urban or rural planning and development.
08
- Public agencies and departments involved in infrastructure development and improvement projects.
Fill
form
: Try Risk Free
For pdfFiller’s FAQs
Below is a list of the most common customer questions. If you can’t find an answer to your question, please don’t hesitate to reach out to us.
How can I modify community development department without leaving Google Drive?
pdfFiller and Google Docs can be used together to make your documents easier to work with and to make fillable forms right in your Google Drive. The integration will let you make, change, and sign documents, like community development department, without leaving Google Drive. Add pdfFiller's features to Google Drive, and you'll be able to do more with your paperwork on any internet-connected device.
Can I sign the community development department electronically in Chrome?
Yes. By adding the solution to your Chrome browser, you may use pdfFiller to eSign documents while also enjoying all of the PDF editor's capabilities in one spot. Create a legally enforceable eSignature by sketching, typing, or uploading a photo of your handwritten signature using the extension. Whatever option you select, you'll be able to eSign your community development department in seconds.
How do I complete community development department on an iOS device?
pdfFiller has an iOS app that lets you fill out documents on your phone. A subscription to the service means you can make an account or log in to one you already have. As soon as the registration process is done, upload your community development department. You can now use pdfFiller's more advanced features, like adding fillable fields and eSigning documents, as well as accessing them from any device, no matter where you are in the world.
What is community development department?
The Community Development Department is a government agency or organization that focuses on improving the quality of life for residents in a specific community through various programs and initiatives.
Who is required to file community development department?
Certain businesses, organizations, or individuals may be required to file with the Community Development Department, depending on local regulations and requirements.
How to fill out community development department?
To fill out the Community Development Department forms, individuals or entities must provide specific information about their proposed development project, including details about the intended use, impact on the community, and compliance with local regulations.
What is the purpose of community development department?
The purpose of the Community Development Department is to promote sustainable growth and development within a community, improve infrastructure, housing, and economic opportunities, and enhance overall quality of life for residents.
What information must be reported on community development department?
Information reported on the Community Development Department forms may include details about the project location, proposed land use, building plans, environmental impact assessments, and compliance with zoning regulations.
Fill out your community development department online with pdfFiller!
pdfFiller is an end-to-end solution for managing, creating, and editing documents and forms in the cloud. Save time and hassle by preparing your tax forms online.

Community Development Department is not the form you're looking for?Search for another form here.
Relevant keywords
Related Forms
If you believe that this page should be taken down, please follow our DMCA take down process
here
.
This form may include fields for payment information. Data entered in these fields is not covered by PCI DSS compliance.